Opaalstraat 53 - Groningen
📍 Groningen
🚪 5 kamers
📐 71.38 m²
LET OP: U komt alleen voor deze woning in aanmerking als u een huishouden van minimaal 2 personen heeft. Reacties van alleenstaanden zullen worden ingetrokken. Mooie eengezinswoning met 4 slaapkamers en een achtertuin in Vinkhuizen. In de directe omgeving bevinden zich diverse voorzieningen, waaronder scholen, openbaar vervoer en het winkelcentrum Vinkhuizen. U fietst in een kwartier naar het centrum van de stad. Vanaf de ingangsdatum kan er alleen elektrisch gekookt worden in de woning. U bent zelf verantwoordelijk voor het aanschaffen van een geschikte kookplaat en pannen. De kookplaat mag een maximaal vermogen van 7000 watt (7 kW) hebben.De nieuwe huuringangsdatum is per 7 november 2025.Deze woningen zijn bedoeld voor gezinnen met inwonende kinderen.Zijn de kinderen niet op jouw adres ingeschreven? Dan is er een officieel bewijs van een gelijkwaardigezorgverdeling (50/50) nodig. Dit bewijs kan geleverd worden in de vorm van: een ouderschapsplan opgesteld via een mediator of advocaat, of een gerechtelijke uitspraak of beschikking waarin de zorgverdeling is vastgelegd. Minimaal inkomen voor deze woning:• Voor 1 persoon: € 28.375,-• Voor 1 persoon met AOW: € 27.775,-• Voor 2 of meer personen (inclusief inwonende kinderen): € 38.500,-• Voor 2 of meer personen met AOW: € 37.350,-Maximaal inkomen voor deze woning (dit geldt niet voor wijkvernieuwingsurgenties en rolstoelindicaties):• Voor 1 persoon € 49.669,-• Voor 2 of meer personen € 54.847,-
Kenmerken
Type:
Woonruimte
Oppervlakte:
71.38 m²
Aantal kamers:
5
Energielabel:
A
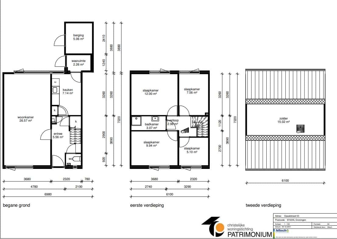
Vertrekken
Badkamer
3.07 m²
Berging
5.06 m²
Slaapkamer
5.10 m²
Keuken
7.14 m²
Slaapkamer
7.56 m²
Slaapkamer
9.94 m²
Slaapkamer
12.00 m²
Zolder
15.02 m²
Woonkamer
26.57 m²
Vergelijkbare woningen
Appartement - Naberstraat/Groningen (€2450.00/110.00m2)
Groningen
€2.450
3 kamers
Huurwoning - Pioenstraat/Groningen (€2155.00/149.00m2)
Groningen
€2.155
6 kamers
Huurwoning - Hyacinthstraat/Groningen (€2155.00/127.00m2)
Groningen
€2.155
5 kamers
Studio - Coendersweg/Groningen (€840.00/24.00m2)
Groningen
€840
1 kamers
Geen foto
Kamer - Hoekstraat/Groningen (€850.00/19.98m2)
Groningen
€850
1 kamers
Huurwoning - Hondsruglaan/Groningen (€2900.00/178.00m2)
Groningen
€2.900
5 kamers
Meer woningen bekijken?
Ontdek ons volledige aanbod van huurwoningen in Nederland. Van studio's tot gezinswoningen.