Parelstraat 15 - Groningen
📍 Groningen
🚪 2 kamers
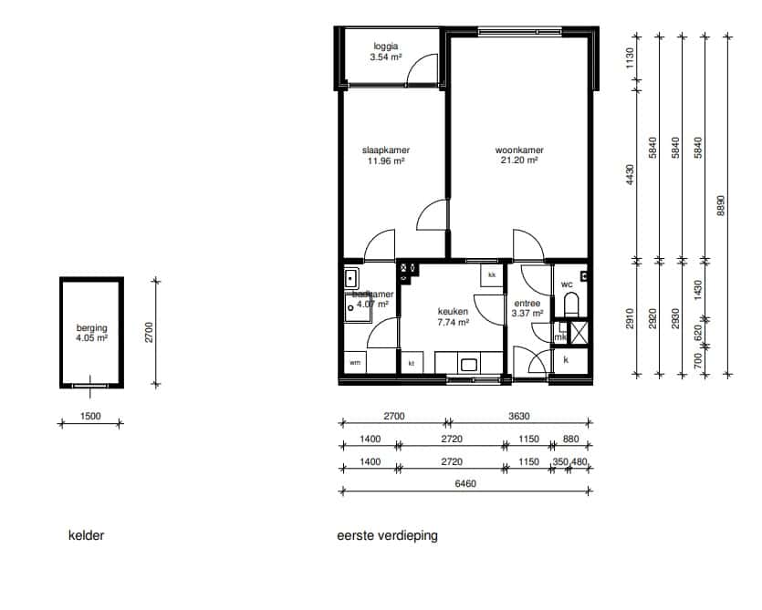
Deze knusse woning met 1 slaapkamer en een loggia ligt op de tweede woonlaag in de wijk Vinkhuizen. In de omgeving zijn diverse voorzieningen te vinden, waaronder Zernike, een winkelcentrum en openbaar vervoer. Van hieruit zijn de westelijke- en noordelijke ringweg snel bereikbaar. In 20 minuten fietst u naar het centrum van de stad. Let op: In deze woning kan alleen elektrisch gekookt worden; u bent zelf verantwoordelijk voor een geschikte kookplaat en pannen.De huuringangsdatum is 28 november 2025.Minimaal inkomen voor deze woning:• geen eisenMaximaal inkomen voor deze woning (dit geldt niet voor wijkvernieuwingsurgenties en rolstoelindicaties):• Voor 1 persoon € 49.669,-• Voor 2 of meer personen € 54.847,-De advertentie is gewijzigd op 03-11-2025 09:58:00.
Kenmerken
Type:
Woonruimte
Aantal kamers:
2
Energielabel:
C
Vertrekken
Toilet
1.26 m²
Berging
4.05 m²
Badkamer
4.07 m²
Keuken
7.74 m²
Slaapkamer
11.96 m²
Woonkamer
21.20 m²
Vergelijkbare woningen
Appartement - Naberstraat/Groningen (€2450.00/110.00m2)
Groningen
€2.450
3 kamers
Huurwoning - Pioenstraat/Groningen (€2155.00/149.00m2)
Groningen
€2.155
6 kamers
Huurwoning - Hyacinthstraat/Groningen (€2155.00/127.00m2)
Groningen
€2.155
5 kamers
Studio - Coendersweg/Groningen (€840.00/24.00m2)
Groningen
€840
1 kamers
Geen foto
Kamer - Hoekstraat/Groningen (€850.00/19.98m2)
Groningen
€850
1 kamers
Huurwoning - Hondsruglaan/Groningen (€2900.00/178.00m2)
Groningen
€2.900
5 kamers
Meer woningen bekijken?
Ontdek ons volledige aanbod van huurwoningen in Nederland. Van studio's tot gezinswoningen.