Parelstraat 118 - Groningen
📍 Groningen
🚪 3 kamers
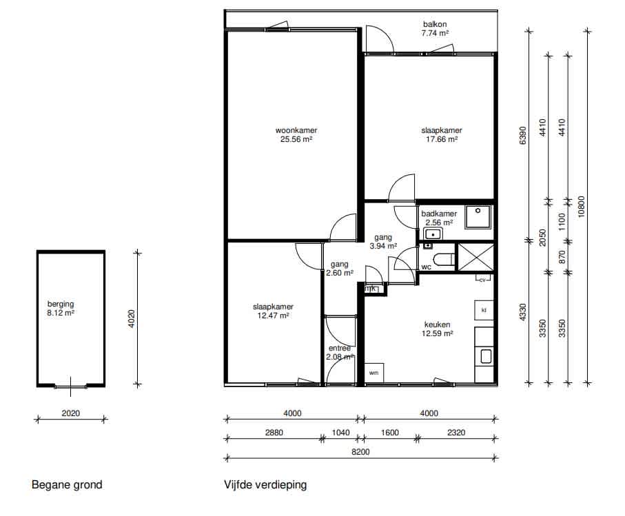
Nette ruime woning met 2 slaapkamers en een balkon en ligt op de 5e verdieping in de wijk Vinkhuizen. In de omgeving zijn diverse voorzieningen te vinden, waaronder Zernike, een winkelcentrum en openbaar vervoer. Van hieruit zijn de westelijke- en noordelijke ringweg snel bereikbaar. In 20 minuten fietst u naar het centrum van de stad. In de woning kan alleen elektrisch gekookt worden. U bent zelf verantwoordelijk voor de aanschaf van een geschikte kookplaat en pannen. De huuringangsdatum is 15 januari 2026.Minimaal inkomen voor deze woning:• Voor 1 persoon: € 29.400,-• Voor 1 persoon met AOW: € 28.775,-• Voor 2 personen (inclusief inwonende kinderen): € 39.925,-,-• Voor 2 personen met AOW: € 38.650,-• Voor 3 of meer personen (inclusief inwonende kinderen): geen eisenMaximaal inkomen voor deze woning (dit geldt niet voor wijkvernieuwingsurgenties en rolstoelindicaties):• Voor 1 persoon € 51.537,-• Voor 2 of meer personen € 56.910,-Meer algemene informatie over inkomensregels vind je hier.
Kenmerken
Type:
Woonruimte
Aantal kamers:
3
Vertrekken
Toilet
0.97 m²
Badkamer
2.56 m²
Berging
8.12 m²
Slaapkamer
12.47 m²
Keuken
12.59 m²
Slaapkamer
17.66 m²
Woonkamer
25.56 m²
Vergelijkbare woningen
Appartement - Naberstraat/Groningen (€2450.00/110.00m2)
Groningen
€2.450
3 kamers
Huurwoning - Pioenstraat/Groningen (€2155.00/149.00m2)
Groningen
€2.155
6 kamers
Huurwoning - Hyacinthstraat/Groningen (€2155.00/127.00m2)
Groningen
€2.155
5 kamers
Studio - Coendersweg/Groningen (€840.00/24.00m2)
Groningen
€840
1 kamers
Geen foto
Kamer - Hoekstraat/Groningen (€850.00/19.98m2)
Groningen
€850
1 kamers
Huurwoning - Hondsruglaan/Groningen (€2900.00/178.00m2)
Groningen
€2.900
5 kamers
Meer woningen bekijken?
Ontdek ons volledige aanbod van huurwoningen in Nederland. Van studio's tot gezinswoningen.