Parelstraat 374 - Groningen
📍 Groningen
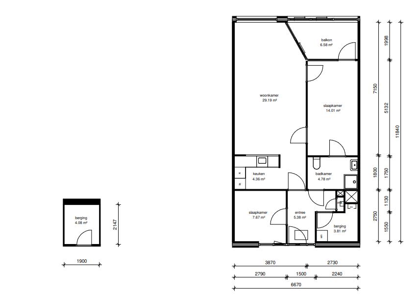
🚪 3 kamers
Deze nette seniorenwoning met twee slaapkamers ligt op de 4e woonlaag in het complex Kleine Parel in de wijk Vinkhuizen, met veel voorzieningen binnen handbereik. De woning is per lift bereikbaar en beschikt over een eigen balkon. In de nabijheid vindt u een uitgebreid winkelcentrum en ook de bushalte is dichtbij. In de recreatieruimte onder de Grote Parelflat, 'de Pareloester', worden regelmatig allerlei leuke activiteiten georganiseerd voor bewoners. In twintig minuten fietst u naar het centrum.In deze woning kookt u op inductie. U bent zelf verantwoordelijk voor een geschikte kookplaat en pannen. Deze woning is geschikt voor 1 of 2 volwassenen. Beide personen dienen minimaal 60 jaar te zijn. Inwonende kinderen zijn in deze woning niet toegestaan.De nieuwe huuringangsdatum is 13 februari 2026.Minimaal inkomen voor deze woning:• geen eisenMaximaal inkomen voor deze woning (dit geldt niet voor wijkvernieuwingsurgenties en rolstoelindicaties):• Voor 1 persoon € 51.537,-• Voor 2 of meer personen € 56.910,-
Kenmerken
Type:
Woonruimte
Aantal kamers:
3
Energielabel:
B
Vertrekken
Berging
4.08 m²
Keuken
4.36 m²
Slaapkamer
7.67 m²
Slaapkamer
14.01 m²
Woonkamer
29.19 m²
Vergelijkbare woningen
Appartement - Naberstraat/Groningen (€2450.00/110.00m2)
Groningen
€2.450
3 kamers
Huurwoning - Pioenstraat/Groningen (€2155.00/149.00m2)
Groningen
€2.155
6 kamers
Huurwoning - Hyacinthstraat/Groningen (€2155.00/127.00m2)
Groningen
€2.155
5 kamers
Studio - Coendersweg/Groningen (€840.00/24.00m2)
Groningen
€840
1 kamers
Geen foto
Kamer - Hoekstraat/Groningen (€850.00/19.98m2)
Groningen
€850
1 kamers
Huurwoning - Hondsruglaan/Groningen (€2900.00/178.00m2)
Groningen
€2.900
5 kamers
Meer woningen bekijken?
Ontdek ons volledige aanbod van huurwoningen in Nederland. Van studio's tot gezinswoningen.