Parelstraat 302 - Groningen
📍 Groningen
🚪 3 kamers
Deze nette seniorenwoning met twee slaapkamers ligt op de eerste verdieping in het complex Kleine Parel in de wijk Vinkhuizen, met veel voorzieningen binnen handbereik. De woning is per lift bereikbaar en beschikt over een eigen balkon. In de nabijheid vindt u een uitgebreid winkelcentrum en ook de bushalte is dichtbij. In de recreatieruimte onder de Grote Parelflat, 'de Pareloester', worden regelmatig allerlei leuke activiteiten georganiseerd voor bewoners. In twintig minuten fietst u naar het centrum.Patrimonium is voornemens om deze woning aan te sluiten op het warmtenet van de stad Groningen. Als u deze woning accepteert realiseert u zich dan dat u een leveringscontract met Warmtestad moet afsluiten zodra de woning op het warmtenet is aangesloten.Let op: vanaf de ingangsdatum kan er in de woning alleen elektrisch gekookt worden. U bent zelf verantwoordelijk voor het aanschaffen van een geschikte kookplaat en pannen.Deze woning is geschikt voor 1 of 2 volwassenen. Beide personen dienen minimaal 60 jaar te zijn. Inwonende kinderen zijn in deze woning niet toegestaan.De nieuwe huuringangsdatum is 13 april 2026.Minimaal inkomen voor deze woning:• geen eisenMaximaal inkomen voor deze woning (dit geldt niet voor wijkvernieuwingsurgenties en rolstoelindicaties):• Voor 1 persoon € 51.537,-• Voor 2 of meer personen € 56.910,-
Kenmerken
Type:
Woonruimte
Aantal kamers:
3
Energielabel:
B
Vertrekken
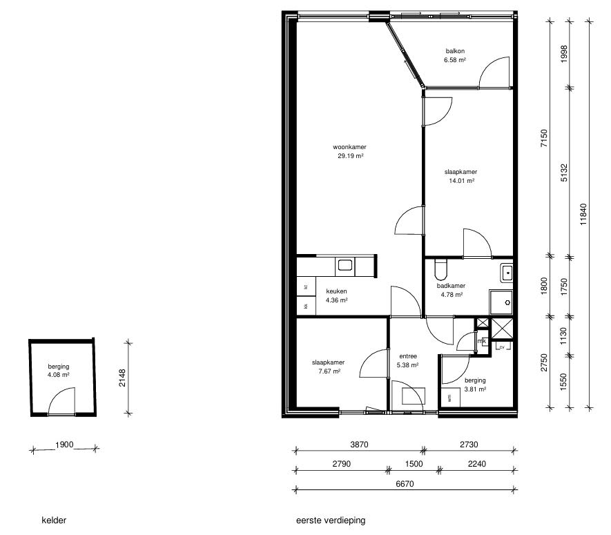
Berging
4.08 m²
Keuken
4.36 m²
Slaapkamer
7.67 m²
Slaapkamer
14.01 m²
Woonkamer
29.19 m²
Vergelijkbare woningen
Appartement - Naberstraat/Groningen (€2450.00/110.00m2)
Groningen
€2.450
3 kamers
Huurwoning - Pioenstraat/Groningen (€2155.00/149.00m2)
Groningen
€2.155
6 kamers
Huurwoning - Hyacinthstraat/Groningen (€2155.00/127.00m2)
Groningen
€2.155
5 kamers
Studio - Coendersweg/Groningen (€840.00/24.00m2)
Groningen
€840
1 kamers
Geen foto
Kamer - Hoekstraat/Groningen (€850.00/19.98m2)
Groningen
€850
1 kamers
Huurwoning - Hondsruglaan/Groningen (€2900.00/178.00m2)
Groningen
€2.900
5 kamers
Meer woningen bekijken?
Ontdek ons volledige aanbod van huurwoningen in Nederland. Van studio's tot gezinswoningen.