Pepijnstraat 2 - Haarlem
📍 Haarlem
🚪 5 kamers
📐 97.00 m²
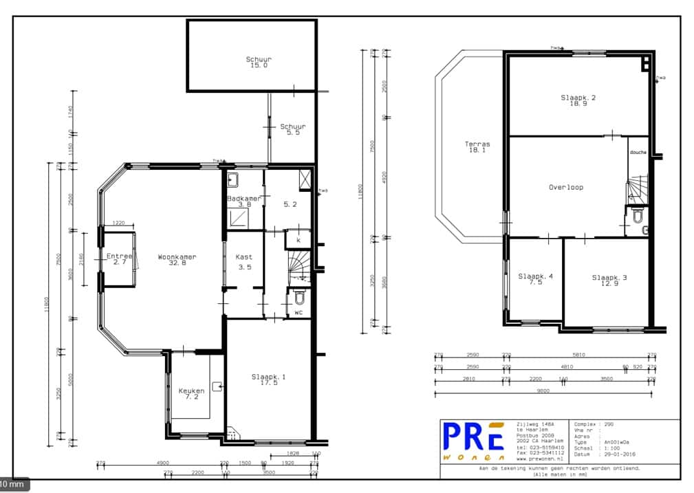
Grote 5 kamer hoekwoning met 2 toiletten, 2 badkamers, dakterras en tuin in volksbuurt Bezichtiging en intakegesprekDe bezichtiging is ingepland op 21 april om 11:00 uur (onder voorbehoud). De eerste 15 kandidaten worden via Woonservice uitgenodigd voor bezichtiging. Kom je kijken? Verzamel dan alvast je gegevens. Het intakegesprek is ingepland op 23 april om ± 15.00 uur. Woning Afgesloten keukenKoken op elektra2x Badkamer en 2x apart toiletWasmachineaansluiting op de overloopAchtertuin, ligging op het westenVerwarming via eigen CV ketelGratis parkerenBekijk voor meer informatie de kenmerken en de plattegrond van de woning OpleveringPre Wonen levert iedere woning op met basiskwaliteit: schoon, heel en veilig. Een bestaande woning heeft altijd gebruikssporen van voorgaande huurder(s). Zelf knapt u de woning op naar uw zin en smaak. Denk hierbij aan het leggen van vloeren (minimaal 10 decibel reducerend), schilderen/behangen van muren, deuren, (raam)kozijnen en plafonds. Dit mag u van uw nieuwe huurwoning verwachten - Pré Wonen.De oplevering van de woning kan afwijken van de advertentietekst, de plattegrond, de foto’s en de bezichtiging in verband met eventuele werkzaamheden. Aan deze advertentie kunt u geen rechten ontlenen.Buurt Dekamarkt op loopafstandUitvalswegenBinnenstad op fietsafstand
Kenmerken
Type:
Woonruimte
Oppervlakte:
97.00 m²
Aantal kamers:
5
Energielabel:
E
Vertrekken
Slaapkamer
7.00 m²
Slaapkamer
11.00 m²
Slaapkamer
17.00 m²
Slaapkamer
18.00 m²
Woonkamer
33.00 m²
Vergelijkbare woningen
Appartement - Vijfhuizerstraat/Haarlem (€2150.00/71.00m2)
Haarlem
€2.150
2 kamers
Studio - Willem van Ospark/Haarlem (€850.00/49.00m2)
Haarlem
€850
2 kamers
Appartement - Gedempte Oude Gracht/Haarlem (€2650.00/95.00m2)
Haarlem
€2.650
4 kamers
Huurwoning - Van't Hoffstraat/Haarlem (€2995.00/125.00m2)
Haarlem
€2.995
6 kamers
Appartement - Amerikaweg/Haarlem (€1715.00/86.00m2)
Haarlem
€1.715
3 kamers
Appartement - Victor van Vrieslandstraat/Haarlem (€1025.00/50.00m2)
Haarlem
€1.025
2 kamers
Meer woningen bekijken?
Ontdek ons volledige aanbod van huurwoningen in Nederland. Van studio's tot gezinswoningen.