Platinalaan 279-2.04 - Groningen
📍 Groningen
🚪 2 kamers
Deze seniorenwoning met 1 slaapkamer bevindt zich in de Platinaflat in de wijk Vinkhuizen. Het appartement ligt op de 2e woonlaag en is per lift te bereiken. Naast deze seniorenflat ligt het winkelcentrum van Vinkhuizen. Inwonende kinderen zijn niet toegestaan.De woning heeft geen eigen balkon. Op elke verdieping is een gezamenlijk balkon gelegen, waarvan gebruik gemaakt kan worden. Op de begane grond is een algemene berging aanwezig waar plaats is voor fietsen. Scootmobielplaatsen kunnen hier tegen betaling worden gehuurd.In dit complex wordt gebruik gemaakt van een collectieve warmtevoorziening. Het verbruik wordt per woning bemeterd en zal aan het eind van het stookjaar door Patrimonium worden verrekend. Het voorschotbedrag van warmte- en warm tapwater is vastgesteld op € 100,- per maand en zit bij de huurprijs inbegrepen.Let op: in de woning kunt u alleen elektrisch koken. U bent zelf verantwoordelijk voor het aanschaffen van een kookplaat en juiste pannen. De nieuwe huuringangsdatum is per 27 november 2025.Minimaal inkomen voor deze woning:• geen eisenMaximaal inkomen voor deze woning (dit geldt niet voor wijkvernieuwingsurgenties en rolstoelindicaties):• Voor 1 persoon € 49.669,-• Voor 2 of meer personen € 54.847,-
Kenmerken
Type:
Woonruimte
Aantal kamers:
2
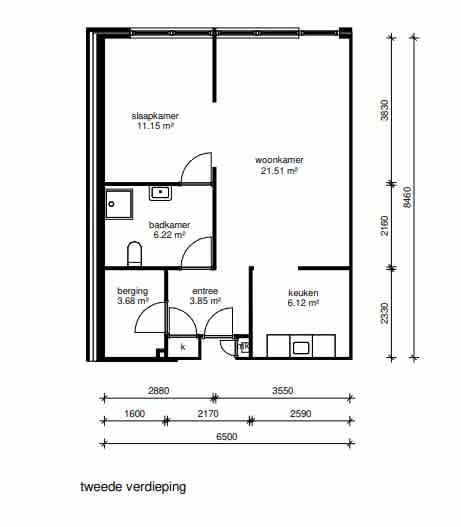
Vertrekken
Berging
3.68 m²
Keuken
6.12 m²
Slaapkamer
11.15 m²
Woonkamer
21.51 m²
Vergelijkbare woningen
Appartement - Naberstraat/Groningen (€2450.00/110.00m2)
Groningen
€2.450
3 kamers
Huurwoning - Pioenstraat/Groningen (€2155.00/149.00m2)
Groningen
€2.155
6 kamers
Huurwoning - Hyacinthstraat/Groningen (€2155.00/127.00m2)
Groningen
€2.155
5 kamers
Studio - Coendersweg/Groningen (€840.00/24.00m2)
Groningen
€840
1 kamers
Geen foto
Kamer - Hoekstraat/Groningen (€850.00/19.98m2)
Groningen
€850
1 kamers
Huurwoning - Hondsruglaan/Groningen (€2900.00/178.00m2)
Groningen
€2.900
5 kamers
Meer woningen bekijken?
Ontdek ons volledige aanbod van huurwoningen in Nederland. Van studio's tot gezinswoningen.