Platinalaan 239 - Groningen
📍 Groningen
🚪 2 kamers
Deze seniorenwoning met 1 slaapkamer bevindt zich in de Platinaflat in de wijk Vinkhuizen. Het appartement ligt op de 8e verdieping. Naast deze seniorenflat ligt het winkelcentrum van Vinkhuizen. Inwonende kinderen zijn niet toegestaan.De woning heeft geen eigen balkon. Op elke verdieping is een gezamenlijk balkon gelegen, waarvan gebruik gemaakt kan worden. Op de begane grond is een algemene berging aanwezig waar plaats is voor fietsen. Scootmobielplaatsen kunnen hier tegen betaling worden gehuurd.Deze woning is aangesloten op het warmtenet van de stad Groningen. Als u deze woning accepteert realiseert u zich dan dat u een leveringscontract met Warmtestad moet afsluiten.Let op: in de woning kunt u alleen elektrisch koken. U bent zelf verantwoordelijk voor het aanschaffen van een kookplaat en juiste pannen. De nieuwe huuringangsdatum is per 3 maart 2026.Minimaal inkomen voor deze woning:• geen eisenMaximaal inkomen voor deze woning (dit geldt niet voor wijkvernieuwingsurgenties en rolstoelindicaties):• Voor 1 persoon € 51.537,-• Voor 2 of meer personen € 56.910,-
Kenmerken
Type:
Woonruimte
Aantal kamers:
2
Energielabel:
D
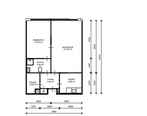
Vertrekken
Berging
3.29 m²
Keuken
5.93 m²
Slaapkamer
12.24 m²
Woonkamer
21.44 m²
Vergelijkbare woningen
Appartement - Naberstraat/Groningen (€2450.00/110.00m2)
Groningen
€2.450
3 kamers
Huurwoning - Pioenstraat/Groningen (€2155.00/149.00m2)
Groningen
€2.155
6 kamers
Huurwoning - Hyacinthstraat/Groningen (€2155.00/127.00m2)
Groningen
€2.155
5 kamers
Studio - Coendersweg/Groningen (€840.00/24.00m2)
Groningen
€840
1 kamers
Geen foto
Kamer - Hoekstraat/Groningen (€850.00/19.98m2)
Groningen
€850
1 kamers
Huurwoning - Hondsruglaan/Groningen (€2900.00/178.00m2)
Groningen
€2.900
5 kamers
Meer woningen bekijken?
Ontdek ons volledige aanbod van huurwoningen in Nederland. Van studio's tot gezinswoningen.