Platinalaan 341 - Groningen
📍 Groningen
🚪 2 kamers
Deze seniorenwoning met ruime woonkamer en 1 slaapkamer ligt in de wijk Vinkhuizen waar veel voorzieningen binnen handbereik zijn. Om de hoek vindt u een uitgebreid winkelcentrum en ook de bushalte is dichtbij. Het complex heeft een afgesloten portiek met intercom en er is een lift aanwezig. Deze woning ligt op de 2e woonlaag. De woning beschikt niet over een eigen balkon, maar op elke verdieping is wel een gezamenlijk balkon. Ook is er een gezamenlijke fietsenberging.In de huurprijs zit een voorschot van €185,- voor stookkosten inbegrepen. U kunt in deze woning alleen koken op inductie. U bent zelf verantwoordelijk voor de aanschaf van een geschikte kookplaat en pannen. In de douche zit een douchestoeltje; deze blijft zitten.Voordat wij u de woning definitief toewijzen, plannen wij een intakegesprek. Tijdens dat gesprek vertellen wij u meer over de woning en over de (nabije) woonomgeving en bespreken we met u of die bij u als huurder passen. Op basis van de intake kan de voorlopige aanbieding worden ingetrokken. Uw inschrijfdatum bij Groningen huurt is dus niet bepalend voor definitieve toewijzing van deze woning.De woning is per 2 april 2026 te huur.Minimaal inkomen voor deze woning:• geen eisenMaximaal inkomen voor deze woning (dit geldt niet voor wijkvernieuwingsurgenties en rolstoelindicaties):• Voor 1 persoon € 51.537,-• Voor 2 of meer personen € 56.910,-
Kenmerken
Type:
Woonruimte
Aantal kamers:
2
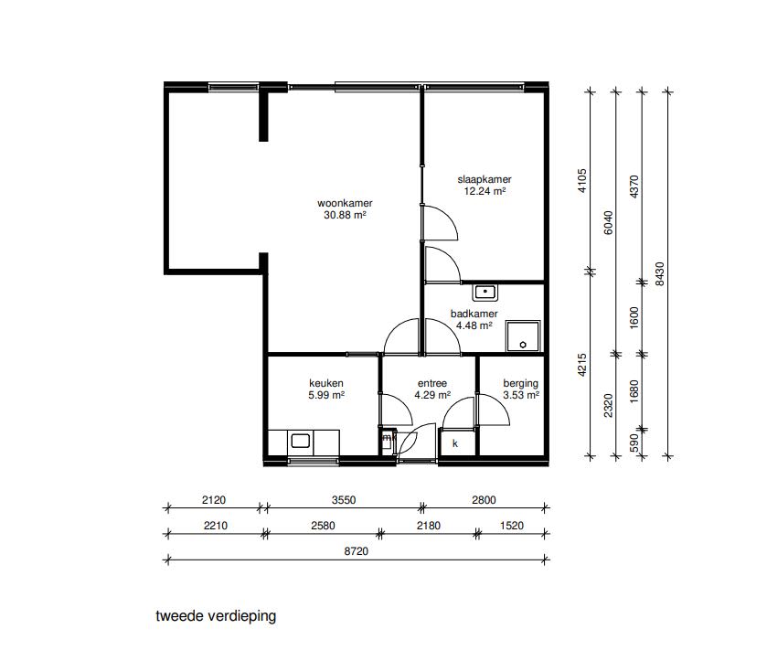
Vertrekken
Berging
3.53 m²
Badkamer
4.48 m²
Keuken
5.99 m²
Slaapkamer
12.24 m²
Woonkamer
30.88 m²
Vergelijkbare woningen
Appartement - Naberstraat/Groningen (€2450.00/110.00m2)
Groningen
€2.450
3 kamers
Huurwoning - Pioenstraat/Groningen (€2155.00/149.00m2)
Groningen
€2.155
6 kamers
Huurwoning - Hyacinthstraat/Groningen (€2155.00/127.00m2)
Groningen
€2.155
5 kamers
Studio - Coendersweg/Groningen (€840.00/24.00m2)
Groningen
€840
1 kamers
Geen foto
Kamer - Hoekstraat/Groningen (€850.00/19.98m2)
Groningen
€850
1 kamers
Huurwoning - Hondsruglaan/Groningen (€2900.00/178.00m2)
Groningen
€2.900
5 kamers
Meer woningen bekijken?
Ontdek ons volledige aanbod van huurwoningen in Nederland. Van studio's tot gezinswoningen.