Radijsstraat 51A - Groningen
📍 Groningen
🚪 2 kamers
TIJDELIJKE WONINGHet betreft hier verhuur krachtens de leegstandswet. Uw inschrijving bij Woningnet (inschrijfduur) komt niet te vervallen bij acceptatie van deze woning. Let op: de woning is per 19 februari 2026 te huur tot en met 30 september 2026. Daarna bent u zelf verantwoordelijk voor het vinden van andere woonruimte.Knus appartement met 1 slaapkamer op de 2e woonlaag in de Tuinwijk. In de omgeving zijn diverse voorzieningen te vinden, waaronder een winkelcentrum, openbaar vervoer en het Noorderplantsoen. In tien minuten fietst u naar het centrum van de stad. Let op: dit betreft een gehorige woning. De woning is per 19 februari 2026 te huur tot en met 30 september 2026.Minimaal inkomen voor deze woning:• geen eisenMaximaal inkomen voor deze woning (dit geldt niet voor wijkvernieuwingsurgenties en rolstoelindicaties):• Voor 1 persoon € 51.537,-• Voor 2 of meer personen € 56.910,-
Kenmerken
Type:
Woonruimte
Aantal kamers:
2
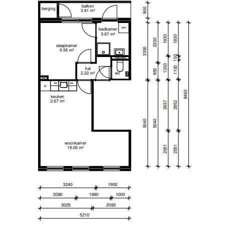
Vertrekken
Berging
0.90 m²
Toilet
1.10 m²
Keuken
3.67 m²
Badkamer
3.67 m²
Slaapkamer
9.56 m²
Woonkamer
16.06 m²
Vergelijkbare woningen
Appartement - Naberstraat/Groningen (€2450.00/110.00m2)
Groningen
€2.450
3 kamers
Huurwoning - Pioenstraat/Groningen (€2155.00/149.00m2)
Groningen
€2.155
6 kamers
Huurwoning - Hyacinthstraat/Groningen (€2155.00/127.00m2)
Groningen
€2.155
5 kamers
Studio - Coendersweg/Groningen (€840.00/24.00m2)
Groningen
€840
1 kamers
Geen foto
Kamer - Hoekstraat/Groningen (€850.00/19.98m2)
Groningen
€850
1 kamers
Huurwoning - Hondsruglaan/Groningen (€2900.00/178.00m2)
Groningen
€2.900
5 kamers
Meer woningen bekijken?
Ontdek ons volledige aanbod van huurwoningen in Nederland. Van studio's tot gezinswoningen.