+1
Radioplein 9 - IJsselstein
📍 Ijsselstein
🚪 3 kamers
📐 53.00 m²
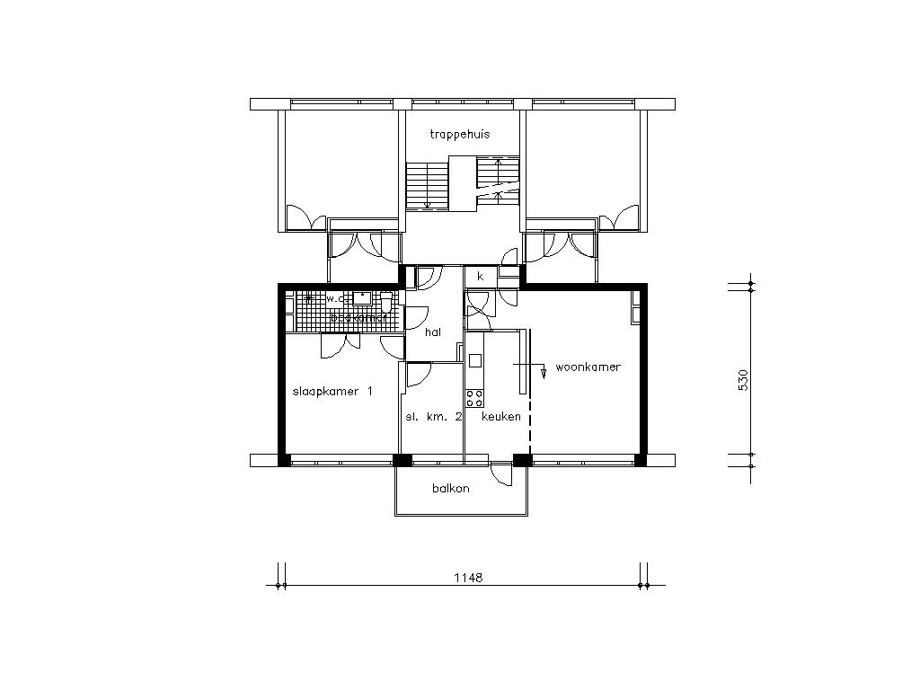
De woning is voorzien van een cv-combiketel. Tevens is er mechanische ventilatie aangebracht. De keuken is afgesloten en u kookt op gas of elektrisch. Het portiek is afgesloten en in de woning te openen via een intercomsysteem. Tevens is er een aparte (fietsen)berging aanwezig. Voor de deur is voldoende (gratis) parkeergelegenheid en zijn winkels, openbaar vervoer en scholen op loopafstand. De woning bevindt zich op de 3e etage en is via de lift te bereiken en heeft een afgesloten algemene toegang met videofoon. Wanneer u de woning binnen komt via de hal, heeft u vanuit hier toegang tot de woonkamer, de 2 slaapkamers en de badkamer. Via de keuken heeft u toegang tot het balkon, welke op het oosten ligt. Bijzonderheden op een rij:Koken elektrisch = 2 fase Perilex; Afgesloten keuken;Zonnepanelen;Wasmachine aansluiting in de badkamer;Aparte berging; Voorzieningen nabije omgeving: winkelcentrum en school;Lichte woning, zonder overnames.Heeft u interesse en wilt u de woning bezichtigen?De eerste 7 geselecteerde kandidaten ontvangen een mailbericht van WoningNet om de woning te gaan bezichtigen.U kunt de woning bekijken met maximaal 2 personenHoudt u er dan rekening mee dat er een bezichtiging plaats zal vinden op 21 oktober 2025.Let op: de woning is onder voorbehoud per genoemde datum beschikbaarU kunt nog tot 1 dag voor bezichtiging bericht krijgen dat u de volgende dag hierbij aanwezig dient te zijn.Als u niet zelf naar de bezichtiging kunt komen, kunt u iemand anders machtigen. Geef via verhuur@cazaswonen.nl door wie namens u de woning komt bezichtigen.Bij de bezichtiging is een verhuurmakelaar aanwezig.
Kenmerken
Type:
Woonruimte
Oppervlakte:
53.00 m²
Aantal kamers:
3
Energielabel:
A+
Vertrekken
Doucheruimte
3.50 m²
Berging
4.00 m²
Slaapkamer
5.50 m²
Keuken
7.50 m²
Slaapkamer
14.00 m²
Woonkamer
22.00 m²
Vergelijkbare woningen
Huurwoning - Belgradostraat/IJsselstein (€2995.00/184.00m2)
Ijsselstein
€2.995
5 kamers
Huurwoning - Meerenburgerhorn/IJsselstein (€2500.00/105.00m2)
Ijsselstein
€2.500
4 kamers
Huurwoning - Poortdijk/IJsselstein (€2150.00/120.00m2)
Ijsselstein
€2.150
4 kamers
Huurwoning - Kortegolf/IJsselstein (€2600.00/152.00m2)
Ijsselstein
€2.600
5 kamers
Woning aan de Hooikade te Den Haag
Den Haag
€3.590
3 kamers
Woning aan de Amsterdamsestraat te Muiden
Muiden
€1.750
2 kamers
Meer woningen bekijken?
Ontdek ons volledige aanbod van huurwoningen in Nederland. Van studio's tot gezinswoningen.