Rode Kruislaan 37 - Groningen
📍 Groningen
🚪 5 kamers
Leuke flatwoning met een ruime woonkamer, 3 slaapkamers en 2 balkons op de 1e verdieping in de wijk Corpus den Hoorn. Er vindt een keuken, badkamer en toiletrenovatie plaats. Diverse voorzieningen zijn in de buurt aanwezig bijvoorbeeld: scholen, openbaar vervoer en het winkelcentrum aan het Overwinningsplein. De nieuwe huuringangsdatum is: 20 februari 2026.Minimaal inkomen voor deze woning:• Voor 1 persoon: geen eisen• Voor 2 of meer personen (inclusief inwonende kinderen): € 39.925,-Maximaal inkomen voor deze woning (dit geldt niet voor wijkvernieuwingsurgenties en rolstoelindicaties):• Voor 1 persoon € 51.537• Voor 2 of meer personen € 56.910
Kenmerken
Type:
Woonruimte
Aantal kamers:
5
Energielabel:
C
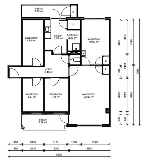
Vertrekken
Toilet
0.98 m²
Badkamer
2.49 m²
Slaapkamer
6.47 m²
Keuken
6.65 m²
Slaapkamer
7.41 m²
Slaapkamer
8.88 m²
Berging
9.59 m²
Slaapkamer
10.90 m²
Berging
16.81 m²
Woonkamer
20.80 m²
Vergelijkbare woningen
Appartement - Naberstraat/Groningen (€2450.00/110.00m2)
Groningen
€2.450
3 kamers
Huurwoning - Pioenstraat/Groningen (€2155.00/149.00m2)
Groningen
€2.155
6 kamers
Huurwoning - Hyacinthstraat/Groningen (€2155.00/127.00m2)
Groningen
€2.155
5 kamers
Studio - Coendersweg/Groningen (€840.00/24.00m2)
Groningen
€840
1 kamers
Geen foto
Kamer - Hoekstraat/Groningen (€850.00/19.98m2)
Groningen
€850
1 kamers
Huurwoning - Hondsruglaan/Groningen (€2900.00/178.00m2)
Groningen
€2.900
5 kamers
Meer woningen bekijken?
Ontdek ons volledige aanbod van huurwoningen in Nederland. Van studio's tot gezinswoningen.