Rodeweeshuisstraat 69 - Groningen
📍 Groningen
🚪 2 kamers
Algemeen Seniorenwoning. De te huur per datum is onder voorbehoud. Indien deze woning meer dan 10 keer wordt geweigerd op basis van de toewijzingsprocedure inschrijfduur, zal de woning opnieuw gepubliceerd worden met toewijzingsprocedure loting. Huishoudsamenstelling Geschikt voor maximaal personen 2 personen welke beide de minimale leeftijd van 55 jaar hebben. Niet geschikt voor inwonende kinderen. Parkeren Voor informatie over parkeren kunt u kijken op de website van de Gemeente Groningen.
Kenmerken
Type:
Woonruimte
Aantal kamers:
2
Energielabel:
B
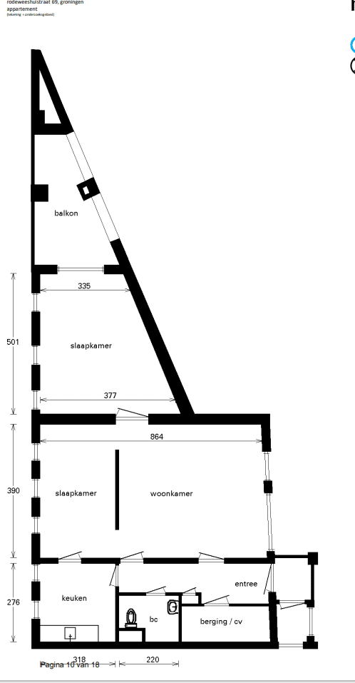
Vertrekken
Badkamer
2.00 m²
Berging
3.60 m²
Berging
4.18 m²
Keuken
7.73 m²
Slaapkamer
20.28 m²
Woonkamer
41.76 m²
Vergelijkbare woningen
Appartement - Naberstraat/Groningen (€2450.00/110.00m2)
Groningen
€2.450
3 kamers
Huurwoning - Pioenstraat/Groningen (€2155.00/149.00m2)
Groningen
€2.155
6 kamers
Huurwoning - Hyacinthstraat/Groningen (€2155.00/127.00m2)
Groningen
€2.155
5 kamers
Studio - Coendersweg/Groningen (€840.00/24.00m2)
Groningen
€840
1 kamers
Geen foto
Kamer - Hoekstraat/Groningen (€850.00/19.98m2)
Groningen
€850
1 kamers
Huurwoning - Hondsruglaan/Groningen (€2900.00/178.00m2)
Groningen
€2.900
5 kamers
Meer woningen bekijken?
Ontdek ons volledige aanbod van huurwoningen in Nederland. Van studio's tot gezinswoningen.