Schoolholm 33A - Groningen
📍 Groningen
🚪 3 kamers
Mooi appartement midden in het centrum van Groningen. De woning wordt voorzien van een nieuwe keuken en de wc vloer wordt vervangen. In deze straat is er sprake van veel leefgeluiden, zowel overdag als in de nacht. Hier moet u tegen kunnen. Het betreft een gehorige portiek, dus wij zijn op zoek naar een rustig persoon (personen) die rekening houdt met zijn buren. De huuringangsdatum is 14 november 2025. Minimaal inkomen voor deze woning:• geen eisenMaximaal inkomen voor deze woning (dit geldt niet voor wijkvernieuwingsurgenties en rolstoelindicaties):• Voor 1 persoon € 49.669,-• Voor 2 of meer personen € 54.847,-
Kenmerken
Type:
Woonruimte
Aantal kamers:
3
Energielabel:
A
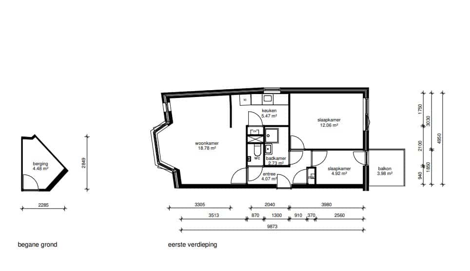
Vertrekken
Toilet
1.02 m²
Badkamer
2.73 m²
Berging
4.48 m²
Slaapkamer
4.92 m²
Keuken
5.47 m²
Slaapkamer
12.06 m²
Woonkamer
18.78 m²
Vergelijkbare woningen
Appartement - Naberstraat/Groningen (€2450.00/110.00m2)
Groningen
€2.450
3 kamers
Huurwoning - Pioenstraat/Groningen (€2155.00/149.00m2)
Groningen
€2.155
6 kamers
Huurwoning - Hyacinthstraat/Groningen (€2155.00/127.00m2)
Groningen
€2.155
5 kamers
Studio - Coendersweg/Groningen (€840.00/24.00m2)
Groningen
€840
1 kamers
Geen foto
Kamer - Hoekstraat/Groningen (€850.00/19.98m2)
Groningen
€850
1 kamers
Huurwoning - Hondsruglaan/Groningen (€2900.00/178.00m2)
Groningen
€2.900
5 kamers
Meer woningen bekijken?
Ontdek ons volledige aanbod van huurwoningen in Nederland. Van studio's tot gezinswoningen.