Schoolholm 19G - Groningen
📍 Groningen
🚪 3 kamers
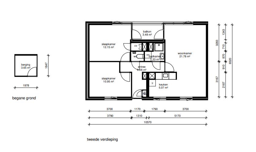
Leuke portiekwoning op de tweede woonlaag in het centrum van de stad. De woning heeft 2 slaapkamers en is via een afgesloten portiek te bereiken. De Vismarkt is bijna om de hoek gelegen en in de directe omgeving bevinden zich diverse voorzieningen waaronder openbaar vervoer, winkels en academie Minerva. Het station is te voet in tien minuten bereikbaar.De nieuwe huuringangsdatum is 30 maart 2026.Minimaal inkomen voor deze woning:• geen eisenMaximaal inkomen voor deze woning (dit geldt niet voor wijkvernieuwingsurgenties en rolstoelindicaties):• Voor 1 persoon € 51.537,-• Voor 2 of meer personen € 56.910,-
Kenmerken
Type:
Woonruimte
Aantal kamers:
3
Vertrekken
Slaapkamer
10.95 m²
Slaapkamer
12.15 m²
Woonkamer
21.78 m²
Vergelijkbare woningen
Appartement - Naberstraat/Groningen (€2450.00/110.00m2)
Groningen
€2.450
3 kamers
Huurwoning - Pioenstraat/Groningen (€2155.00/149.00m2)
Groningen
€2.155
6 kamers
Huurwoning - Hyacinthstraat/Groningen (€2155.00/127.00m2)
Groningen
€2.155
5 kamers
Studio - Coendersweg/Groningen (€840.00/24.00m2)
Groningen
€840
1 kamers
Geen foto
Kamer - Hoekstraat/Groningen (€850.00/19.98m2)
Groningen
€850
1 kamers
Huurwoning - Hondsruglaan/Groningen (€2900.00/178.00m2)
Groningen
€2.900
5 kamers
Meer woningen bekijken?
Ontdek ons volledige aanbod van huurwoningen in Nederland. Van studio's tot gezinswoningen.