Schulpweg 444 - Velsen-Noord
📍 Velsen-noord
🚪 4 kamers
Let op, belangrijk! In Velsen-Noord - Samen bouwen aan een sterke buurt! Bent u op zoek naar een fijne woning én wilt u bijdragen aan een positieve sfeer in de wijk? Dan is deze woning misschien wel iets voor u! Wij zijn op zoek naar betrokken huurders die samen met ons willen werken aan een hechte en actieve gemeenschap in Velsen-Noord. Velsen-Noord is een buurt in ontwikkeling. Daarom zoeken we bewoners die graag meedoen aan buurtactiviteiten en die willen helpen de sociale samenhang te versterken. Voor de toewijzing van de woning plannen we een intakegesprek, waarin we samen bespreken hoe u kunt bijdragen aan de buurt. Wat we zoeken: - Kandidaten met een middeninkomen, zie voorrangsregels - Betrokkenheid bij de buurt - Interesse in het versterken van de gemeenschap Wat we bieden: - Een comfortabele woning in een opkomende wijk - De kans om samen met anderen een verschil te maken - Een intakegesprek als onderdeel van de toewijzing Heeft u interesse om samen met ons de buurt te versterken? Reageer dan op deze woning! Woning 4-kamerwoning 3 slaapkamers PortiekflatGesloten keukenStandaard keukenblok 180cm Koken op gas CV-ketelWasmachine aansluiting in de keuken Aparte toiletruimte Dubbel glas Externe berging Bezichtiging De eerste 10 kandidaten ontvangen een uitnodiging voor de groepsbezichtiging. De groepsbezichtiging is op donderdag 6 november om 15:30 De advertentie is gewijzigd op 14-10-2025 07:35:06.
Kenmerken
Type:
Woonruimte
Aantal kamers:
4
Energielabel:
D
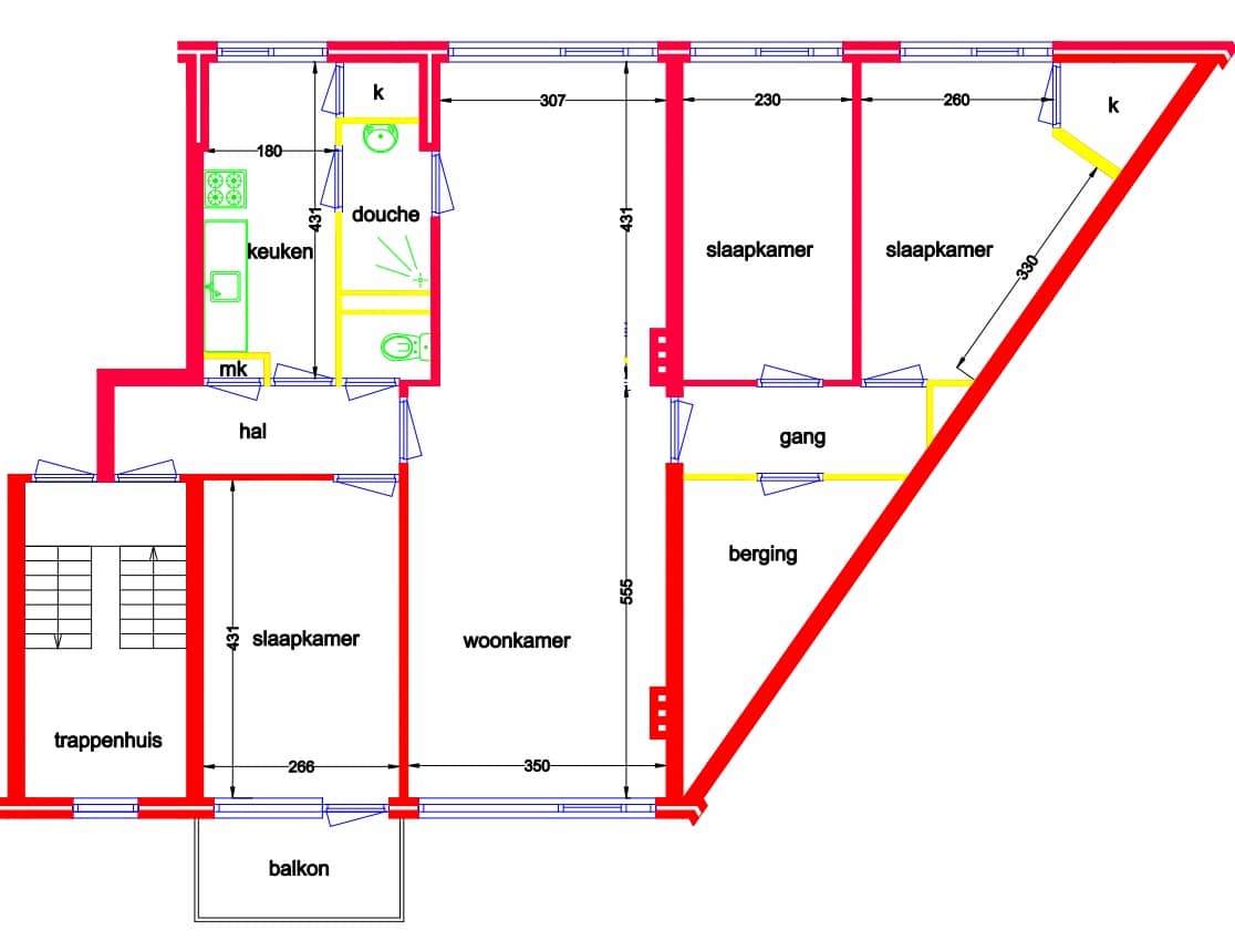
Vertrekken
Badkamer
2.81 m²
Bijkeuken
2.84 m²
Keuken
7.65 m²
Slaapkamer
9.91 m²
Slaapkamer
10.76 m²
Slaapkamer
11.46 m²
Berging
14.52 m²
Woonkamer
32.66 m²
Vergelijkbare woningen
Appartement - Noorderlaan/Velsen-Noord (€1824.00/97.00m2)
Velsen-noord
€1.824
4 kamers
Appartement - Noorderlaan/Velsen-Noord (€1750.00/104.00m2)
Velsen-noord
€1.750
3 kamers
Woning aan de Hooikade te Den Haag
Den Haag
€3.590
3 kamers
Woning aan de Amsterdamsestraat te Muiden
Muiden
€1.750
2 kamers
Woning aan de Pannesheiderstraat te Kerkrade
Kerkrade
€380
1 kamers
Woning aan de Maaskade te Rotterdam
Rotterdam
€2.350
3 kamers
Meer woningen bekijken?
Ontdek ons volledige aanbod van huurwoningen in Nederland. Van studio's tot gezinswoningen.