Siersteenlaan 229 - Groningen
📍 Groningen
🚪 3 kamers
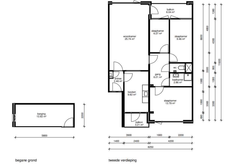
Ruim appartement met 2 slaapkamers en 2 balkons op de 1e verdieping in Vinkhuizen. Omdat wij voor deze woning op zoek zijn naar een alleenstaand persoon of stel is in de kenmerken aangegeven dat er 2 slaapkamers zijn. Echter is er nog een derde kleine kamer van ongeveer 6 m2. De woning is met de lift bereikbaar. Er zijn diverse voorzieningen in de wijk Vinkhuizen aanwezig zoals een winkelcentrum, openbaar vervoer etc.Patrimonium is voornemens om deze woning aan te sluiten op het warmtenet van de stad Groningen. Als u deze woning accepteert realiseert u zich dan dat u een leveringscontract met Warmtestad moet afsluiten zodra de woning op het warmtenet is aangesloten. Let op: vanaf de ingangsdatum kan er in de woning alleen elektrisch gekookt worden. U bent zelf verantwoordelijk voor het aanschaffen van een geschikte kookplaat en pannen.Voordat wij u de woning definitief toewijzen, plannen wij een intakegesprek. Tijdens dat gesprek vertellen wij u meer over de woning en over de (nabije) woonomgeving en bespreken we met u of die bij u als huurder passen. Op basis van de intake kan de voorlopige aanbieding worden ingetrokken. Uw inschrijfdatum bij WoningNet is dus niet bepalend voor definitieve toewijzing van deze woning.De huuringangsdatum is per direct.De woning wordt aangeboden middels een groepsbezichting op woensdagochtend 7 januari. Als u hiervoor wordt uitgenodigd ontvangt u een e-mail. Minimaal inkomen voor deze woning:• Voor 1 persoon: € 29.400,-• Voor 1 persoon met AOW: € 28.775,-• Voor 2 personen (inclusief inwonende kinderen): € 39.925,-,-• Voor 2 personen met AOW: € 38.650,-• Voor 3 of meer personen (inclusief inwonende kinderen): geen eisenMaximaal inkomen voor deze woning (dit geldt niet voor wijkvernieuwingsurgenties en rolstoelindicaties):• Voor 1 persoon € 51.537,-• Voor 2 of meer personen € 56.910,-De advertentie is gewijzigd op 31-12-2025 11:01:09.
Kenmerken
Type:
Woonruimte
Aantal kamers:
3
Energielabel:
C
Vertrekken
Badkamer
2.86 m²
Overig vertrek
6.00 m²
Slaapkamer
9.46 m²
Keuken
9.82 m²
Berging
12.82 m²
Slaapkamer
13.79 m²
Woonkamer
25.74 m²
Vergelijkbare woningen
Appartement - Naberstraat/Groningen (€2450.00/110.00m2)
Groningen
€2.450
3 kamers
Huurwoning - Pioenstraat/Groningen (€2155.00/149.00m2)
Groningen
€2.155
6 kamers
Huurwoning - Hyacinthstraat/Groningen (€2155.00/127.00m2)
Groningen
€2.155
5 kamers
Studio - Coendersweg/Groningen (€840.00/24.00m2)
Groningen
€840
1 kamers
Geen foto
Kamer - Hoekstraat/Groningen (€850.00/19.98m2)
Groningen
€850
1 kamers
Huurwoning - Hondsruglaan/Groningen (€2900.00/178.00m2)
Groningen
€2.900
5 kamers
Meer woningen bekijken?
Ontdek ons volledige aanbod van huurwoningen in Nederland. Van studio's tot gezinswoningen.