+17
Slachthuisstraat 337 - Zaandam
📍 Zaandam
🚪 3 kamers
📐 76.00 m²
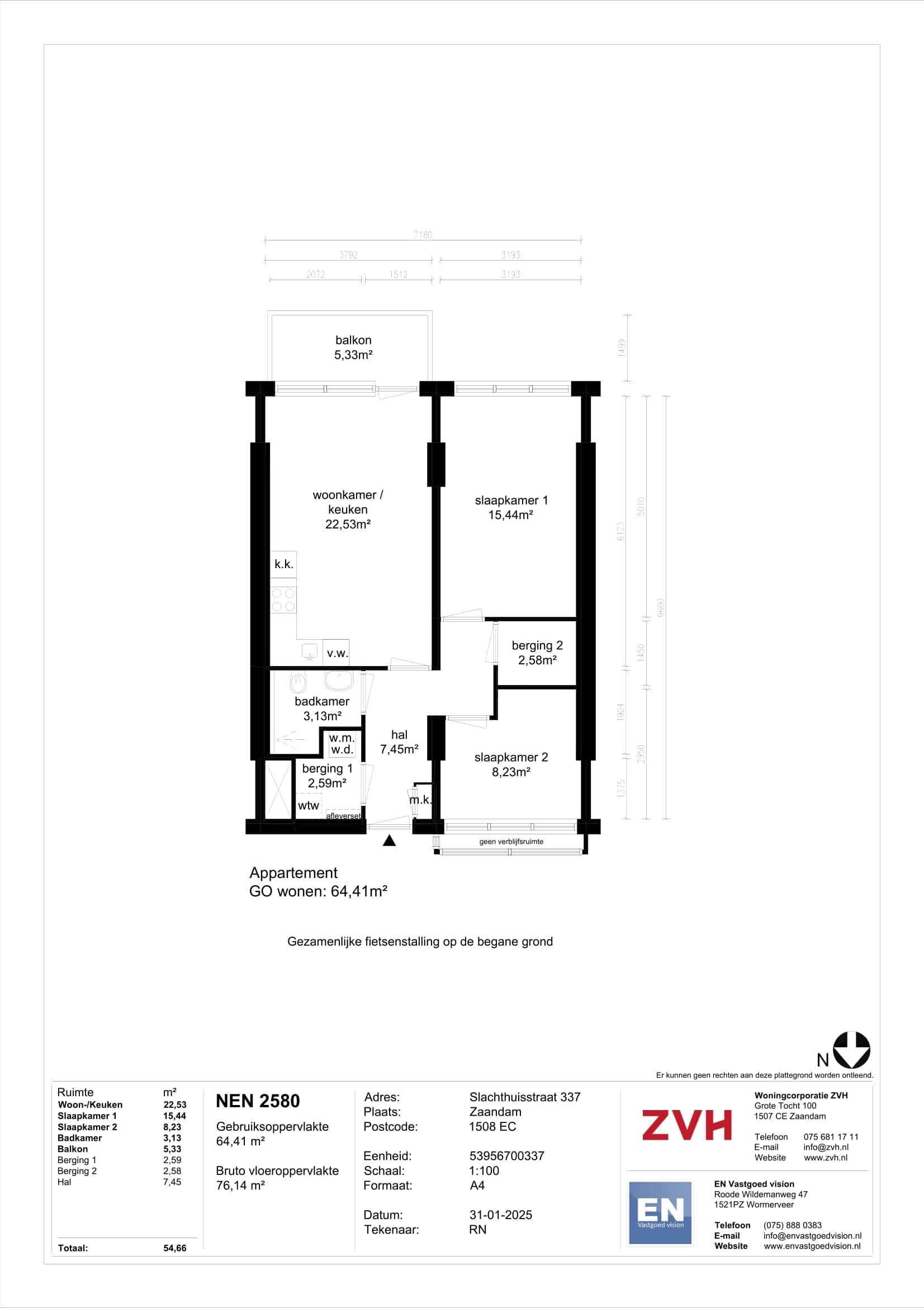
Nieuw wonen in Timbr, Zaandam – Diverse duurzame huurwoningenIn de levendige wijk Kogerveld in Zaandam staan sinds kort een bijzonder gebouw: Timbr. Een nieuwbouwproject met karakter, flair en een hart voor de toekomst.De Kogerveldwijk ondergaat de komende jaren een enorme transformatie. Nieuwe woningen, voorzieningen, ontmoetingsplekken en een groene openbare ruimte maken van deze buurt een geweldige plek om te zijn. En dat op een toplocatie: twee supermarkten om de hoek, het treinstation Zaandam Kogerveld ligt op loopafstand en met de auto zit je zó op de A7 richting Amsterdam of Alkmaar. Het is goed om te weten dat er op dit moment gratis geparkeerd kan worden in de wijk. De gemeente Zaanstad is voornemens dit op termijn te wijzigen naar betaald parkeren. Bewoners van Timbr komen niet in aanmerking voor een parkeervergunning. Op basis van beschikbaarheid kan er een parkeerplaats gehuurd worden in de naastgelegen parkeergarage, op dit moment is er geen plek beschikbaar. Een gebouw met een verhaalTimbr is een U-vorming gebouw waarbij het laagste deel 8 verdiepingen telt en het hoogste deel 13 verdiepingen. De gevel is bekleed met o.a. duurzaam bamboe. Het gebouw heeft een warme, natuurlijke uitstraling en past perfect in de groene ambities van de wijk. Binnenin 158 duurzame en energiezuinige woningen – van compact en slim tot ruim en comfortabel. Er zijn verschillende woningtypes beschikbaar, met uiteenlopende huurprijzen.Meer dan alleen wonenBij Timbr draait het niet alleen om een fijn huis, maar ook om samen leven. Er komt een gemeenschappelijke tuin voorzien van diverse planten, bomen en bankjes om in te ontspannen of een praatje te maken en een community ruimte waar bewoners samen activiteiten kunnen organiseren. Hier woon je niet naast elkaar, maar met elkaar. Of het wonen in Timbr ook praktisch is? Zeker. U kunt gebruik maken van de inpandige fietsenstalling en een parkeerplek voor auto, scooter of motor huren op basis van beschikbaarheid. Daarnaast is het goed te weten dat het complex / de appartementen zijn voorzien van de volgende voorzieningen:Er zijn twee liften aanwezig;Er zijn zonnepanelen aanwezig voor de terugwinning van de WKO;De entreedeur gaat met een tag automatisch open en dicht, net zoals de toegang voor de fietsenberging. De andere deuren in het complex open je handmatig;Het gebouw is gasloos. Dit betekent elektrisch koken;De appartementen worden verwarmd en gekoeld door een collectieve warmtepomp met vloerverwarming en –koeling. Elke woning heeft een eigen afleverset waardoor de temperatuur in de woning aan te passen is;Energielabel A+++;Er is een mogelijkheid tot het huren van een (scootmobiel-)parkeerplaats, op basis van beschikbaarheid.3-kamer appartement met luxe keukenBinnenkomst is in een compacte hal. Aan de linkerzijde is er een toegang tot de inpandige berging met wasmachine aansluiting. Vanuit de hal zijn alle andere ruimtes bereikbaar, waaronder de badkamer voorzien van inloopdouche, wastafel en hangend toilet, een kleine slaapkamer aan de voorzijde van het appartement, de hoofdslaapkamer en een inpandige berging. De ruime woonkamer met open keuken biedt toegang tot het balkon. De luxe witte hoekkeuken is voorzien van diverse inbouwapparatuur, zoals een kookplaat met afzuigkap, een koel-vriescombinatie, een oven en een vaatwasmachine. Per woning zijn er minimaal 2 stallingsplaatsen voor fietsen gereserveerd in de fietsenstalling op de begane grond.Let opEr is overname in de woning aanwezig, dit gaat in overleg tussen de oude en nieuwe huurder.De servicekosten kunnen per appartement verschillen. Op dit moment is er rekening gehouden met een raming van de kosten. Na één jaar worden deze vastgesteld naar een nieuw normbedrag, de verwachting is dat de servicekosten lager uit zullen vallen;De bezichtiging zal plaatsvinden op vrijdag 13 februari om 14.00 uur.
Kenmerken
Type:
Woonruimte
Oppervlakte:
76.00 m²
Aantal kamers:
3
Energielabel:
A+++
Vergelijkbare woningen
Appartement - Oosterwerf/Zaandam (€1100.00/80.00m2)
Zaandam
€1.100
3 kamers
Appartement - Mahoniehout/Zaandam (€2150.00/72.00m2)
Zaandam
€2.150
3 kamers
Appartement - Timmerrak/Zaandam (€1840.00/84.00m2)
Zaandam
€1.840
3 kamers
Huurwoning - Symfonie/Zaandam (€2595.00/126.00m2)
Zaandam
€2.595
4 kamers
Appartement - Teakhout/Zaandam (€1200.00/56.00m2)
Zaandam
€1.200
2 kamers
Appartement - De Houthaalder/Zaandam (€1840.00/84.00m2)
Zaandam
€1.840
3 kamers
Meer woningen bekijken?
Ontdek ons volledige aanbod van huurwoningen in Nederland. Van studio's tot gezinswoningen.