+12
Stadlanderweg 3 - Zaandam
📍 Zaandam
🚪 2 kamers
📐 57.11 m²
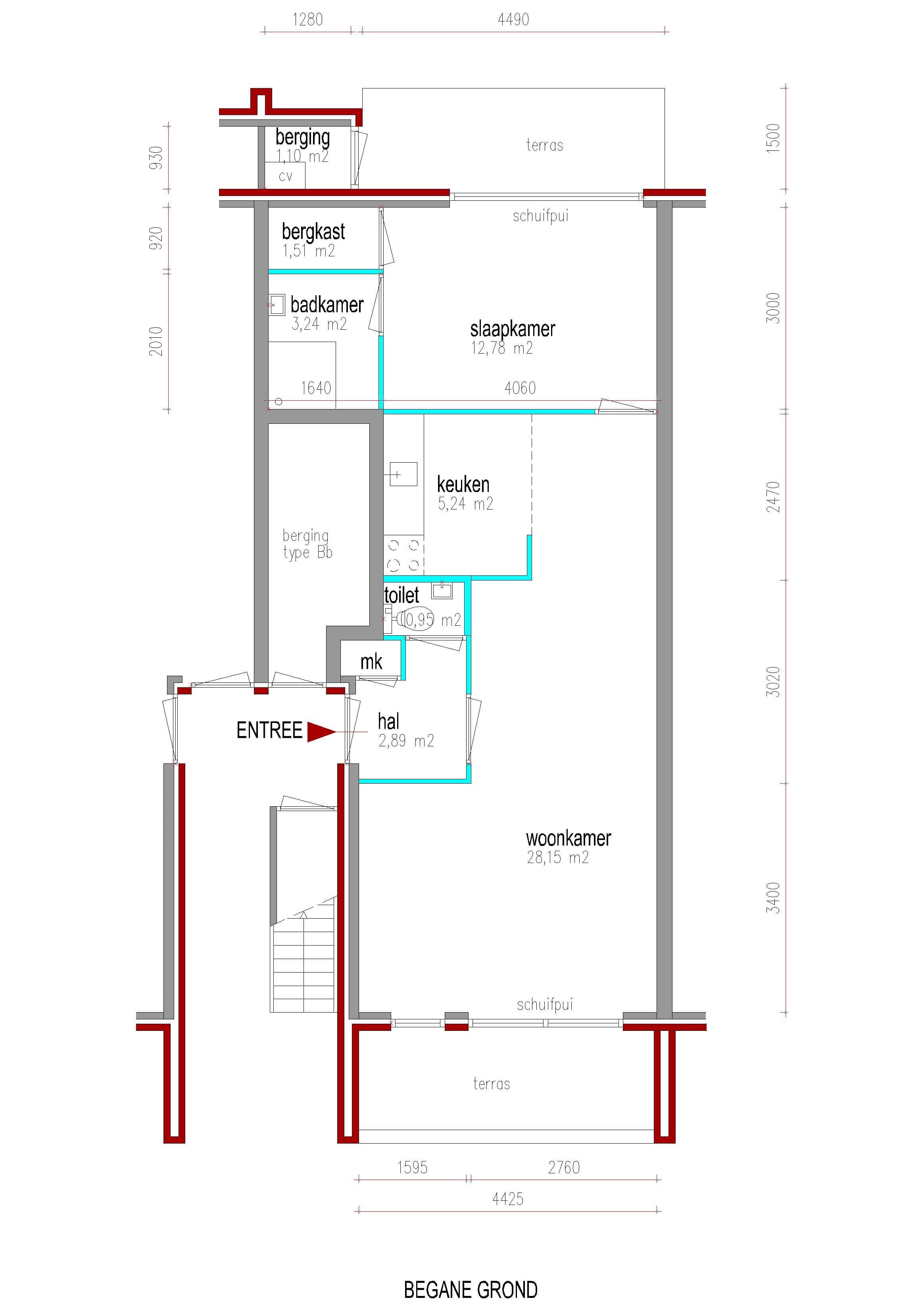
Benedenwoning met tuin aan het water WoningEigen entree.Hal.Toilet.Ruime woonkamer met aan de voorzijde een schuifpui naar het terras op het zuiden.De keuken bevindt zich centraal in het appartement en kan hierdoor wat donker zijn.Aan de achterzijde ligt de slaapkamer met toegang tot de badkamer en een vaste kast.Badkamer voorzien van douchehoek, wastafel en de aansluiting voor de wasmachine.De achtertuin ligt aan een sloot en is gelegen op het noorden.Om de hoek is een eigen berging.WoonomgevingGelegen op het land van Middelhoven.Dit is een rustige, autoluwe en groene wijk op loopafstand (10 min) van het centrum van Zaandam.Parkeren kan gratis.Een bushalte met een rechtstreekse verbinding ligt op 5 minuten lopen.De parkeerplaatsen in de straat voor de deur zijn openbaar terrein en niet per se toegeëigend aan de woning. Aanvullende informatieEr is mechanische ventilatie aanwezig.Wanden worden behangklaar opgeleverd. Let op! Elektrisch koken, 2-fase.Let op! De woning heeft 1 slaapkamer, alleen reageren zonder kinderen.De bezichtiging vind plaats op donderdag 23 april om 12:45 uur.
Kenmerken
Type:
Woonruimte
Oppervlakte:
57.11 m²
Aantal kamers:
2
Energielabel:
C
Vertrekken
Badkamer
3.24 m²
Keuken
5.24 m²
Slaapkamer
12.78 m²
Woonkamer
28.15 m²
Vergelijkbare woningen
Appartement - Oosterwerf/Zaandam (€1100.00/80.00m2)
Zaandam
€1.100
3 kamers
Appartement - Mahoniehout/Zaandam (€2150.00/72.00m2)
Zaandam
€2.150
3 kamers
Appartement - Timmerrak/Zaandam (€1840.00/84.00m2)
Zaandam
€1.840
3 kamers
Huurwoning - Symfonie/Zaandam (€2595.00/126.00m2)
Zaandam
€2.595
4 kamers
Appartement - Teakhout/Zaandam (€1200.00/56.00m2)
Zaandam
€1.200
2 kamers
Appartement - De Houthaalder/Zaandam (€1840.00/84.00m2)
Zaandam
€1.840
3 kamers
Meer woningen bekijken?
Ontdek ons volledige aanbod van huurwoningen in Nederland. Van studio's tot gezinswoningen.