Sumatralaan 59B - Groningen
📍 Groningen
🚪 4 kamers
AlgemeenLet op: plattegrond wijkt iets af. Voor woningen in portieken dient u rekening te houden met leefgeluiden van medebewoners. De te huur per datum is onder voorbehoud. Indien deze woning meer dan 10 keer wordt geweigerd op basis van de toewijzingsprocedure inschrijfduur, zal de woning opnieuw gepubliceerd worden met toewijzingsprocedure loting. Huishoudsamenstelling Geschikt voor max. 3 personen, waarvan max. 2 volwassenen. Parkeren Voor informatie over parkeren kunt u kijken op de website van de Gemeente Groningen.
Kenmerken
Type:
Woonruimte
Aantal kamers:
4
Energielabel:
F
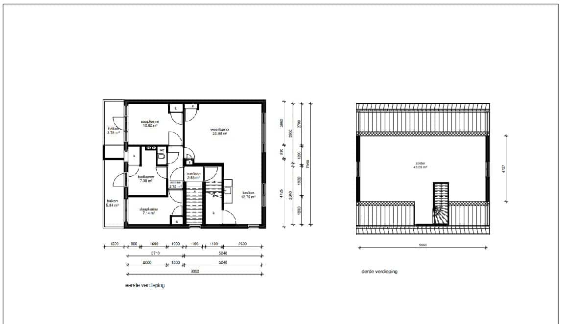
Vertrekken
Berging
2.00 m²
Slaapkamer
7.46 m²
Badkamer
7.55 m²
Woonkamer/keuken
10.14 m²
Slaapkamer
10.26 m²
Woonkamer/keuken
17.45 m²
Zolder
28.60 m²
Vergelijkbare woningen
Appartement - Naberstraat/Groningen (€2450.00/110.00m2)
Groningen
€2.450
3 kamers
Huurwoning - Pioenstraat/Groningen (€2155.00/149.00m2)
Groningen
€2.155
6 kamers
Huurwoning - Hyacinthstraat/Groningen (€2155.00/127.00m2)
Groningen
€2.155
5 kamers
Studio - Coendersweg/Groningen (€840.00/24.00m2)
Groningen
€840
1 kamers
Geen foto
Kamer - Hoekstraat/Groningen (€850.00/19.98m2)
Groningen
€850
1 kamers
Huurwoning - Hondsruglaan/Groningen (€2900.00/178.00m2)
Groningen
€2.900
5 kamers
Meer woningen bekijken?
Ontdek ons volledige aanbod van huurwoningen in Nederland. Van studio's tot gezinswoningen.