Surinamestraat 91 - Groningen
📍 Groningen
🚪 2 kamers
Algemeen Voor woningen in portieken dient u rekening te houden met leefgeluiden van medebewoners. De te huur per datum is onder voorbehoud. Indien deze woning meer dan 10 keer wordt geweigerd op basis van de toewijzingsprocedure inschrijfduur, zal de woning opnieuw gepubliceerd worden met toewijzingsprocedure loting. Huishoudsamenstelling Geschikt voor max. 2 personen. Parkeren Voor informatie over parkeren kunt u kijken op de website van de Gemeente Groningen.
Kenmerken
Type:
Woonruimte
Aantal kamers:
2
Energielabel:
B
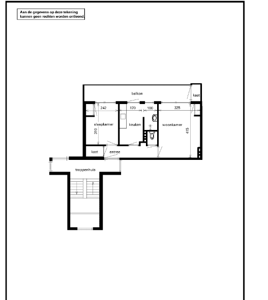
Vertrekken
Badkamer
2.00 m²
Keuken
5.18 m²
Slaapkamer
7.50 m²
Berging
8.00 m²
Woonkamer
13.15 m²
Vergelijkbare woningen
Appartement - Naberstraat/Groningen (€2450.00/110.00m2)
Groningen
€2.450
3 kamers
Huurwoning - Pioenstraat/Groningen (€2155.00/149.00m2)
Groningen
€2.155
6 kamers
Huurwoning - Hyacinthstraat/Groningen (€2155.00/127.00m2)
Groningen
€2.155
5 kamers
Studio - Coendersweg/Groningen (€840.00/24.00m2)
Groningen
€840
1 kamers
Geen foto
Kamer - Hoekstraat/Groningen (€850.00/19.98m2)
Groningen
€850
1 kamers
Huurwoning - Hondsruglaan/Groningen (€2900.00/178.00m2)
Groningen
€2.900
5 kamers
Meer woningen bekijken?
Ontdek ons volledige aanbod van huurwoningen in Nederland. Van studio's tot gezinswoningen.