+2
Tepestraat 46 - IJsselstein
📍 Ijsselstein
🚪 3 kamers
📐 84.43 m²
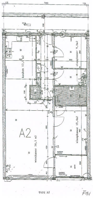
Deze seniorenwoning bevindt zich in de plaats IJsselstein. In het historische stadscentrum van IJsselstein vind u karakteristieke architectuur en een levendige sfeer. U heeft toegang tot een breed scala aan winkels, restaurants en cafés, waardoor u volop keuze hebt voor uw dagelijkse behoeften en recreatie. Met uitstekende verbindingen naar omliggende steden, zoals Utrecht en Amsterdam, is IJsselstein een gunstige locatie. IndelingU komt de woning binnen in de hal. Vanuit de hal heeft u toegang tot de eerste slaapkamer, het washok, de badkamer, het toilet en de woonkamer met open keuken. De woonkamer geeft toegang tot de tweede slaapkamer en het balkon. Het balkon ligt op het Oosten.Bijzonderheden op een rij:Koken op gas of elektrisch (2-fase perilex);Bouwjaar keuken 2022;Aparte berging;Wasmachine aansluiting in washok;Videofoon aanwezig;Voorrang maatschappelijke binding IJsselstein;Voorzieningen nabije omgeving: winkelcentrum en park;Niet standaard voorziening aanwezig: rolgordijnen;Geen overnames; Heeft u interesse en wilt u de woning bezichtigen?De eerste 7 geselecteerde kandidaten ontvangen een mailbericht van WoningNet om de woning te gaan bezichtigen.U kunt de woning bekijken met maximaal 2 personen.Houdt u er dan rekening mee dat er een bezichtiging plaats zal vinden op 17 oktober 2025.Let op: de woning is onder voorbehoud per genoemde datum beschikbaar.U kunt nog tot 1 dag voor bezichtiging bericht krijgen dat u de volgende dag hierbij aanwezig dient te zijn.Als u niet zelf naar de bezichtiging kunt komen, kunt u iemand anders machtigen. Geef via verhuur@cazaswonen.nl door wie namens u de woning komt bezichtigen.Bij de bezichtiging is een verhuurmakelaar aanwezig.
Kenmerken
Type:
Woonruimte
Oppervlakte:
84.43 m²
Aantal kamers:
3
Energielabel:
B
Vertrekken
Badkamer
5.40 m²
Slaapkamer
9.00 m²
Berging
10.23 m²
Slaapkamer
13.50 m²
Keuken
15.50 m²
Woonkamer
30.80 m²
Vergelijkbare woningen
Huurwoning - Belgradostraat/IJsselstein (€2995.00/184.00m2)
Ijsselstein
€2.995
5 kamers
Huurwoning - Meerenburgerhorn/IJsselstein (€2500.00/105.00m2)
Ijsselstein
€2.500
4 kamers
Huurwoning - Poortdijk/IJsselstein (€2150.00/120.00m2)
Ijsselstein
€2.150
4 kamers
Huurwoning - Kortegolf/IJsselstein (€2600.00/152.00m2)
Ijsselstein
€2.600
5 kamers
Woning aan de Hooikade te Den Haag
Den Haag
€3.590
3 kamers
Woning aan de Amsterdamsestraat te Muiden
Muiden
€1.750
2 kamers
Meer woningen bekijken?
Ontdek ons volledige aanbod van huurwoningen in Nederland. Van studio's tot gezinswoningen.