+2
van Nes van Meerkerklaan 27 - Kortenhoef
š Kortenhoef
šŖ 4 kamers
š 46.85 m²
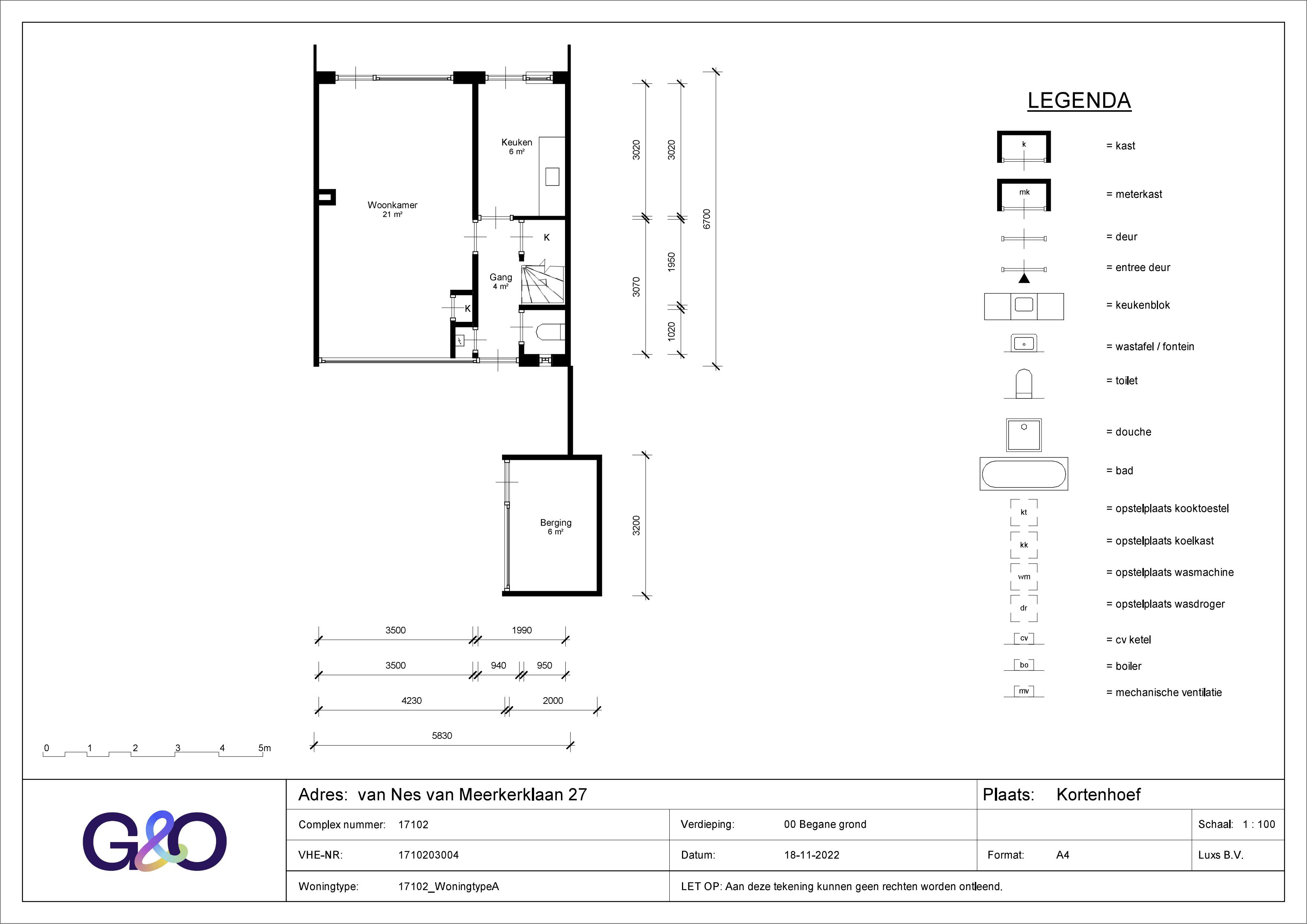
De woningDoorzonwoonkamer.De voorzijde van de woning ligt aan een steeg met schuren. De achterzijde ligt aan een openbaar grasveldGesloten keukenPerilex aansluiting voor elektrisch/inductie koken. Geen gasaansluiting in de keukenToilet op de begane grondBuitenberging aan de voorkant van de woningAchtertuin op het zuidwesten3 Slaapkamers op de 1e verdiepingKleine badkamer met douche op de 1e etageBergzolder met vlizotrap (niet geschikt om te slapen)De buurtOpenbare parkeerplaatsen in de buurt3 Minuten fietsen naar het winkelcentrum van KortenhoefBasisscholen op loopafstandBushalte voor lijn 106 naar Hilversum en Weesp op loopafstand.Woonwijk met eengezinswoningenBijzonderhedenĀ De woning wordt op dit moment gerenoveerd. Veel schilder- en behangwerk voor de nieuwe bewonerDe genoemde opleverdatum is onder voorbehoud.De plattegrond geeft een indruk van de woning maar kan afwijken van de werkelijkheidĀ Let op!Je hebt alleen de binding met de gemeente Wijdemeren (Ankeveen, Breukeleveen, 's-Graveland, Kortenhoef, Loosdrecht, Nederhorst den Berg) aangezet in je inschrijving als je kunt aantonen dat je voldoet aan een van de onderstaande voorwaarden:Je woont nu minimaal 1 jaar achter elkaar in de gemeente of hebt in de afgelopen 10 minimaal 6 jaar achter elkaar in de gemeente gewoond (geen briefadres).Je werkt minimaal 19 uur per week in de gemeente en hebt een vast contract. Voor uitzendkrachten geldt dat het uitzendbureau is gevestigd in de gemeente. Mantelzorg geeft geen binding.Je volgt een dagopleiding van minimaal 19 uur per week in de gemeente.Je bent zelfstandig ondernemer. Je bedrijf staat bij de Kamer van Koophandel ingeschreven met een vestigingsadres in de gemeente en heeft een fysiek adres (bedrijfspand) in de gemeente.
Kenmerken
Type:
Woonruimte
Oppervlakte:
46.85 m²
Aantal kamers:
4
Energielabel:
B
Vertrekken
Slaapkamer
4.50 m²
Slaapkamer
9.45 m²
Slaapkamer
11.55 m²
Woonkamer
21.35 m²
Vergelijkbare woningen
Huurwoning - Elbert Mooijlaan/Kortenhoef (ā¬2450.00/109.00m2)
Kortenhoef
ā¬2.450
5 kamers
Woning aan de Hooikade te Den Haag
Den Haag
ā¬3.590
3 kamers
Woning aan de Amsterdamsestraat te Muiden
Muiden
ā¬1.750
2 kamers
Woning aan de Pannesheiderstraat te Kerkrade
Kerkrade
ā¬380
1 kamers
Woning aan de Maaskade te Rotterdam
Rotterdam
ā¬2.350
3 kamers
Woning aan de Markt te Roosendaal
Roosendaal
ā¬650
1 kamers
Meer woningen bekijken?
Ontdek ons volledige aanbod van huurwoningen in Nederland. Van studio's tot gezinswoningen.