Vechtstraat 408 - Groningen
📍 Groningen
🚪 3 kamers
We bieden een prachtige seniorenwoning aan met twee slaapkamers en een balkon. De woning bevindt zich op de tweede verdieping van het complex De Goudriaan in de Rivierenbuurt, met veel voorzieningen binnen handbereik. In de directe omgeving vindt u een uitgebreid winkelcentrum en de uitvalswegen A7 en A28 zijn dichtbij te vinden. De bushalte en het NS-station liggen op loopafstand en het centrum is binnen vijf minuten per fiets bereikbaar. Deze woning is geschikt voor 1 of 2 volwassenen van 60 jaar en ouder. Inwonende kinderen zijn in deze woning niet toegestaan. De nieuwe huuringangsdatum is 26 februari 2026.Minimaal inkomen voor deze woning:• Voor 1 persoon: € 29.400,- • Voor 2 of meer personen (inclusief inwonende kinderen): € 39.925,-Maximaal inkomen voor deze woning (dit geldt niet voor wijkvernieuwingsurgenties en rolstoelindicaties):• Voor 1 persoon € 51.537• Voor 2 of meer personen € 56.910
Kenmerken
Type:
Woonruimte
Aantal kamers:
3
Energielabel:
B
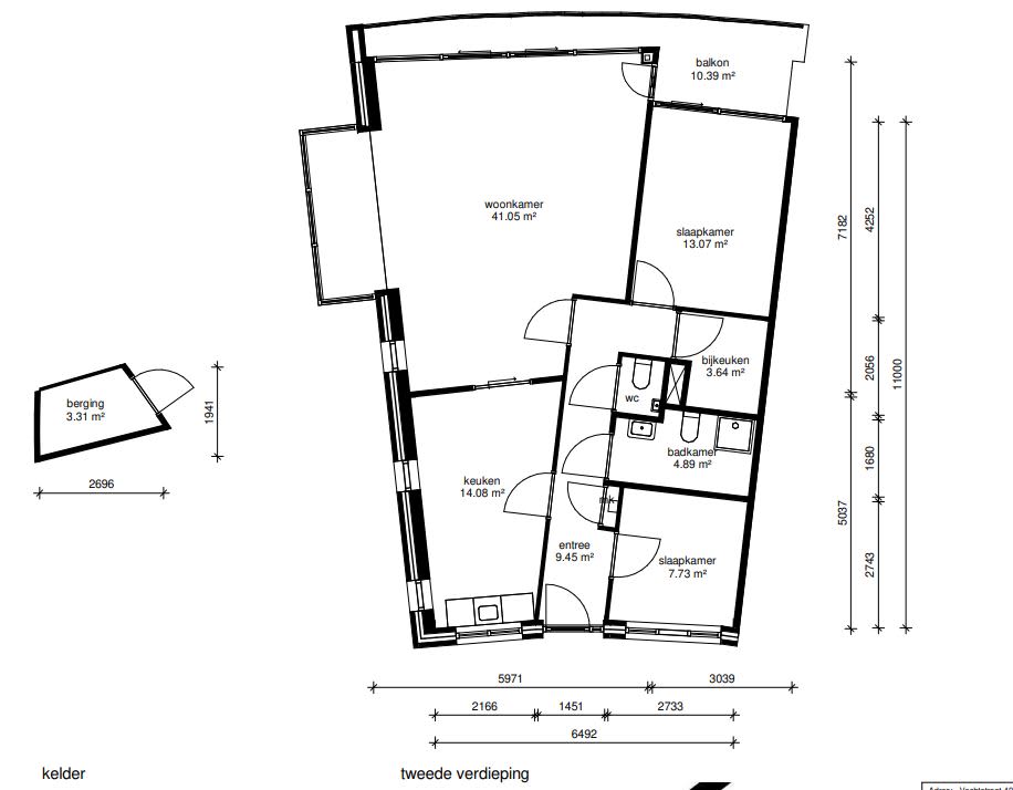
Vertrekken
Toilet
1.18 m²
Berging
3.31 m²
Bijkeuken
3.64 m²
Slaapkamer
7.73 m²
Slaapkamer
13.07 m²
Keuken
14.08 m²
Woonkamer
41.05 m²
Vergelijkbare woningen
Appartement - Naberstraat/Groningen (€2450.00/110.00m2)
Groningen
€2.450
3 kamers
Huurwoning - Pioenstraat/Groningen (€2155.00/149.00m2)
Groningen
€2.155
6 kamers
Huurwoning - Hyacinthstraat/Groningen (€2155.00/127.00m2)
Groningen
€2.155
5 kamers
Studio - Coendersweg/Groningen (€840.00/24.00m2)
Groningen
€840
1 kamers
Geen foto
Kamer - Hoekstraat/Groningen (€850.00/19.98m2)
Groningen
€850
1 kamers
Huurwoning - Hondsruglaan/Groningen (€2900.00/178.00m2)
Groningen
€2.900
5 kamers
Meer woningen bekijken?
Ontdek ons volledige aanbod van huurwoningen in Nederland. Van studio's tot gezinswoningen.