+1
Vestdijklaan 200 - Groningen
📍 Groningen
🚪 2 kamers
In de groene wijk De Wijert-Zuid in Groningen staat de Zuiderflat: een onlangs verbouwd, duurzaam en eigentijds seniorencomplex met 130 comfortabele huurappartementen. De Zuiderflat is de eerste locatie waar het concept van Meer dan Wonen tot leven komt. Een deel van de appartementen is zorggeschikt, zodat u hier lang zelfstandig kunt blijven wonen. Met hulp als dat nodig is, en zonder als het niet hoeft.Op dit moment is er een seniorenappartement vrijgekomen. In dit comfortable seniorenappartement geniet u van rust en een fijne woonomgeving. De woning beschikt over één slaapkamer en een royaal balkon op het oosten. - ideaal om van de ochtend zon te genieten. Om in aanmerking te komen, is het belangrijk dat u bekend bent met het woonconcept: "Meer dan wonen" Hiervoor vult u een motivatieformulier in. meer informatie meerdanwonengroningen.nlComfortabel huren, nu en laterDe Zuiderflat is onlangs volledig vernieuwd en klaar voor de toekomst. De begane grond is uitgebreid en het gebouw heeft een frisse, moderne uitstraling gekregen. Hier vindt u verschillende voorzieningen, zoals een fysiotherapeut, pedicure, en een sfeervol wijkrestaurant. Ook het Odensehuis en de Buurthuiskamer van ZINN zijn op de begane grond gevestigd.Alle appartementen zijn goed geĂŻsoleerd, energiezuinig en volledig gasvrij. Ze beschikken over ruime balkons die zorgen voor extra wooncomfort. Alle appartementen zijn comfortabel en toegankelijk ingericht voor iedereen met of zonder zorgvraag. De appartementen zijn rolstoelvriendelijk en praktisch ingericht, met oog voor veiligheid, comfort en zelfstandigheid. Zo kunt u hier prettig blijven wonen, ook als uw situatie verandert.Een plek vol leven en verbindingIn de Zuiderflat draait het om meer dan alleen prettig wonen. Hier staat ontmoeten en omzien naar elkaar centraal. U woont er zelfstandig, maar nooit alleen. Samen vormt u een fijne, betrokken gemeenschap. Er is altijd ruimte voor gezelligheid en activiteiten met medebewoners en buurtgenoten. Misschien organiseert uw buurman een gezellige koffieochtend of bedenkt u samen met uw buurvrouw een creatieve activiteit. Maar Meer dan Wonen gaat verder dan samen leuke activiteiten organiseren. Het betekent ook naar elkaar omkijken. Even een boodschapje doen voor iemand die slecht ter been is, een extra pannetje soep maken voor een zieke buur of afspreken dat u een krantje voor de deur legt en een seintje geeft als de krant niet wordt opgepakt. Zo zorgen we samen dat iedereen zich gezien en gesteund voelt – nu Ă©n in de toekomst.Zorg dichtbij, als u dat wiltZorgorganisatie ZINN is actief in de Zuiderflat met een vast en betrokken zorgteam. Zij kennen de bewoners en de wijk goed, en bieden zorg die past bij uw persoonlijke situatie. Of u nu nog zelfstandig bent of wat extra hulp kunt gebruiken, de zorg is er wanneer u die nodig heeft.Zo groeit de Zuiderflat uit tot een vertrouwde plek waar wonen, welzijn en zorg op een natuurlijke manier samenkomen. Â
Kenmerken
Type:
Woonruimte
Aantal kamers:
2
Energielabel:
A
Vertrekken
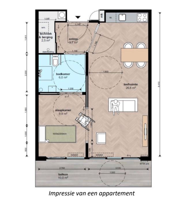
Slaapkamer
10.09 m²
Woonkamer
20.56 m²
Vergelijkbare woningen
Appartement - Naberstraat/Groningen (€2450.00/110.00m2)
Groningen
€2.450
3 kamers
Huurwoning - Pioenstraat/Groningen (€2155.00/149.00m2)
Groningen
€2.155
6 kamers
Huurwoning - Hyacinthstraat/Groningen (€2155.00/127.00m2)
Groningen
€2.155
5 kamers
Studio - Coendersweg/Groningen (€840.00/24.00m2)
Groningen
€840
1 kamers
Geen foto
Kamer - Hoekstraat/Groningen (€850.00/19.98m2)
Groningen
€850
1 kamers
Huurwoning - Hondsruglaan/Groningen (€2900.00/178.00m2)
Groningen
€2.900
5 kamers
Meer woningen bekijken?
Ontdek ons volledige aanbod van huurwoningen in Nederland. Van studio's tot gezinswoningen.