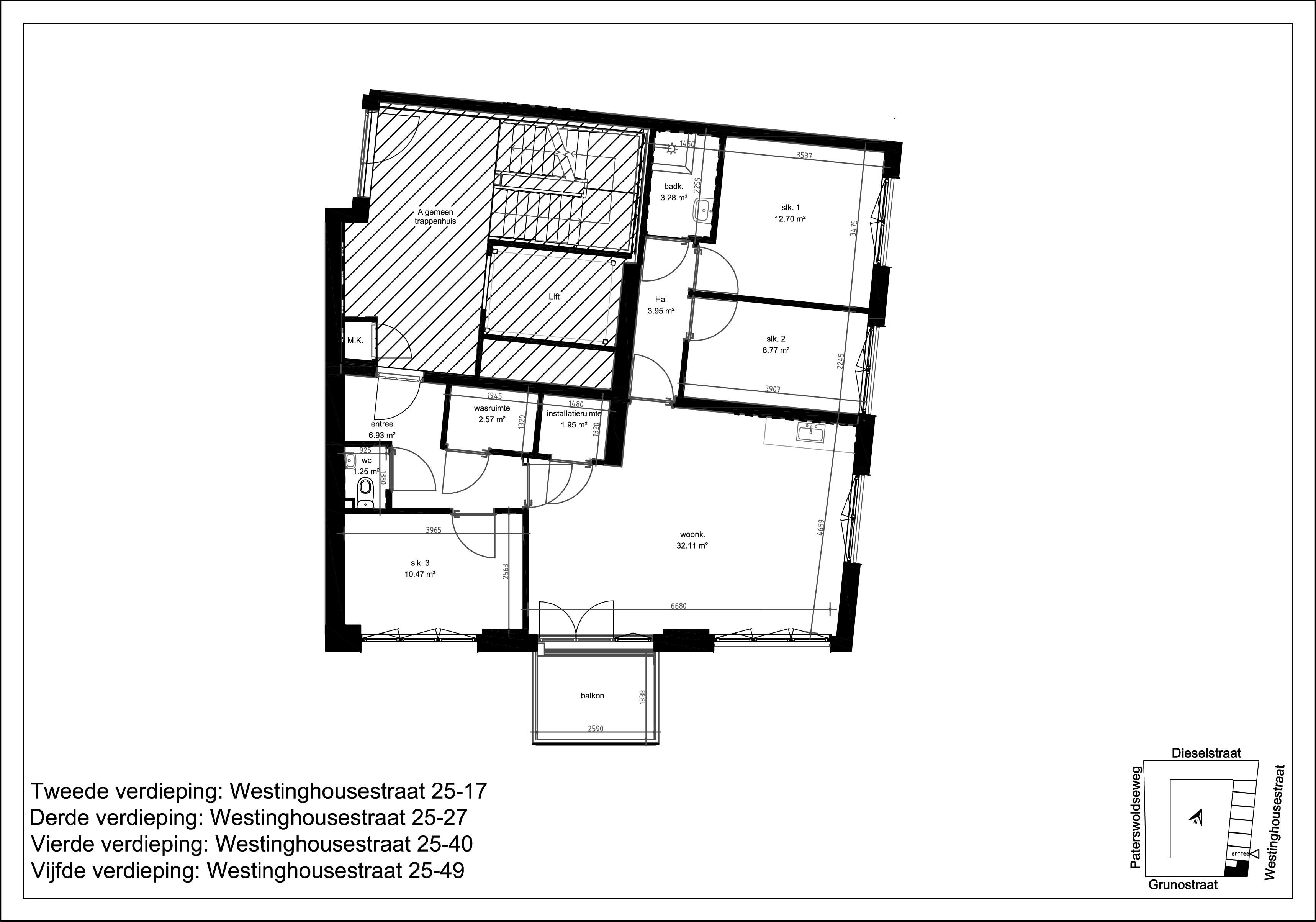
Westinghousestraat 25-40 - Groningen
📍 Groningen
🚪 4 kamers
📐 79.86 m²
LET OP: Voordat je een woning gaat huren, adviseren we je om een offerte op te vragen voor de energiekosten bij een energieleverancier. Houd hierbij rekening met het energielabel van de woning, dit kan invloed hebben op je verbruik. Met deze informatie kun je beter inschatten wat je totale vaste lasten worden voor de aangeboden woning.Nijestee is al langere tijd bezig met wijkvernieuwing in de Grunobuurt. De oude woningen zijn gesloopt en nieuwe woningen worden bloksgewijs teruggebouwd. Uiteindelijk zal de Grunobuurt uit ongeveer 650 woningen bestaan, verdeeld over acht blokken. De Grunobuurt ligt op een unieke locatie, op loopafstand van het centrum en het station en ook dichtbij het Stadspark. Het woongebouw Lampisterie is aardbevingsbestendig gebouwd. In het gebouw zitten 15 appartementen voor jongeren met een beperking. Deze woningen liggen bij elkaar op de 2e en 3e verdieping aan de kant van de Paterswoldseweg. De woning wordt verwarmd door vloerverwarming. Er is geen gasaansluiting in de woning, je kookt elektrisch. Een elektrische kookplaat met perilex aansluiting schaf je zelf aan.Je komt de woning binnen via het trappenhuis bij de hoofdentree aan de Westinghousestraat. Dit appartement bevindt zich op de hoek Grunostraat/Westinghousestraat en heeft een woonkamer met open keuken, badkamer, apart toilet en een balkon op het zuiden. De berging bevindt zich in het bergingenblok op de begane grond. InkomenseisMinimaal inkomen voor deze woning:• Voor 1 persoon: € 28.376,-• Voor 1 persoon met AOW: € 27.775,-• Voor 2 of meer personen (inclusief inwonende kinderen): € 38.501,-• Voor 2 of meer personen met AOW: € 37.350,-Maximaal inkomen voor deze woning (dit geldt niet voor wijkvernieuwingsurgenties en rolstoelindicaties):• Voor 1 persoon € 49.669,-• Voor 2 of meer personen € 54.847,-Meer algemene informatie over inkomensregels vind je hier.Verwarming, elektra en waterDe woning wordt verwarmd met behulp van aardwarmte, via een duurzaam WKO-systeem (Warmte Koude Opslag). Je kunt daardoor in de zomer je woning ook koelen. Warmtestad is hiervoor de leverancier, waarmee de huurder verplicht een contract afsluit. Een zeer groot deel van het voorschot bestaat uit vastrechtkosten. Dit betekent dat de huurder weinig invloed heeft op de rekening. Het actuele voorschotbedrag is de vinden op de website van WarmteStad. Dit is exclusief elektriciteit en water. Elektriciteit en water vraag je zelf aan.ZonnepanelenOp het hele dak zijn zonnepanelen geplaatst. Drie daarvan zijn aan de eigen meter gekoppeld, de opbrengst van de resterende panelen wordt gebruikt voor het elektra in de algemene ruimtes, zoals lift en de verlichting in de entrees. De zonnepanelen zijn via een omvormer aangesloten op de meterkast in de woning. Deze zonnepanelen wekken elektriciteit op en deze wordt aan de woning geleverd. De zonnepanelen zorgen dus voor een besparing op je energierekening. Geef aan je energieleverancier door dat de woning zonnepanelen heeft. Je energieleverancier kan het voorschotbedrag eventueel aanpassen.OvernameEventuele overname van diverse spullen kun je overleggen met de bewoner.ParkerenOp het binnenterrein is parkeerruimte voor 46 auto’s. Deze plaatsen worden los verhuurd. De toegang is via de Grunostraat, met een doorrijhoogte van 2.30 meter. Ook kun je een parkeerplaats huren/kopen in de ondergrondse parkeerkelder in het woongebouw Typhoon via Nijestee. Kijk op www.nijestee.nl of er een parkeerplaats beschikbaar is. Informatie over parkeren in de wijk is hier te vinden. De gemeenschappelijke fietsenbergingen op de begane grond zijn alleen bestemd voor bewoners die geen berging op de begane grond hebben. LotingAls een woning 10 keer wordt geweigerd bieden we de woning mogelijk via loting aan. Deze optie vind je in WoningNet. Bij loting is de opgebouwde wachttijd niet van belang.
Kenmerken
Type:
Woonruimte
Oppervlakte:
79.86 m²
Aantal kamers:
4
Energielabel:
A
Vertrekken
Berging
7.00 m²
Slaapkamer
9.00 m²
Slaapkamer
11.00 m²
Slaapkamer
13.00 m²
Woonkamer
35.00 m²
Vergelijkbare woningen
Appartement - Naberstraat/Groningen (€2450.00/110.00m2)
Groningen
€2.450
3 kamers
Huurwoning - Pioenstraat/Groningen (€2155.00/149.00m2)
Groningen
€2.155
6 kamers
Huurwoning - Hyacinthstraat/Groningen (€2155.00/127.00m2)
Groningen
€2.155
5 kamers
Studio - Coendersweg/Groningen (€840.00/24.00m2)
Groningen
€840
1 kamers
Geen foto
Kamer - Hoekstraat/Groningen (€850.00/19.98m2)
Groningen
€850
1 kamers
Huurwoning - Hondsruglaan/Groningen (€2900.00/178.00m2)
Groningen
€2.900
5 kamers
Meer woningen bekijken?
Ontdek ons volledige aanbod van huurwoningen in Nederland. Van studio's tot gezinswoningen.