Wiardi Beckmanstraat 181 - Soest
📍 Soest
🚪 2 kamers
Wiardi Beckmanstraat 181 ligt in woongebouw “Honsbergen” centraal gelegen in de wijk Klaarwater. Het appartement bevindt zich op de 3e etage en is gelegen aan de achterzijde van het gebouw. Onder het uit drie vleugels bestaande gebouw is een supermarkt gevestigd, een kapper, een peuterspeelzaal en een restaurant.Het woongebouw heeft 225 appartementen, waaronder 182 tweekamerappartementen, 30 driekamerappartementen, 5 kleine aangepaste appartementen voor mindervaliden en 8 grote aangepaste appartementen voor minder validen.Woningstichting Omthuis verhuurt woningen voor senioren vanaf 65 jaar. Met zaken die wonen net even wat makkelijker maken: een huismeester, persoonsalarmering, bibliotheek, logeerkamers voor gasten, ontmoetingscentrum en een actieve bewonerscommissie. Huurtoeslag is mogelijk afhankelijk van het inkomen. Geen meeverhuizende kinderen mogelijk.
Kenmerken
Type:
Woonruimte
Aantal kamers:
2
Energielabel:
A
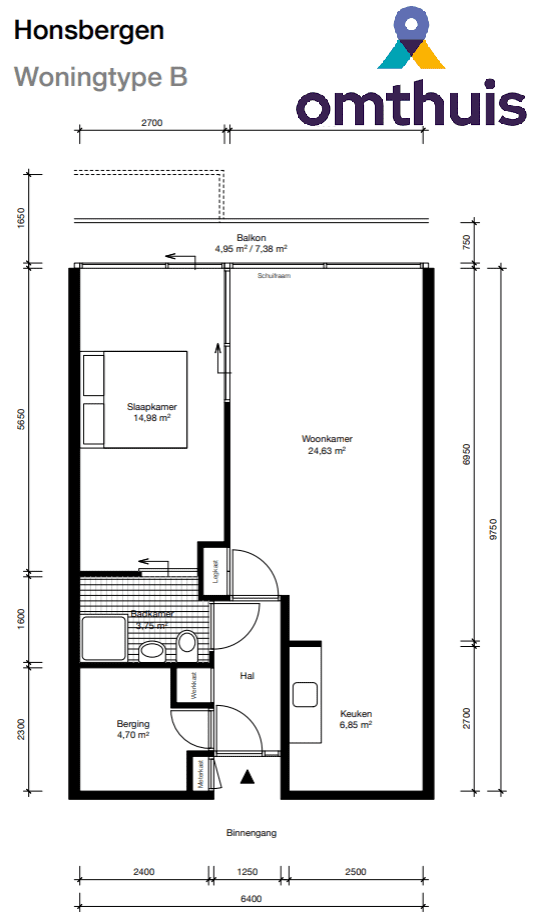
Vertrekken
Hal
2.50 m²
Badkamer/toilet
3.75 m²
Berging
4.70 m²
Slaapkamer
14.98 m²
Woonkamer/keuken
31.48 m²
Vergelijkbare woningen
Huurwoning - Chalonhof/Soest (€3500.00/219.00m2)
Soest
€3.500
6 kamers
Appartement - Varenstraat/Soest (€1500.00/60.00m2)
Soest
€1.500
1 kamers
Woning aan de Hooikade te Den Haag
Den Haag
€3.590
3 kamers
Woning aan de Amsterdamsestraat te Muiden
Muiden
€1.750
2 kamers
Woning aan de Pannesheiderstraat te Kerkrade
Kerkrade
€380
1 kamers
Woning aan de Maaskade te Rotterdam
Rotterdam
€2.350
3 kamers
Meer woningen bekijken?
Ontdek ons volledige aanbod van huurwoningen in Nederland. Van studio's tot gezinswoningen.