Wijk aan Duinerweg 29 - Beverwijk
📍 Beverwijk
🚪 3 kamers
📐 57.00 m²
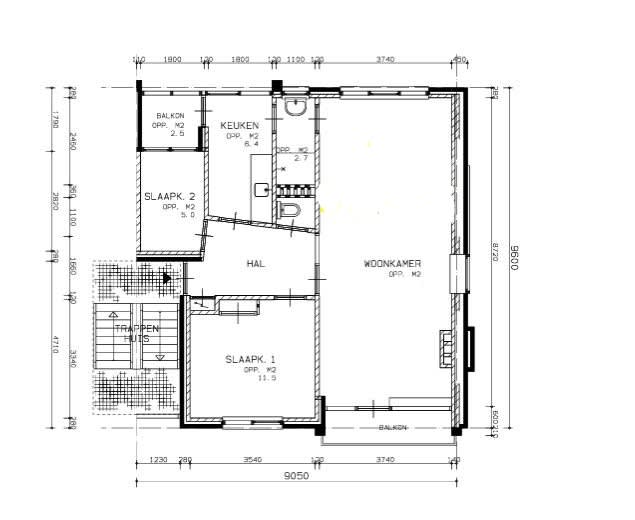
Lichte portiekwoning op de 2e verdieping in Beverwijk met ruime woonkamer met toegang tot balkon, gesloten keuken. De woning heeft twee slaapkamers waarvan 1 klein is (5m2) Woning - Elektrisch koken- Gesloten keuken- Balkon op het westen - Eigen fietsberging - Apart toilet - Gratis parkeren in de straat- Energielabel C- Keurige laminaatvloer is een gift van de vorige huurder. Geen onderhoud door Pré Wonen.In de buurtDe wijk Kuenenplein/Plantage is een grote wijk die ook als twee wijken gezien kan worden. Zowel rond het Kuenenplein als aan de Plantage is een winkelcentrum. De voorzieningen van het openbaar vervoer zijn goed en ook de uitvalswegen naar de snelwegen zijn dichtbij. Diverse scholen, speelvoorzieningen voor kinderen en een buurtcentrum zijn in de wijk aanwezigUitnodiging tot bezichtiging (aanvullen met juiste bezichtigingsdatum|)De eerste tien kandidaten worden via woonservice uitgenodigd voor bezichtiging.- De bezichtiging is ingepland op 12 November om 13:15 uur (onder voorbehoud)Een woning huren van Pré WonenIedere woning van Pré Wonen wordt volgens de basiskwaliteit opgeleverd. Zelf knapt u de woning op naar uw zin en smaak. Denk hierbij aan het leggen van vloeren (minimaal 10 decibel reducerend), schilderen/behangen van muren, deuren, (raam)kozijnen en plafonds. Een bestaande woning heeft altijd gebruikssporen van voorgaande huurder(s). Kijkt u onder Voorwaarden bij ‘Wat mag u van een woning van Pré Wonen verwachten’. Daar leest u wat de basiskwaliteit is en wat u van een woning van Pré Wonen mag verwachten.Tot slotDe oplevering van de woning kan afwijken van de advertentietekst, de plattegrond, de foto’s en de bezichtiging in verband met eventuele werkzaamheden.Aan deze advertentie kunt u geen rechten ontlenen.
Kenmerken
Type:
Woonruimte
Oppervlakte:
57.00 m²
Aantal kamers:
3
Energielabel:
B
Vertrekken
Slaapkamer
5.00 m²
Slaapkamer
12.00 m²
Woonkamer
31.00 m²
Vergelijkbare woningen
Appartement - Wijk aan Duinerweg/Beverwijk (€1650.00/80.00m2)
Beverwijk
€1.650
3 kamers
Woning aan de Hooikade te Den Haag
Den Haag
€3.590
3 kamers
Woning aan de Amsterdamsestraat te Muiden
Muiden
€1.750
2 kamers
Woning aan de Pannesheiderstraat te Kerkrade
Kerkrade
€380
1 kamers
Woning aan de Maaskade te Rotterdam
Rotterdam
€2.350
3 kamers
Woning aan de Markt te Roosendaal
Roosendaal
€650
1 kamers
Meer woningen bekijken?
Ontdek ons volledige aanbod van huurwoningen in Nederland. Van studio's tot gezinswoningen.