Zagerij 49 - Groningen
📍 Groningen
🚪 3 kamers
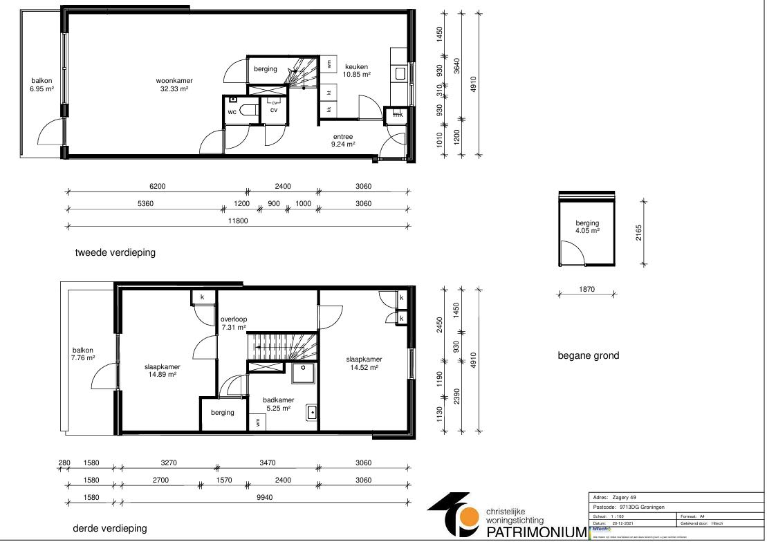
Mooi appartement met 2 grote slaapkamers, een ruime woonkamer met open keuken en op elke verdieping een balkon. De woning bevindt zit op de 3e woonlaag. U woont dichtbij uitvalswegen en binnen 5 minuten fietst u naar het centrum van de stad. De nieuwe huuringangsdatum is per 7 april 2026.Voordat wij u de woning definitief toewijzen, plannen wij een intakegesprek. Tijdens dat gesprek vertellen wij u meer over de woning en over de (nabije) woonomgeving en bespreken we met u of die bij u als huurder passen. Op basis van de intake kan de voorlopige aanbieding worden ingetrokken. Uw inschrijfdatum bij Groningen huurt is dus niet bepalend voor definitieve toewijzing van deze woning.Minimaal inkomen voor deze woning:• Voor 1 persoon: € 29.400,-• Voor 1 persoon met AOW: € 28.775,-• Voor 2 of meer personen (inclusief inwonende kinderen): € 39.925,-• Voor 2 of meer personen met AOW: € 38.650,-Maximaal inkomen voor deze woning (dit geldt niet voor wijkvernieuwingsurgenties en rolstoelindicaties):• Voor 1 persoon € 51.537,-• Voor 2 of meer personen € 56.910,-
Kenmerken
Type:
Woonruimte
Aantal kamers:
3
Energielabel:
A
Vertrekken
Toilet
1.12 m²
Berging
4.05 m²
Badkamer
5.25 m²
Keuken
10.85 m²
Slaapkamer
14.52 m²
Slaapkamer
14.89 m²
Woonkamer
32.33 m²
Vergelijkbare woningen
Appartement - Naberstraat/Groningen (€2450.00/110.00m2)
Groningen
€2.450
3 kamers
Huurwoning - Pioenstraat/Groningen (€2155.00/149.00m2)
Groningen
€2.155
6 kamers
Huurwoning - Hyacinthstraat/Groningen (€2155.00/127.00m2)
Groningen
€2.155
5 kamers
Studio - Coendersweg/Groningen (€840.00/24.00m2)
Groningen
€840
1 kamers
Geen foto
Kamer - Hoekstraat/Groningen (€850.00/19.98m2)
Groningen
€850
1 kamers
Huurwoning - Hondsruglaan/Groningen (€2900.00/178.00m2)
Groningen
€2.900
5 kamers
Meer woningen bekijken?
Ontdek ons volledige aanbod van huurwoningen in Nederland. Van studio's tot gezinswoningen.