Albert Schweitzersingel 144 - Amersfoort
š Amersfoort
šŖ 3 kamers
š 98.10 m²
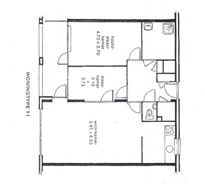
Albert Schweitzersingel 144Portiek appartement gelegen in de wijk Zielhorst Het appartement ligt op de derde etage. Het complex heeft een ruime binnentuin. Het appartement heeft 2 slaapkamers. De woonkamer geeft toegang tot het balkon. De keuken is een half open keuken die grenst aan de woonkamer. De badkamer en het toilet zijn onlangs gerenoveerd. De woning ligt dicht bij een supermarkt en station Schorthorst. Mooie centrale locatie.Er zijn een redelijk aantal zaken ter overname. Dit is in overleg met de vertrekkende huurder(ster)De woning heeft een aparte berging. Deze zit in de kelder. De kelder is bereikbaar via trap en lift.*Aan de verhuurprijs en plattegrond kunnen geen rechten worden ontleend.BezichtigingDe bezichtiging is op afspraak met de vertrekkende huurder.Ā Benodigde documenten voor verhuring (uiterlijk binnen 2 werkdagen naar aanbieding bij ons binnen zijn)Onderstaande documenten hebben wij nodig voor de verhuring.Ā Deze kunt u uploaden op u Woningnet account of mailen naarĀ Info@omniawonen.nlĀ onder vermelding van het adres**Let op alleen als u een definitieve aanbieding krijgt**De meest recente inkomensverklaring van de Belastingdienst (of meest recente definitieve aanslag inkomstenbelasting) van u en van uw eventuele partner (ook als deze geen eigen inkomen heeft)Ā U moet zelf u BSN nummer wegstrepen. Anders mogen wij deze niet behandelen.Ā 2.-Ā Ā BRP van de gezinssamenstelling + woonhistorie op te vragen bij de gemeente. Woonhistorie is ook op te vragen met uw DIGI ID viaĀ www.mijnoverheid.nl3..- Een verhuurdersverklaring. Deze kunt u opvragen bij uw huidige of uw laatste verhuurder. Heeft u een koopwoning, dan zouden wij graag drie afschriften van de hypotheek willen zien.Antwoord en gegevensformulier te bereiken via onderstaande link.Ā Acceptatie-en-gegevensformulier.pdf (omniawonen.nl)5. Bent u gescheiden, niet langer geregistreerd partners of woont u niet meer samen? Dan mag u uw kinderen alleen op uw inschrijving vermelden als zij hun hoofdverblijfplaats bij u hebben of als er sprake is van co-ouderschap. Ā In geval van co-ouderschap mogen beide ouders de kinderen op hun inschrijving vermelden. Op het moment dat u een woning accepteert, vraagt de verhuurder u om aan te tonen dat de kinderen terecht op uw inschrijving staan vermeld. Dit kan aan de hand van een gerechtelijke uitspraak, een echtscheidingsconvenant of een ouderschapsplanĀ
Kenmerken
Type:
Woonruimte
Oppervlakte:
98.10 m²
Aantal kamers:
3
Energielabel:
B
Vertrekken
Berging
4.50 m²
Badkamer
4.79 m²
Slaapkamer
7.83 m²
Slaapkamer
12.42 m²
Woonkamer
44.88 m²
Vergelijkbare woningen
Appartement - Stadsring/Amersfoort (ā¬2750.00/83.00m2)
Amersfoort
ā¬2.750
3 kamers
Huurwoning - Kuinrestraat/Amersfoort (ā¬2500.00/150.00m2)
Amersfoort
ā¬2.500
6 kamers
Appartement - Rietzangerstraat/Amersfoort (ā¬865.00/89.00m2)
Amersfoort
ā¬865
4 kamers
Appartement - Groningerstraat/Amersfoort (ā¬1905.00/118.00m2)
Amersfoort
ā¬1.905
3 kamers
Huurwoning - Triangelstraat/Amersfoort (ā¬1950.00/100.00m2)
Amersfoort
ā¬1.950
3 kamers
Appartement - Ringweg Randenbroek/Amersfoort (ā¬940.00/74.00m2)
Amersfoort
ā¬940
3 kamers
Meer woningen bekijken?
Ontdek ons volledige aanbod van huurwoningen in Nederland. Van studio's tot gezinswoningen.