Albertus Magnusstraat 12 - Amersfoort
📍 Amersfoort
🚪 3 kamers
📐 76.67 m²
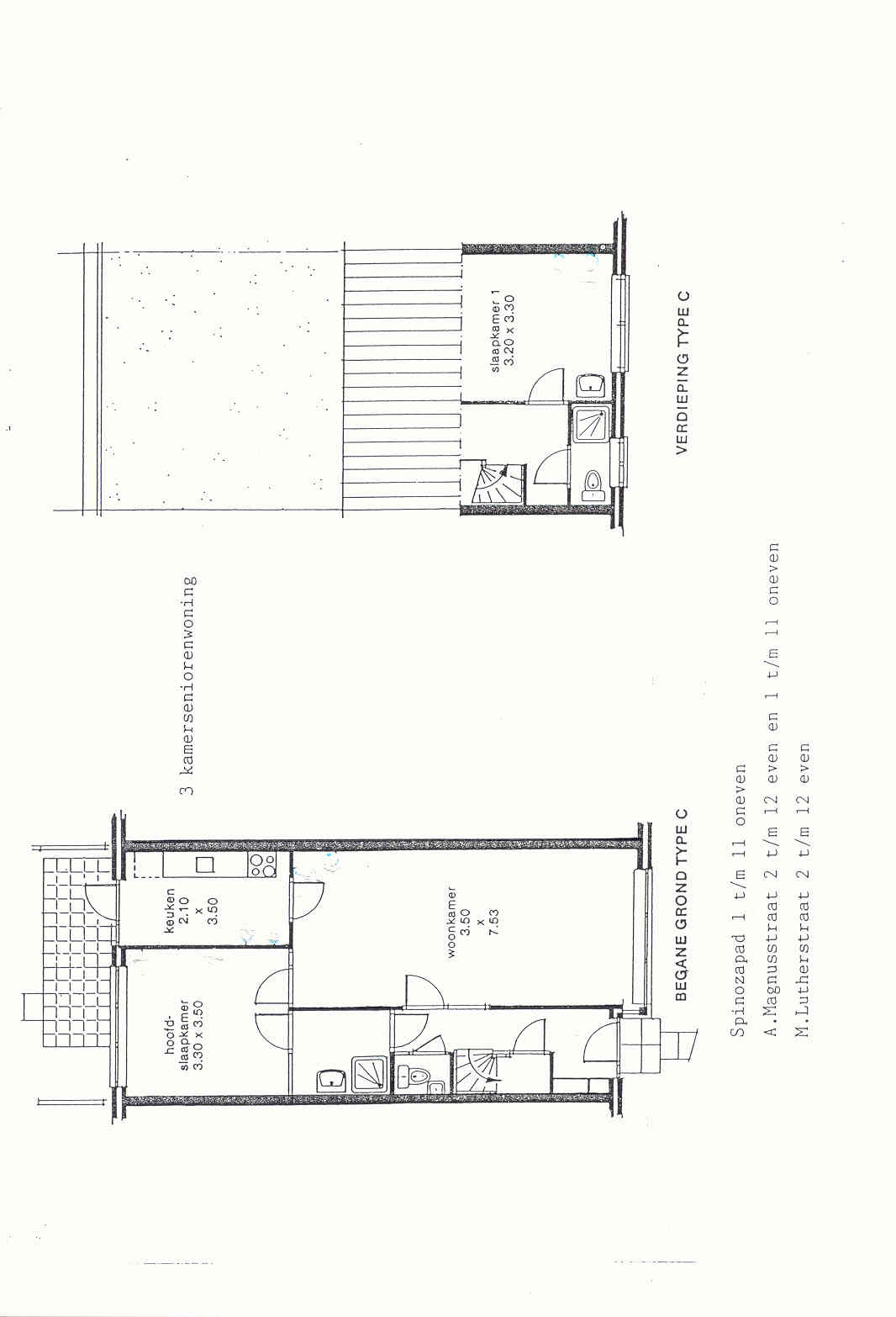
Albertus Magnusstraat 12 te Amersfoort voorrang voor seniorenHoekwoning bestemd als voorrang voor senioren (65+) met één slaapkamer en badkamer op zowel de begane grond als op de eerste verdieping. Uitermate geschikt als mantelzorg woning of dergelijke. De woning is voorzien van een achtertuin met berging en een kleine voortuin. De woning is gelegen op een rustige locatie in de wijk Zielhorst op een hofje. Supermarkt en andere voorzieningen op loopafstand. Onlangs is de Badkamer en het toilet gerenoveerd. - Voorrang voor leeftijd 65 jaar. Inwonende kinderen niet toegestaan.*Aan de verhuurprijs en plattegrond kunnen geen rechten worden ontleend. Van Groot naar BeterLaat u een grote woning achter? Mogelijk komt u in aanmerking voor de regeling van Groot naar Beter. OvernamesIn de woning zijn verschillende zaken ter overname denk hierbij aan zonnescherm, trapbekleding etc. Dit is iets tussen u en de andere partij. Omnia Wonen zit hier als verhuurder niet tussen.BezichtigingBij deze woning vindt een verplichte bezichtiging plaats.Beschikbaar per 18 september 2023 (onder voorbehoud)Woning is beschikbaar per 18 september 2023. Dit is onder voorbehoud van mogelijke werkzaamheden in de woning. Benodigde documenten voor verhuring (uiterlijk binnen 2 werkdagen naar aanbieding bij ons binnen zijn)Onderstaande documenten hebben wij nodig voor de verhuring. Deze kunt u uploaden op uw eigen Woningnet account. Of u kunt mailen naar Info@omniawonen.nl onder vermelding van het adres (let op alleen als u een aanbieding krijgt)De meest recente inkomensverklaring van de Belastingdienst (of meest recente definitieve aanslag inkomstenbelasting) van u en van uw eventuele partner (ook als deze geen eigen inkomen heeft) U moet zelf uw BSN nummer wegstrepen. Anders mogen wij deze niet behandelen.BRP van de gezinssamenstelling + woonhistorie op te vragen bij de gemeente. Woonhistorie is ook op te vragen met uw DIGID via mijnoverheid.nlEen verhuurdersverklaring. Deze kunt u opvragen bij uw huidige of uw laatste verhuurder. Heeft u een koopwoning, dan zouden wij graag drie afschriften van de hypotheek willen zien.Antwoord en gegevensformulier te bereiken via onderstaande link.https://www.omniawonen.nl/wp-content/uploads/2021/04/Acceptatie-en-gegevensformulier-Amersfoort-Woudenberg.pdfBent u gescheiden, niet langer geregistreerd partners of woont u niet meer samen? Dan mag u uw kinderen alleen op uw inschrijving vermelden als zij hun hoofdverblijfplaats bij u hebben of als er sprake is van co-ouderschap. In geval van co-ouderschap mogen beide ouders de kinderen op hun inschrijving vermelden. Op het moment dat u een woning accepteert, vraagt de verhuurder u om aan te tonen dat de kinderen terecht op uw inschrijving staan vermeld. Dit kan aan de hand van een gerechtelijke uitspraak, een echtscheidingsconvenant of een ouderschapsplan.
Kenmerken
Type:
Woonruimte
Oppervlakte:
76.67 m²
Aantal kamers:
3
Energielabel:
C
Vertrekken
Badkamer
1.98 m²
Badkamer
4.12 m²
Berging
6.25 m²
Keuken
7.35 m²
Slaapkamer
10.56 m²
Slaapkamer
11.55 m²
Woonkamer
26.36 m²
Vergelijkbare woningen
Appartement - Stadsring/Amersfoort (€2750.00/83.00m2)
Amersfoort
€2.750
3 kamers
Huurwoning - Kuinrestraat/Amersfoort (€2500.00/150.00m2)
Amersfoort
€2.500
6 kamers
Appartement - Rietzangerstraat/Amersfoort (€865.00/89.00m2)
Amersfoort
€865
4 kamers
Appartement - Groningerstraat/Amersfoort (€1905.00/118.00m2)
Amersfoort
€1.905
3 kamers
Huurwoning - Triangelstraat/Amersfoort (€1950.00/100.00m2)
Amersfoort
€1.950
3 kamers
Appartement - Ringweg Randenbroek/Amersfoort (€940.00/74.00m2)
Amersfoort
€940
3 kamers
Meer woningen bekijken?
Ontdek ons volledige aanbod van huurwoningen in Nederland. Van studio's tot gezinswoningen.