Asschatterweg 32B - Leusden
📍 Leusden
🚪 4 kamers
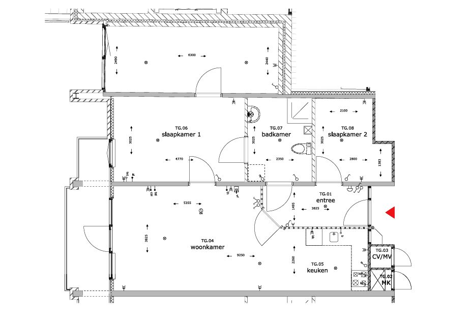
Deze woning is alleen geschikt voor 1 persoon of een stel vanaf 65 jaar of ouder. Huishoudens van meer dan twee personen of met kinderen worden afgewezen.VerhuurdatumDe woning is onder voorbehoud 9 april 2026 beschikbaar.Het gebouwIn dit seniorencomplex is elke verdieping bereikbaar met zowel de trap als de lift. Er is een ondergrondse parkeergelegenheid (op beschikbaarheid) aanwezig. Ook is er een algemene fietsenberging en een scootmobielruimte (tegen vergoeding en op beschikbaarheid) aanwezig. BezichtigenEen bezichtiging vindt plaats in bewoonde staat omdat er overnames in de woning zijn en u deze kunt bespreken. De geselecteerde kandidaat krijgt een bericht met contactgegevens.De woningDit zeer nette 4-kamer appartement is gelegen op de 3e verdieping van het seniorencomplex en heeft een zonnig balkon met vrij uitzicht over de vijver. De woning heeft in de woonkamer een open hoekkeuken. Er is 1 ruime slaapkamer en een extra (berg)kamer aan de voorzijde van het appartement. De badkamer is vanuit de hal en de slaapkamer te betreden en heeft een douche met een thermostaatkraan, toilet en wastafel met eenhendel mengkraan. De badkamer heeft een douchestoel en WC beugels die gratis achterblijven. De wasmachineaansluiting tref je in de badkamer aan.Overnames onder voorbehoud zijn o.a.:- Laminaatvloer en vloerbedekking;- Gordijnen, rails;- Douchescherm;- Zonnescherm.OvernamesOvernames regelen huidige en nieuwe huurder onderling. Voor het onderhoud van overnames is de nieuwe huurder zelf verantwoordelijk.Staat van de woningOmthuis levert iedere woning op met basiskwaliteit: schoon, heel en veilig.Wat moet u vaak nog zelf doen?Houd er rekening mee dat u zelf ook nog het een en ander moet doen om de woning naar uw smaak te maken. Denk daarbij aan het leggen van ondervloeren en vloeren en het schilderen en behangen van de muren en plafonds.Wonen in LeusdenWonen in een dorp met alle nodige voorzieningen en toch dichtbij een grote stad? Dat biedt Leusden. Het dorp is goed bereikbaar via de A28 en ligt dicht bij de A1. Ook via openbaar vervoer. Binnen een kwartier ben je in Amersfoort en in een half uur in Utrecht. Voor je boodschappen kun je in verschillende winkelcentra terecht. De Biezenkamp en  Hamershof bijvoorbeeld, met meer dan 90 winkels, is een veelzijdig shopping center. Gezellig een avondje uit? Mogelijkheden genoeg met gevarieerde horeca, theater De Tuin en het bekende AFAS-theater.
Kenmerken
Type:
Woonruimte
Aantal kamers:
4
Energielabel:
A
Vertrekken
Hal
5.22 m²
Badkamer
7.11 m²
Slaapkamer
7.30 m²
Slaapkamer
14.43 m²
Slaapkamer
15.37 m²
Woonkamer/keuken
29.58 m²
Vergelijkbare woningen
Woning aan de Hooikade te Den Haag
Den Haag
€3.590
3 kamers
Woning aan de Amsterdamsestraat te Muiden
Muiden
€1.750
2 kamers
Woning aan de Pannesheiderstraat te Kerkrade
Kerkrade
€380
1 kamers
Woning aan de Maaskade te Rotterdam
Rotterdam
€2.350
3 kamers
Woning aan de Markt te Roosendaal
Roosendaal
€650
1 kamers
Woning aan de Langswater te Amsterdam
Amsterdam
€2.900
4 kamers
Meer woningen bekijken?
Ontdek ons volledige aanbod van huurwoningen in Nederland. Van studio's tot gezinswoningen.