Bernhardstraat 98 - Kerkdriel
📍 Kerkdriel
🚪 4 kamers
📐 60.30 m²
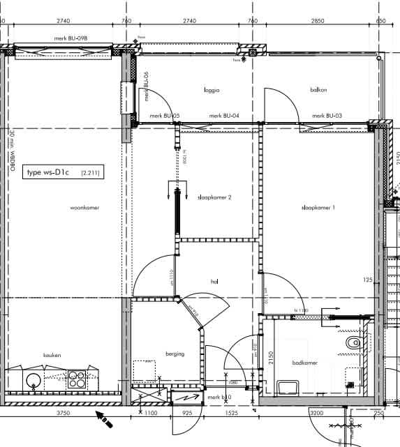
Appartement op de tweede verdieping in het Woonzorgcomplex de Leijenstein. Het is een woning met twee slaapkamers. OvernamesEr zijn spullen ter overname van de vorige huurder. In de bijlagen vindt u hier een overzicht van.Let erop dat het onderhoud van de overnames volledig voor de huurder is.
Kenmerken
Type:
Woonruimte
Oppervlakte:
60.30 m²
Aantal kamers:
4
Energielabel:
A
Vertrekken
Slaapkamer
6.60 m²
Keuken
9.00 m²
Slaapkamer
16.00 m²
Woonkamer
28.70 m²
Vergelijkbare woningen
Woning aan de Hooikade te Den Haag
Den Haag
€3.590
3 kamers
Woning aan de Amsterdamsestraat te Muiden
Muiden
€1.750
2 kamers
Woning aan de Pannesheiderstraat te Kerkrade
Kerkrade
€380
1 kamers
Woning aan de Maaskade te Rotterdam
Rotterdam
€2.350
3 kamers
Woning aan de Markt te Roosendaal
Roosendaal
€650
1 kamers
Woning aan de Langswater te Amsterdam
Amsterdam
€2.900
4 kamers
Meer woningen bekijken?
Ontdek ons volledige aanbod van huurwoningen in Nederland. Van studio's tot gezinswoningen.