Bevrijdingsweg 10 - Usquert
📍 Usquert
🚪 6 kamers
📐 104.25 m²
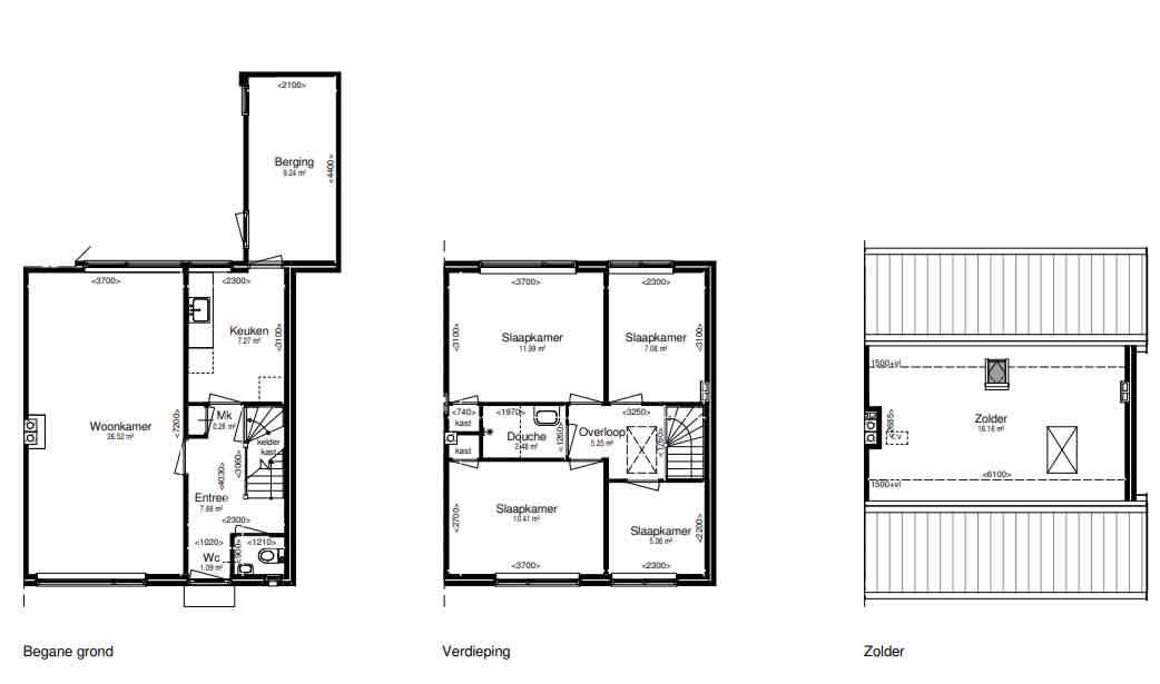
Aan de Bevrijdingsweg in Usquert krijgen we deze hoekwoning beschikbaar. De woning beschikt onder andere over vier slaapkamers, een ruime berging, zolder, eigen oprit en zonnepanelen. Het dorp Usquert staat bekend als klein maar fijn. Het is een gezellig dorp met een rijke historie. De meeste voorzieningen kun je vinden in het nabijgelegen dorp Uithuizen. Usquert ligt aan de spoorlijn richting Groningen waardoor de stad te bereiken is in ongeveer 30 minuten.
Kenmerken
Type:
Woonruimte
Oppervlakte:
104.25 m²
Aantal kamers:
6
Energielabel:
A
Vertrekken
Badkamer
2.48 m²
Slaapkamer
5.06 m²
Slaapkamer
7.08 m²
Keuken
7.27 m²
Slaapkamer
10.41 m²
Slaapkamer
11.99 m²
Woonkamer
26.52 m²
Vergelijkbare woningen
Woning aan de Hooikade te Den Haag
Den Haag
€3.590
3 kamers
Woning aan de Amsterdamsestraat te Muiden
Muiden
€1.750
2 kamers
Woning aan de Pannesheiderstraat te Kerkrade
Kerkrade
€380
1 kamers
Woning aan de Maaskade te Rotterdam
Rotterdam
€2.350
3 kamers
Woning aan de Markt te Roosendaal
Roosendaal
€650
1 kamers
Woning aan de Langswater te Amsterdam
Amsterdam
€2.900
4 kamers
Meer woningen bekijken?
Ontdek ons volledige aanbod van huurwoningen in Nederland. Van studio's tot gezinswoningen.