+1
Bramenlaan 158 - Bentveld
📍 Bentveld
🚪 2 kamers
Bodaan | Woonzorg Nederland - betaalbare woningen voor seniorenHet betref 1 slaapkamer woning op de 1e verdieping.ComplexAlles onder 1 dakHet wooncentrum bestaat uit 52 tweekamerappartementen die van alle gemakken voorzien zijn. Het gebouw heeft een etage, die met lift en trap bereikbaar is.In het naastgelegen woonzorgcentrum A.G. Bodaan, onderdeel van Amie Ouderenzorg, kunt u gebruik maken van het restaurant. Ook kunt u deelnemen aan de activiteiten die vanuit het woonzorgcentrum worden georganiseerd. Amie Ouderenzorg biedt verschillende zorg- en welzijnsdiensten waaronder thuiszorg en alarmering. Ook kunt u deelnemen aan de activiteiten die vanuit het woonzorgcentrum worden georganiseerd. Voor de toewijzing van de woning en het controleren van uw inkomen heeft Woonzorg een verklaring geregistreerd inkomen nodig. U kunt dit formulier aanvragen bij de Belastingdienst via telefoonnummer 0800-0543. Vraagt u dit alvast aan!
Kenmerken
Type:
Woonruimte
Aantal kamers:
2
Energielabel:
B
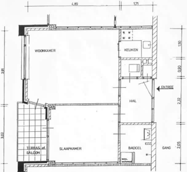
Vertrekken
Badkamer
3.28 m²
Keuken
6.86 m²
Slaapkamer
12.94 m²
Woonkamer
26.73 m²
Vergelijkbare woningen
Woning aan de Hooikade te Den Haag
Den Haag
€3.590
3 kamers
Woning aan de Amsterdamsestraat te Muiden
Muiden
€1.750
2 kamers
Woning aan de Pannesheiderstraat te Kerkrade
Kerkrade
€380
1 kamers
Woning aan de Maaskade te Rotterdam
Rotterdam
€2.350
3 kamers
Woning aan de Markt te Roosendaal
Roosendaal
€650
1 kamers
Woning aan de Langswater te Amsterdam
Amsterdam
€2.900
4 kamers
Meer woningen bekijken?
Ontdek ons volledige aanbod van huurwoningen in Nederland. Van studio's tot gezinswoningen.