Bruispad 12 - Amersfoort
š Amersfoort
šŖ 2 kamers
š 61.10 m²
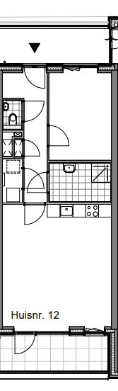
Te huur: Sociale huurwoning aan het Bruispad 12 in AmersfoortWonen in een moderne, duurzame woning in een rustige en groene buurt? Dan is dit uw kans! Aan het Bruispad in Amersfoort komt binnenkort opnieuw een prachtig sociaal huurappartement beschikbaar. De woning maakt deel uit van een recent gerealiseerd wooncomplex in een wijk die de afgelopen jaren volop is vernieuwd. Een plek waar u zich direct thuis voelt, met alle voorzieningen binnen handbereik.Over de woningHet appartement heeft een praktische en comfortabele indeling met:Een woonkamer met open keuken en een aparte slaapkamerWoonoppervlakte: circa 61 m²PrivĆ© buitenruimte: een balkon van 6 tot 9 m²Energielabel: A+ t/m A+++Zonneschermen: De woning is voorzien van elektrisch bedienbare zonneschermen. Het aantal en de locatie verschillen per woning. Zie hiervoor pagina 11 van de brochure.Eigen berging: minimaal 5 m² in de kelder van het complexDeze woning beschikt over een eigen parkeerplekZaken ter overnameDe huidige huurder biedt enkele zaken ter overname aan, waaronder:De vloer (details volgen bij interesse)Eventuele aanvullende zaken worden tijdens de bezichtiging of via de verhuurmedewerker toegelicht.De omgevingHet Bruispad ligt in een wijk die de afgelopen jaren nieuw leven heeft gekregen. De voormalige basisschool is vervangen door een modern kindcentrum en de buurt is aangevuld met diverse woningtypen. Het is een rustige omgeving met voldoende voorzieningen, ideaal voor mensen die betaalbaar en comfortabel willen wonen.Benodigde documentenOm in aanmerking te komen voor dit appartement, hebben wij de volgende documenten nodig. Zorg ervoor dat deze binnen 5 werkdagen na de definitieve aanbieding bij ons binnen zijn. U kunt deze uploaden via uw Woningnet-account of mailen naarĀ info@omniawonen.nl, onder vermelding van het adres (alleen bij een definitieve aanbieding. U ontvangt dan een mail van ons).Inkomensverklaring 2023-2024Ā van de Belastingdienst (of de meest recente definitieve aanslag inkomstenbelasting) van uzelf en eventuele partner. Let op: streep uw BSN-nummer door. Anders kunnen wij uw documenten niet behandelen.BRP (Basisregistratie Personen)Ā met gezinssamenstelling en woonhistorie (op te vragen bij uw gemeente of via MijnOverheid).VerhuurdersverklaringĀ van uw huidige of vorige verhuurder. Bij een koopwoning ontvangen wij graag drie recente hypotheekafschriften.Antwoord- en gegevensformulierĀ (download via deze link):Acceptatie- en gegevensformulier.Gescheiden of co-ouderschap?Als u gescheiden bent of co-ouderschap heeft, mogen uw kinderen alleen op uw inschrijving staan als zij hun hoofdverblijfplaats bij u hebben. Bij co-ouderschap mogen beide ouders de kinderen inschrijven. Als u een woning accepteert, kan de verhuurder u vragen dit aan te tonen met een gerechtelijke uitspraak, echtscheidingsconvenant of ouderschapsplan.* De verhuurdatum en voorwaarden zijn onder voorbehoud van fouten en/of wijzigingen. Hieraan kunnen geen rechten worden ontleend.Meer informatie over de woningen?Kijk voor meer informatie over de woningen naar de verhuurbrochure. Deze kunt u vinden onder downloads. Daarnaast kunt u kijken opĀ www.omniawonen.nlĀ of contact opnemen via ons contactformulier op onze website of wij zijn telefonisch bereikbaar van maandag tot en met vrijdag van Ā 8:30 tot 12:30. Heeft u vragen over het reageren via woningnet of andere vragen inzake woningnet kunt u hiervoor contact opnemen met woningnet via Klantcontactcentrum van WoningNet op 0900 - 040 06 02.Ā zij zijn geopend van maandag tot en met vrijdag van 8:00 tot 17:00 uur*Aan de verhuurbrochure, plattegrond, huurprijs, servicekosten en advertentie kunnen geen rechten worden ontleent*Ā
Kenmerken
Type:
Woonruimte
Oppervlakte:
61.10 m²
Aantal kamers:
2
Energielabel:
A++
Vertrekken
Berging
1.90 m²
Badkamer
5.20 m²
Berging
5.30 m²
Slaapkamer
12.00 m²
Woonkamer/keuken
29.10 m²
Vergelijkbare woningen
Appartement - Stadsring/Amersfoort (ā¬2750.00/83.00m2)
Amersfoort
ā¬2.750
3 kamers
Huurwoning - Kuinrestraat/Amersfoort (ā¬2500.00/150.00m2)
Amersfoort
ā¬2.500
6 kamers
Appartement - Rietzangerstraat/Amersfoort (ā¬865.00/89.00m2)
Amersfoort
ā¬865
4 kamers
Appartement - Groningerstraat/Amersfoort (ā¬1905.00/118.00m2)
Amersfoort
ā¬1.905
3 kamers
Huurwoning - Triangelstraat/Amersfoort (ā¬1950.00/100.00m2)
Amersfoort
ā¬1.950
3 kamers
Appartement - Ringweg Randenbroek/Amersfoort (ā¬940.00/74.00m2)
Amersfoort
ā¬940
3 kamers
Meer woningen bekijken?
Ontdek ons volledige aanbod van huurwoningen in Nederland. Van studio's tot gezinswoningen.