+5
Dorpsstraat 42 - Hagestein
📍 Hagestein
🚪 4 kamers
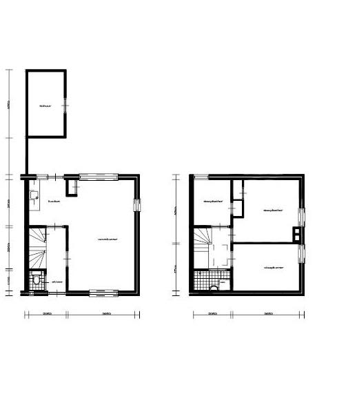
Deze knusse hoekwoning ligt aan de doorgaande weg in het dorp Hagestein. Vanuit huis zijn diverse mooie fietstochten te maken en ook sportvelden en de recreatieplas Everstein liggen in de directe omgeving. En wat dacht u van de Lek(dijk) met haar uiterwaarden. Voorzieningen voor dagelijkse boodschappen en bassisscholen zijn in de buurt. Binnen een paar minuten zijn de A2 en de A27 bereikbaar, dus landelijk wonen met de grote stad binnen handbereik.Via de entree met toilet en trap naar de eerste etage bereikt u de woonkamer met open keuken. De drie slaapkamers en badkamer liggen op de eerste etage. De zolder bereikt u via een vlizotrap. Ter overname worden de volgende goederen aangeboden: tweede schuur, kookplaat, rolgordijnen, laminaat, overkapping tuin en koelkast. De badkamer is klein en knus, waar ook de wasmachine staat. Gezien de beperkte ruimte kunt u het beste een wasmachine met bovenlader plaatsen (maximaal 45 cm breed). Een grotere wasmachine gaat ten koste van de ruimte. De keuken en het toilet worden vernieuwd. Hierbij wordt nieuw tegelwerk en sanitair geplaatst.Op het dak liggen zonnepanelen. Hiervoor betaalt u een maandelijks bedrag van € 31,60 aan LEKSTEDEwonen. Hierdoor kan het voorschot bij uw energieleverancier worden verlaagd.
Kenmerken
Type:
Woonruimte
Aantal kamers:
4
Energielabel:
B
Vertrekken
Slaapkamer
6.00 m²
Slaapkamer
9.00 m²
Slaapkamer
11.00 m²
Woonkamer
22.00 m²
Vergelijkbare woningen
Woning aan de Hooikade te Den Haag
Den Haag
€3.590
3 kamers
Woning aan de Amsterdamsestraat te Muiden
Muiden
€1.750
2 kamers
Woning aan de Pannesheiderstraat te Kerkrade
Kerkrade
€380
1 kamers
Woning aan de Maaskade te Rotterdam
Rotterdam
€2.350
3 kamers
Woning aan de Markt te Roosendaal
Roosendaal
€650
1 kamers
Woning aan de Langswater te Amsterdam
Amsterdam
€2.900
4 kamers
Meer woningen bekijken?
Ontdek ons volledige aanbod van huurwoningen in Nederland. Van studio's tot gezinswoningen.