+2
Erasmuslaan 23C7 - Haren Gn
📍 Haren Gn
🚪 2 kamers
Waarom wilt u hier wonen? Rustig gelegenNabij natuurgebiedGoed geïsoleerde woningenGelijkvloerse woningenAppartementen op het zuiden hebben vrij uitzicht over natuurHuisartsenpost aanwezigPedicure & kapsalon aanwezigMaandagochtend georganiseerde gymnastieklessen via Harense Sport verenigingGratis parkerenGoed om te weten als u hier niet wilt gaan wonen. Openbaar vervoer op 1,5 km afstandDorpscentrum met winkels op 2 km afstandEen groot deel van de appartementen zijn vrij klein voor 2 bewonersNieuw Erasmusheem Dit is gelegen aan de rand van het gezellig dorp Haren, nabij natuurgebied Sassenheim. Lang zelfstandig prettig wonen? U bent in Nieuw Erasmusheem van harte welkom. In Nieuw Erasmusheem vindt u een plek waar u samen met leeftijdgenoten zelfstandig kunt wonen, met alle gemakken bij de hand.Men kan gebruik maken van de multifunctionele ruimte voor kleine, maar ook grotere groepsactiviteiten, zoals spelletjes, filmkijken of toneelvoorstellingen. Een fijne plek om elkaar te ontmoeten!Let op! Bij reactie door 2 woningzoekenden dienen beide huurders 55 jaar en ouder te zijn.
Kenmerken
Type:
Woonruimte
Aantal kamers:
2
Energielabel:
A
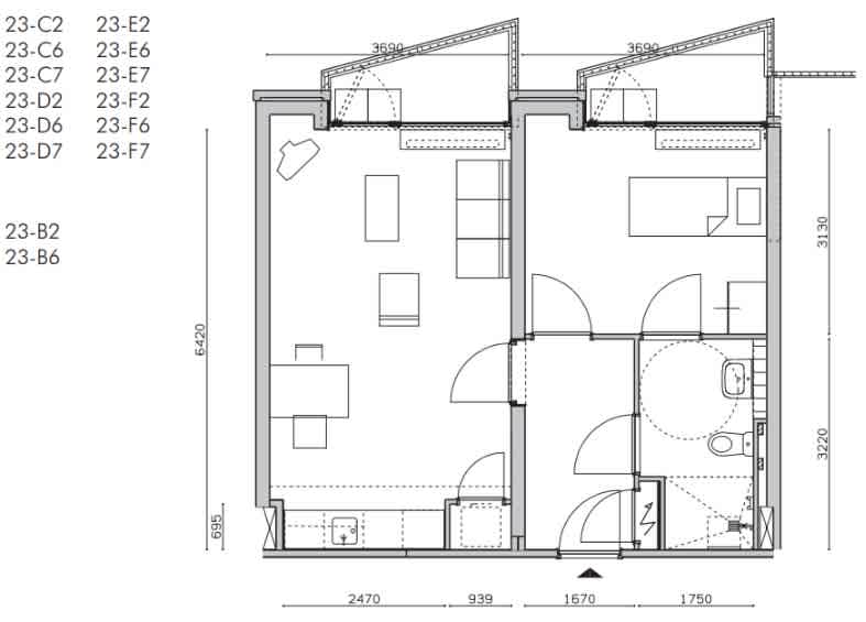
Vertrekken
Badkamer/toilet
6.46 m²
Balkon
6.84 m²
Slaapkamer
11.88 m²
Woonkamer
16.57 m²
Vergelijkbare woningen
Woning aan de Hooikade te Den Haag
Den Haag
€3.590
3 kamers
Woning aan de Amsterdamsestraat te Muiden
Muiden
€1.750
2 kamers
Woning aan de Pannesheiderstraat te Kerkrade
Kerkrade
€380
1 kamers
Woning aan de Maaskade te Rotterdam
Rotterdam
€2.350
3 kamers
Woning aan de Markt te Roosendaal
Roosendaal
€650
1 kamers
Woning aan de Langswater te Amsterdam
Amsterdam
€2.900
4 kamers
Meer woningen bekijken?
Ontdek ons volledige aanbod van huurwoningen in Nederland. Van studio's tot gezinswoningen.