+1
Erasmusstraat 3 - Amersfoort
📍 Amersfoort
🚪 5 kamers
📐 87.66 m²
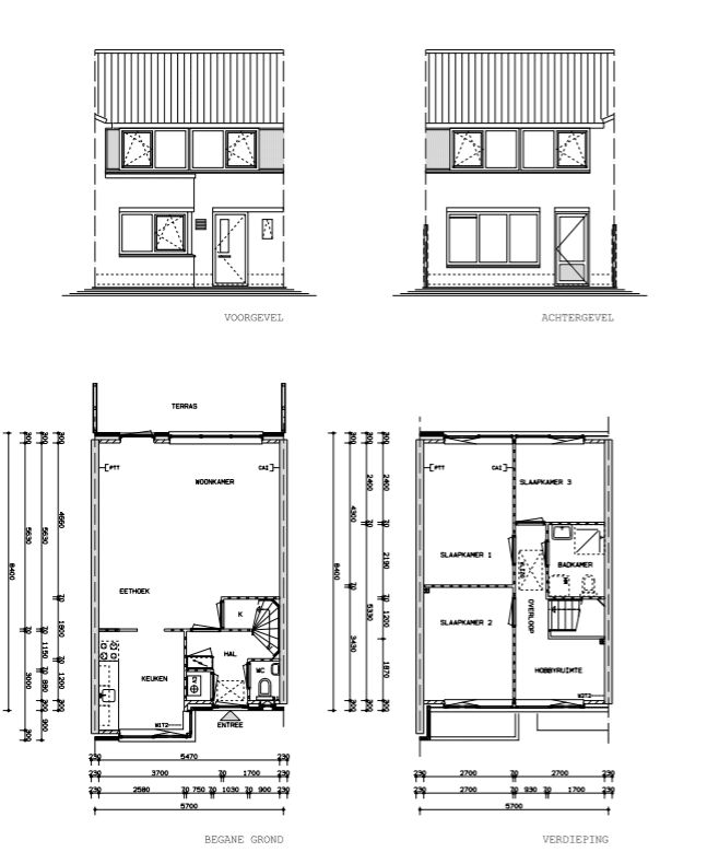
AdvertentietekstErasmusstraat 3 te Amersfoort. (let op minimaal 2 of meer persoonshuishouden) Eengezinswoning met een half open keuken grenzende aan de woonkamer. op de eerste verdieping zijn 3 slaapkamers samen met een badkamer. De woning is voorzien van een nieuwe badkamer, keuken, en toilet ruimte. De woning heeft een vliso trap naar een zoldertje. Deze ruimte is bedoeld voor opslag en is geen slaapkamer. Tevens heeft de tuin een losse berging in de achtertuin. * woning beschikbaar voor 2 of meer persoonshuishouden*aan de advertentie, plattegrond en huurprijs kunt u geen recht ontlenen. Beschikbaar Woning is per direct beschikbaar. (onder voorbehoud van mogelijke werkzaamheden & documenten controle)Benodigde documenten voor verhuring (uiterlijk binnen 2 werkdagen naar aanbieding bij ons binnen zijn)Onderstaande documenten hebben wij nodig voor de verhuring. deze kunt u uploaden op u Woningnet account. of mailen naar Info@omniawonen.nl onder vermelding van het adres (let op alleen als u een aanbieding krijgt)De meest recente inkomensverklaring van de Belastingdienst (of meest recente definitieve aanslag inkomstenbelasting) van u en van uw eventuele partner (ook als deze geen eigen inkomen heeft) U moet zelf u BSN nummer wegstrepen. Anders mogen wij deze niet behandelen. 2.- BRP van de gezinssamenstelling + woonhistorie op te vragen bij de gemeente. Woonhistorie is ook op te vragen met uw DIGI ID via www.mijnoverheid.nl3..- Een verhuurdersverklaring. Deze kunt u opvragen bij uw huidige of uw laatste verhuurder. Heeft u een koopwoning, dan zouden wij graag drie afschriften van de hypotheek willen zien.Antwoord en gegevensformulier te bereiken via onderstaande link. https://www.omniawonen.nl/wp-content/uploads/2021/04/Acceptatie-en-gegevensformulier-Amersfoort-Woudenberg.pdf5. Bent u gescheiden, niet langer geregistreerd partners of woont u niet meer samen? Dan mag u uw kinderen alleen op uw inschrijving vermelden als zij hun hoofdverblijfplaats bij u hebben of als er sprake is van co-ouderschap. In geval van co-ouderschap mogen beide ouders de kinderen op hun inschrijving vermelden. Op het moment dat u een woning accepteert, vraagt de verhuurder u om aan te tonen dat de kinderen terecht op uw inschrijving staan vermeld. Dit kan aan de hand van een gerechtelijke uitspraak, een echtscheidingsconvenant of een ouderschapsplan
Kenmerken
Type:
Woonruimte
Oppervlakte:
87.66 m²
Aantal kamers:
5
Energielabel:
C
Vertrekken
Badkamer
3.72 m²
Slaapkamer
5.01 m²
Berging
6.25 m²
Slaapkamer
6.48 m²
Slaapkamer
9.26 m²
Slaapkamer
11.61 m²
Woonkamer
36.89 m²
Vergelijkbare woningen
Appartement - Stadsring/Amersfoort (€2750.00/83.00m2)
Amersfoort
€2.750
3 kamers
Huurwoning - Kuinrestraat/Amersfoort (€2500.00/150.00m2)
Amersfoort
€2.500
6 kamers
Appartement - Rietzangerstraat/Amersfoort (€865.00/89.00m2)
Amersfoort
€865
4 kamers
Appartement - Groningerstraat/Amersfoort (€1905.00/118.00m2)
Amersfoort
€1.905
3 kamers
Huurwoning - Triangelstraat/Amersfoort (€1950.00/100.00m2)
Amersfoort
€1.950
3 kamers
Appartement - Ringweg Randenbroek/Amersfoort (€940.00/74.00m2)
Amersfoort
€940
3 kamers
Meer woningen bekijken?
Ontdek ons volledige aanbod van huurwoningen in Nederland. Van studio's tot gezinswoningen.