+2
Fruithof 33 - Ingen
📍 Ingen
🚪 3 kamers
📐 117.00 m²
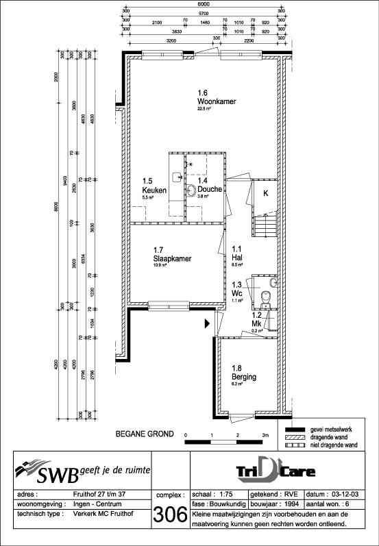
Bent u op zoek naar een ideale woning in het hart van Ingen?Deze woning aan de Fruithof 33 in Ingen biedt u een comfortabele en zorgeloze leefomgeving, perfect afgestemd op uw wensen.Indeling van de woningBerging: direct bij binnenkomst treft u aan de rechterzijde de inpandige berging.Woonkamer: Gezellige woonkamerKeuken: Direct aansluitend op de woonkamer vindt u een open keuken, geschikt voor elektrisch koken. Keukenkeuze voor nieuwe huurder.Slaapkamer: op de begane grond is er een slaapkamer aanwezig. Op de 1e verdieping is er ruime slaapkamer van 22 m2 aanwezig.Badkamer: aansluitend op de slaapkamer beneden, is de badkamer gesitueerd. De wasmachine-aansluiting is hier gevestigd.Tuin: onderhoudsarme tuin met plantbakken en tegels in moderne kleurstelling.Voorzieningen in de buurtIngen is een landelijk dorp in de gemeente Buren, midden tussen de fruitbomen. Neem je de pont over de Nederrijn dan sta je in het Utrechtse Elst. In Ingen zijn veel eengezinswoningen en de nodige voorzieningen voor kinderen. Denk aan een kinderdagverblijf, basisschool en voetbal- en gymnastiekvereniging. Ook voor senioren zijn er veel woningen in Ingen, evenals een actieve buurtvereniging, kerk en dorpscafé. Voor de boodschappen biedt het naastgelegen Lienden voldoende aanbod.Voor uitgebreide informatie over de buurt kunt u terecht op www.postcodebijadres.nl.Overname van spullenDe huidige bewoner biedt de volgende zaken ter overname aan: laminaatvloer op de begane grond en vloerbedekking op de 1e verdieping en screens aan de voor- en achterzijde. U kunt dit bespreken tijdens de bezichtiging.EnergievoorzieningenDe woning beschikt over 4 zonnepanelen en een perilex-aansluiting voor elektrisch koken. Hierdoor kunt u profiteren van lagere energiekosten en een duurzame woning.Voor wie is deze woning geschikt?Deze woning is speciaal bedoeld voor senioren vanaf 55 jaar met 2 personen. Huurders die meedoen met het doorstroombeleid 55+ hebben voorrang bij de toewijzing. Controleer of deze woning geschikt is voor uw situatie door in te loggen en uw inkomensgegevens in te vullen. Wilt u weten of u in aanmerking komt voor huurtoeslag? Maak een proefberekening via www.toeslagen.nl om verrassingen te voorkomen.Hoe verloopt het proces?Na sluiting van de reactietermijn ontvangen de eerste 3 kandidaten een uitnodiging voor de bezichtiging. Indien zij geen belangstelling hebben of niet voldoen aan de voorwaarden, worden de volgende 3 kandidaten benaderd.Let op: bij woningen die gerenoveerd moeten worden kunnen extra kosten ontstaan. Bezichtiging is in dat geval pas mogelijk na renovatie. Wij informeren u hierover zodra er meer duidelijkheid is.VoorwaardenBij acceptatie van de woning moet u uw inkomen aantonen met een inkomensverklaring over 2023 of 2024. Dit geldt ook voor een eventuele mede-inschrijver en andere volwassenen die meeverhuizen.Vraag uw inkomensverklaring eenvoudig aan via www.mijnbelastingdienst.nl met uw DigiD.Heeft u geen DigiD? Bel dan de Belastingdienst via 0800-0543 met uw burgerservicenummer bij de hand. U ontvangt de verklaring binnen vijf werkdagen.Houd er rekening mee dat u bij het reageren op de woning al over de inkomensverklaring beschikt en het bedrag uit de verklaring in uw profiel heeft ingevuld.
Kenmerken
Type:
Woonruimte
Oppervlakte:
117.00 m²
Aantal kamers:
3
Energielabel:
B
Vertrekken
Slaapkamer
10.00 m²
Slaapkamer
21.00 m²
Woonkamer
23.00 m²
Vergelijkbare woningen
Woning aan de Hooikade te Den Haag
Den Haag
€3.590
3 kamers
Woning aan de Amsterdamsestraat te Muiden
Muiden
€1.750
2 kamers
Woning aan de Pannesheiderstraat te Kerkrade
Kerkrade
€380
1 kamers
Woning aan de Maaskade te Rotterdam
Rotterdam
€2.350
3 kamers
Woning aan de Markt te Roosendaal
Roosendaal
€650
1 kamers
Woning aan de Langswater te Amsterdam
Amsterdam
€2.900
4 kamers
Meer woningen bekijken?
Ontdek ons volledige aanbod van huurwoningen in Nederland. Van studio's tot gezinswoningen.