Fruitstraat 45 - Dodewaard
📍 Dodewaard
🚪 2 kamers
📐 86.00 m²
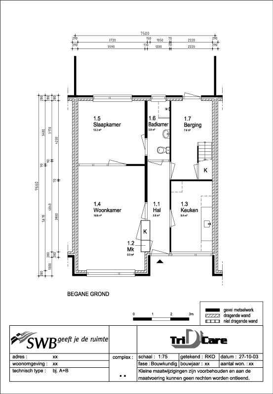
Bent u op zoek naar een comfortabele seniorenwoning in Dodewaard?Deze gelijkvloerse woning aan de Fruitstraat 45 is zeer geschikt voor senioren die prettig en praktisch willen wonen.Indeling van de woningWoonkamer:Een lichte woonkamer met voldoende ruimte voor een zit- en eethoek.Keuken:De keuken is functioneel ingericht en biedt ruimte voor uw eigen apparatuur en indeling.Slaapkamer:De woning beschikt over een praktische slaapkamer, ideaal voor een één- of tweepersoonshuishouden.Badkamer en toilet:De badkamer is praktisch ingericht. Het toilet bevindt zich in de badkamer.Buitenruimte:De woning beschikt over een eigen buitenruimte waar u rustig kunt genieten.Voorzieningen in de buurtDodewaard beschikt over diverse voorzieningen zoals winkels en openbaar vervoer.Voor meer informatie over de buurt kunt u terecht op www.postcodebijadres.nl.Bekijk ook de woonomgeving in beeld via:– https://www.youtube.com/watch?v=fLaUkx-aQAEOvername van spullenEventuele overname van spullen of voorzieningen kan besproken worden tijdens de bezichtiging.EnergievoorzieningenDe woning beschikt over standaard aansluitingen.Voor wie is deze woning geschikt?Deze woning is geschikt voor senioren die gelijkvloers willen wonen. Controleer of de woning passend is voor uw situatie door in te loggen en uw inkomensgegevens in te vullen.Wilt u weten of u in aanmerking komt voor huurtoeslag? Maak dan een proefberekening via www.toeslagen.nl.Hoe verloopt het proces?Na sluiting van de reactietermijn ontvangen de eerste kandidaten een uitnodiging voor de bezichtiging. Indien zij afzien of niet voldoen aan de voorwaarden, worden de volgende kandidaten benaderd.VoorwaardenBij acceptatie van de woning moet u uw inkomen aantonen met een inkomensverklaring over 2024 of 2025. Dit geldt ook voor een eventuele mede-inschrijver en andere volwassenen die meeverhuizen.• Vraag uw inkomensverklaring eenvoudig aan via www.mijnbelastingdienst.nl met uw DigiD.• Heeft u geen DigiD? Bel dan de Belastingdienst via 0800-0543 met uw burgerservicenummer bij de hand. U ontvangt de verklaring binnen vijf werkdagen.Zorg ervoor dat u bij het reageren al over de inkomensverklaring beschikt en het bedrag correct in uw profiel heeft ingevuld.De advertentie is gewijzigd op 24-02-2026 14:39:17.
Kenmerken
Type:
Woonruimte
Oppervlakte:
86.00 m²
Aantal kamers:
2
Energielabel:
A
Vertrekken
Slaapkamer
12.00 m²
Woonkamer
20.00 m²
Vergelijkbare woningen
Woning aan de Hooikade te Den Haag
Den Haag
€3.590
3 kamers
Woning aan de Amsterdamsestraat te Muiden
Muiden
€1.750
2 kamers
Woning aan de Pannesheiderstraat te Kerkrade
Kerkrade
€380
1 kamers
Woning aan de Maaskade te Rotterdam
Rotterdam
€2.350
3 kamers
Woning aan de Markt te Roosendaal
Roosendaal
€650
1 kamers
Woning aan de Langswater te Amsterdam
Amsterdam
€2.900
4 kamers
Meer woningen bekijken?
Ontdek ons volledige aanbod van huurwoningen in Nederland. Van studio's tot gezinswoningen.