+8
Gouvernantelaan 96 - De Meern
📍 De Meern
🚪 4 kamers
📐 70.38 m²
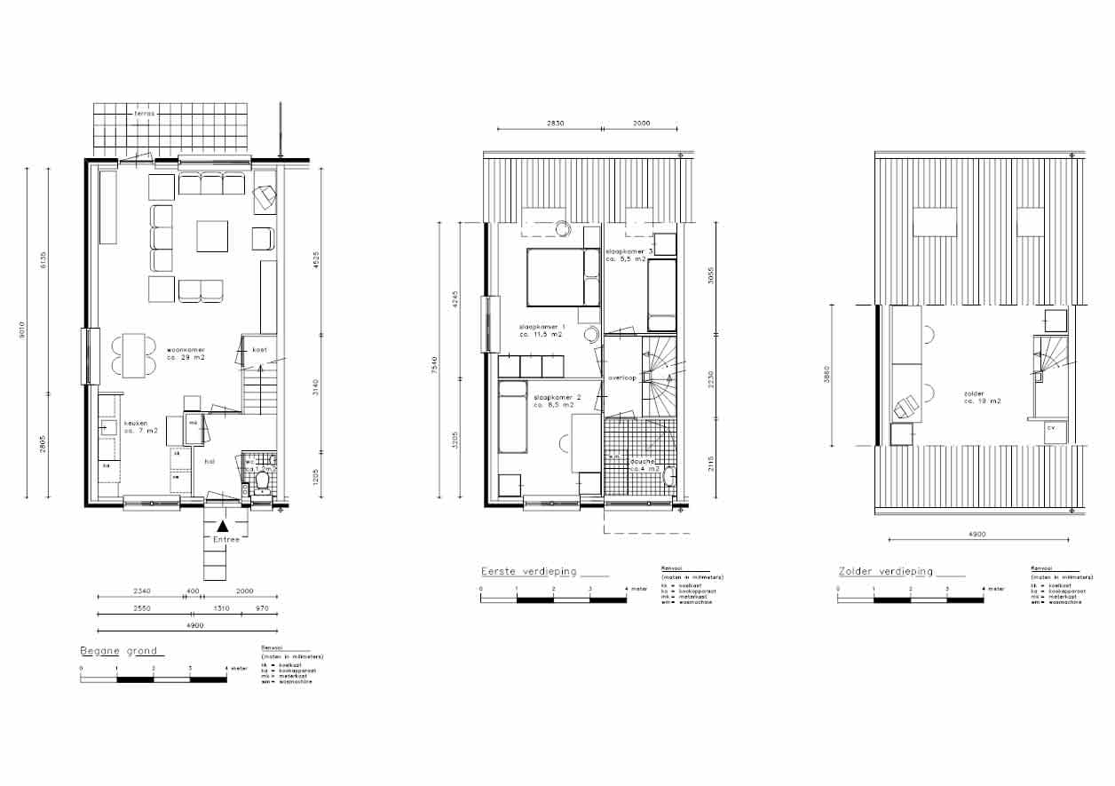
De tussenwoning bevindt zich in de De Meern (dorp). Vleuten-De Meern is een van de 10 woonwijken van Utrecht. Het bestaat naast de oude woonkernen Vleuten en De Meern uit Haarzuilens, Rijnenburg, Oudenrijn, Vleuterweide en Veldhuizen. Samen met woonwijk Leidsche Rijn vormt Vleuten–De Meern het stadsdeel ten westen van het Amsterdam-Rijnkanaal. De naam van dit stadsdeel is ook Leidsche Rijn.IndelingBenedenverdieping:U komt de woning binnen in de hal. Vanuit de hal heeft u toegang tot het toilet en de woonkamer met open keuken. Ook kunt u hier de trap op naar de eerste etage. De woonkamer geeft toegang tot de achtertuin. In de achtertuin bevindt zich een berging. Eerste etage:Op de eerste etage bevinden zich drie slaapkamers en de badkamer.Tweede etage / zolder:De zolder is met een vaste trap te betreden.Bijzonderheden op een rij:Koken op gas en elektra = 2 fase Perilex;Aansluiting wasmachine zolder;Vaste trap naar zolder;Aparte berging;Voorzieningen nabije omgeving: speeltuin;Keuken, badkamer en toilet zijn volledig gerenoveerd;Zonnepanelen;Geen overnames;Deze woning beschikt over een (ruime) tuin. De huurder is verantwoordelijk voor het onderhoud hiervan volgens de richtlijnen van het tuinenbeleid van Cazas wonen.Heeft u interesse en wilt u de woning bezichtigen?De eerste 10 geselecteerde kandidaten ontvangen een mailbericht van WoningNet om de woning te gaan bezichtigen.U kunt de woning bekijken met maximaal 2 personen.Houdt u er dan rekening mee dat er een bezichtiging plaats zal vinden op 18 maart 2026.Let op: de woning is onder voorbehoud per genoemde datum beschikbaar.U kunt nog tot 1 dag voor bezichtiging bericht krijgen dat u de volgende dag hierbij aanwezig dient te zijn.Als u niet zelf naar de bezichtiging kunt komen, kunt u iemand anders machtigen. Geef via verhuur@cazaswonen.nl door wie namens u de woning komt bezichtigen.Bij de bezichtiging is een verhuurmakelaar aanwezig.
Kenmerken
Type:
Woonruimte
Oppervlakte:
70.38 m²
Aantal kamers:
4
Energielabel:
C
Vertrekken
Doucheruimte
4.23 m²
Slaapkamer
5.63 m²
Keuken
6.95 m²
Slaapkamer
8.58 m²
Berging
8.82 m²
Slaapkamer
11.52 m²
Woonkamer
28.88 m²
Vergelijkbare woningen
Woning aan de Hooikade te Den Haag
Den Haag
€3.590
3 kamers
Woning aan de Amsterdamsestraat te Muiden
Muiden
€1.750
2 kamers
Woning aan de Pannesheiderstraat te Kerkrade
Kerkrade
€380
1 kamers
Woning aan de Maaskade te Rotterdam
Rotterdam
€2.350
3 kamers
Woning aan de Markt te Roosendaal
Roosendaal
€650
1 kamers
Woning aan de Langswater te Amsterdam
Amsterdam
€2.900
4 kamers
Meer woningen bekijken?
Ontdek ons volledige aanbod van huurwoningen in Nederland. Van studio's tot gezinswoningen.