Grahamstraat 86 - IJmuiden
📍 Ijmuiden
🚪 3 kamers
Woning 2-kamerwoning 1 slaapkamerPortiekflatGesloten keuken Standaard keukenblok 180cm Koken op gas CV-ketelNatuurlijke ventilatie Wasmachine aansluiting in de badkamerAparte toiletruimte Dubbel glas & enkel glasExterne berging In de buurt Openbaar vervoer op loopafstandWinkelsSupermarkt Bezichtiging De eerste 10 kandidaten ontvangen een uitnodiging voor de groepsbezichtiging. De groepsbezichtiging vindt plaats op woensdag 15 oktober om 11:00 uur.Aangeboden overnames Er zijn geen overnames. De woning wordt kaal opgeleverd.
Kenmerken
Type:
Woonruimte
Aantal kamers:
3
Energielabel:
B
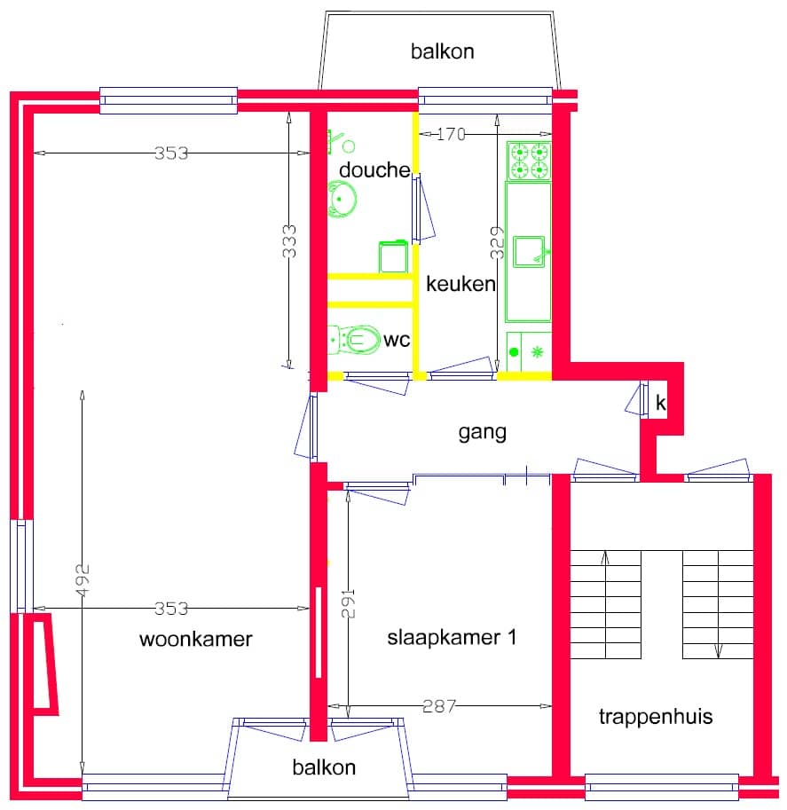
Vertrekken
Badkamer
1.93 m²
Keuken
5.75 m²
Berging
6.65 m²
Slaapkamer
10.09 m²
Slaapkamer
11.95 m²
Woonkamer
17.44 m²
Vergelijkbare woningen
Woning aan de Hooikade te Den Haag
Den Haag
€3.590
3 kamers
Woning aan de Amsterdamsestraat te Muiden
Muiden
€1.750
2 kamers
Woning aan de Pannesheiderstraat te Kerkrade
Kerkrade
€380
1 kamers
Woning aan de Maaskade te Rotterdam
Rotterdam
€2.350
3 kamers
Woning aan de Markt te Roosendaal
Roosendaal
€650
1 kamers
Woning aan de Langswater te Amsterdam
Amsterdam
€2.900
4 kamers
Meer woningen bekijken?
Ontdek ons volledige aanbod van huurwoningen in Nederland. Van studio's tot gezinswoningen.