+8
Heerenduinweg 101 - IJmuiden
📍 Ijmuiden
🚪 3 kamers
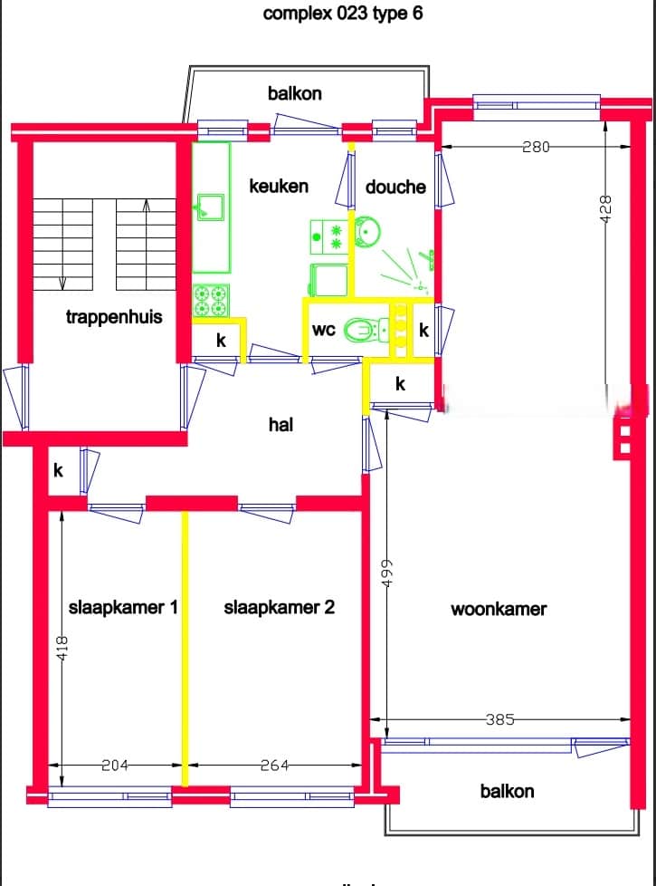
Ruim en licht 3 kamerappartement op de 2e verdieping De bezichtiging is ingepland op dinsdag 27 januari om 10:00 uur. De eerste tien kandidaten worden via Woonservice uitgenodigd voor bezichtiging. Kom je kijken? Verzamel dan alvast je gegevens. De woning is nog bewoond. Dus je bent te gast bij de huidige huurder. Houd hier rekening mee. Woning Gesloten entree met intercomGesloten keuken Koken op gasBadkamer en apart toilet in de hal Wasmachineaansluiting in de keuken Balkon zowel aan de voorzijden als achterzijde Bergzolder en berging op begane grondVrij uitzicht op parkGehorig/ Leef- en contact geluidenKijk voor meer informatie bij kenmerken Overnames De vertrekkende bewoner biedt ter overname aan: Vloer Lampen Gordijnen/ raambekleding Oplevering Woningbedrijf Velsen levert iedere woning op met basiskwaliteit: schoon, heel en veilig. Een bestaande woning heeft altijd gebruikssporen van voorgaande huurder(s). Zelf knapt u de woning op naar uw zin en smaak. Denk hierbij aan het leggen van vloeren (minimaal 10 decibel reducerend), schilderen/behangen van muren, deuren, (raam)kozijnen en plafonds. De oplevering van de woning kan afwijken van de advertentietekst, de plattegrond, de foto’s en de bezichtiging in verband met eventuele werkzaamheden. Aan deze advertentie kunt u geen rechten ontlenen.
Kenmerken
Type:
Woonruimte
Aantal kamers:
3
Energielabel:
D
Vertrekken
Hal
0.01 m²
Badkamer
2.87 m²
Berging
5.00 m²
Keuken
6.38 m²
Slaapkamer
11.13 m²
Berging
12.16 m²
Slaapkamer
12.47 m²
Woonkamer
28.16 m²
Vergelijkbare woningen
Woning aan de Hooikade te Den Haag
Den Haag
€3.590
3 kamers
Woning aan de Amsterdamsestraat te Muiden
Muiden
€1.750
2 kamers
Woning aan de Pannesheiderstraat te Kerkrade
Kerkrade
€380
1 kamers
Woning aan de Maaskade te Rotterdam
Rotterdam
€2.350
3 kamers
Woning aan de Markt te Roosendaal
Roosendaal
€650
1 kamers
Woning aan de Langswater te Amsterdam
Amsterdam
€2.900
4 kamers
Meer woningen bekijken?
Ontdek ons volledige aanbod van huurwoningen in Nederland. Van studio's tot gezinswoningen.