+1
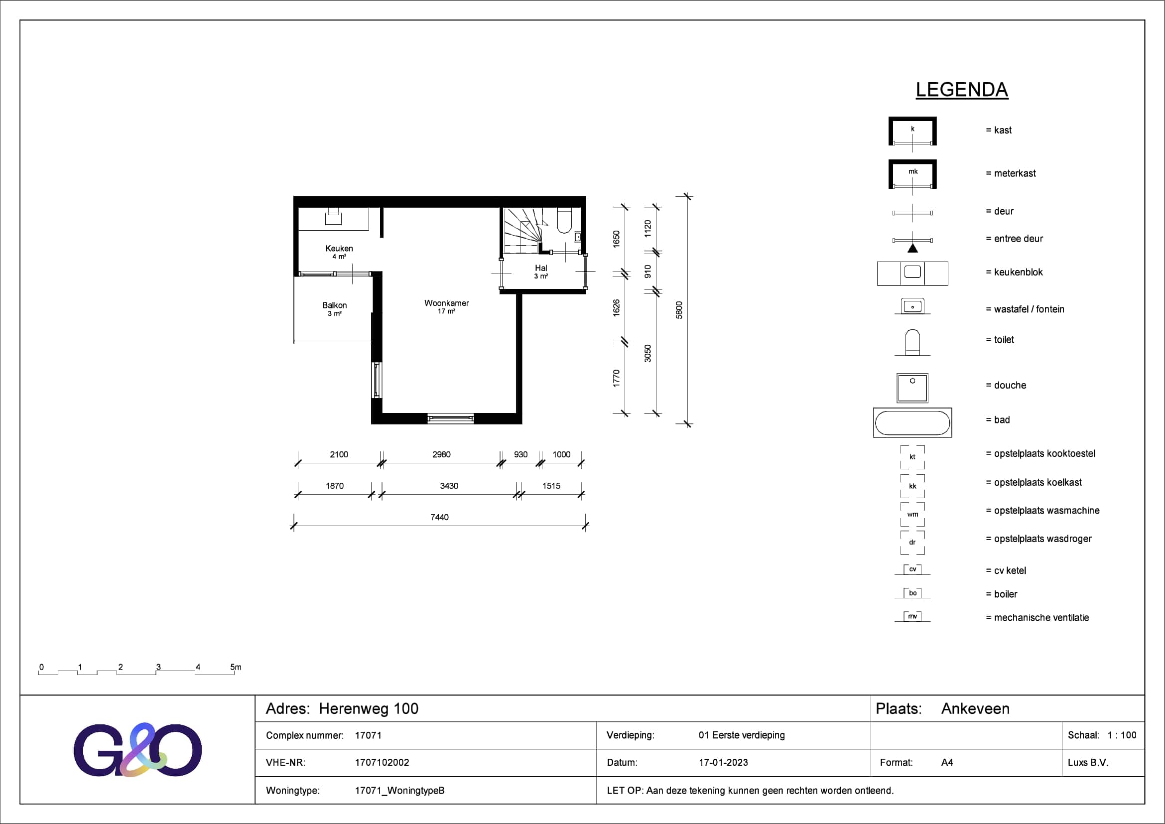
Herenweg 100 - Ankeveen
📍 Ankeveen
🚪 2 kamers
📐 29.95 m²
WoningMaisonette 1e en 2e etage, ZONDER LIFTHalf open keuken met aansluiting voor elektrisch/inductie kokenKleine badkamer met doucheWasmachineaansluiting en cv-ketel in een aparte ruimte op de slaapkamerKlein balkon op het zuidwestenBerging op de begane grondMechanische ventilatieOmgevingBedrijventerrein achter de woning (woonkamer heeft een raam aan de voorzijde van de woning)Bushalte met lijn 106 naar Weesp en Hilversum op loopafstandGeen winkelvoorzieningen in de directe omgeving. De dichtstbijzijnde winkels zijn in Nederhorst den Berg en KortenhoefBeperkt aantal parkeerplekken in de buurtNatuurgebieden in de omgevingBijzonderhedenDe woning wordt op dit moment gerenoveerdVerhuurdatum onder voorbehoudDe plattegrond kan afwijken van de werkelijkheidLet op!Je hebt alleen de regionale binding met de Gooi- en Vechtstreek aangezet in je inschrijving als je kunt aantonen dat je voldoet aan een van de onderstaande voorwaarden:Je woont nu minimaal 1 jaar achter elkaar in de regio of hebt in de afgelopen 10 minimaal 6 jaar achter elkaar in de regio gewoond (geen briefadres).Je werkt minimaal 19 uur per week in de regio en hebt een vast contract. Voor uitzendkrachten geldt dat het uitzendbureau is gevestigd in de regio. Mantelzorg geeft geen binding.Je volgt een dagopleiding van minimaal 19 uur per week in de regio.Je bent zelfstandig ondernemer. Je bedrijf staat bij de Kamer van Koophandel ingeschreven met een vestigingsadres in de regio en heeft een fysiek adres (bedrijfspand) in de regio.
Kenmerken
Type:
Woonruimte
Oppervlakte:
29.95 m²
Aantal kamers:
2
Energielabel:
C
Vertrekken
Slaapkamer
13.00 m²
Woonkamer
16.95 m²
Vergelijkbare woningen
Woning aan de Hooikade te Den Haag
Den Haag
€3.590
3 kamers
Woning aan de Amsterdamsestraat te Muiden
Muiden
€1.750
2 kamers
Woning aan de Pannesheiderstraat te Kerkrade
Kerkrade
€380
1 kamers
Woning aan de Maaskade te Rotterdam
Rotterdam
€2.350
3 kamers
Woning aan de Markt te Roosendaal
Roosendaal
€650
1 kamers
Woning aan de Langswater te Amsterdam
Amsterdam
€2.900
4 kamers
Meer woningen bekijken?
Ontdek ons volledige aanbod van huurwoningen in Nederland. Van studio's tot gezinswoningen.