Het Voorburg 14 - Ommeren
š Ommeren
šŖ 4 kamers
š 89.00 m²
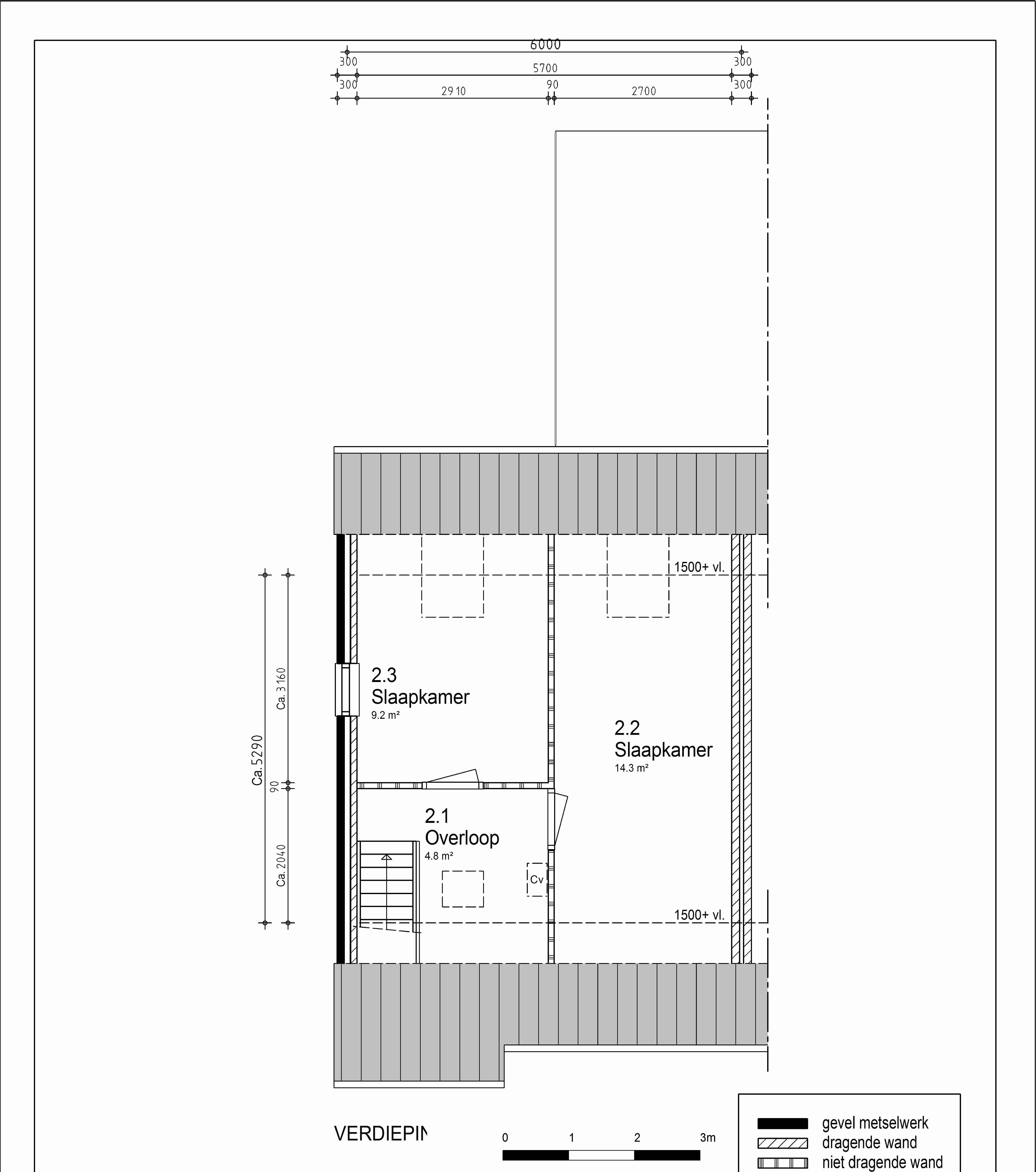
Bent u op zoek naar de ideale seniorenwoning in het charmante dorp Ommeren, reageer dan snel op deze woning!Deze woning aan het Voorburg 14 te Ommeren biedt u een comfortabele en zorgeloze leefomgeving, perfect afgestemd op uw wensen.Indeling van de woningWoonkamer: deze woning heeft een ruime woonkamerKeuken: er wordt een nieuwe keuken geplaatstSlaapkamers: er is een slaapkamer op de begane grond en 2 extra slaapkamers op de verdieping.Badkamer: een nette badkamer met een toiletTuin: er is een nette voor- en achtertuin met een eigen achterom.OvernamesHet tuinhuisje, de buitenkraan en de zonnescreens zijn ter overname aangeboden. Dit kunt u bespreken bij de bezichtiging.EnergievoorzieningenEr worden zonnepanelen op het dak geplaatst en een Perilex-aansluiting in de keuken. Dit zorgt voor lagere energiekosten en een energiezuinige, duurzame woonomgevingVoor wie is deze woning geschikt?Deze woning is speciaal bedoeld voor senioren vanaf 55 jaar. Controleer of deze woning geschikt is voor uw situatie door in te loggen en uw inkomensgegevens in te vullen.Wilt u weten of u in aanmerking komt voor huurtoeslag? Maak een proefberekening viaĀ www.toeslagen.nlĀ om verrassingen te voorkomen.Hoe verloopt het proces?Na sluiting van de reactie termijn ontvangen de eerste 3 kandidaten een uitnodiging voor de bezichtiging. Indien zij geen belangstelling hebben of niet voldoen aan de voorwaarden, worden de volgende 3 kandidaten benaderd.Voorzieningen in de buurtOmmeren is een charmant en historisch dorp gelegen in de gemeente Buren.Ā Met ongeveer 650 inwoners is Ommeren een kleinschalige, hechte gemeenschap. De bevolking bestaat uit een mix van geboren en getogen inwoners, jonge gezinnen die kiezen voor rust en ruimte, en forensen die de combinatie van landelijk wonen en goede bereikbaarheid waarderen.Ā Ommeren ligt op slechts ongeveer 5 kilometer van de A15, wat zorgt voor een vlotte verbinding richting steden als Tiel.. Ondanks deze goede bereikbaarheid blijft de omgeving landelijk en rustig.De woonomgeving bestaat uit een gevarieerd aanbod: karakteristieke oude boerderijen, vrijstaande woningen en recentere uitbreidingen zoals het hofje Ommerstein. Deze mix van oud en nieuw maakt het dorp aantrekkelijk voor zowel ouderen als jonge gezinnen die op zoek zijn naar een rustige leefomgeving met een vleugje geschiedenis.Daarnaast ligt Ommeren nabij de rivier de Linge en verschillende natuurgebieden, wat volop mogelijkheden biedt voor wandelen, fietsen en recreatie in de natuur.Ā Ā Ā
Kenmerken
Type:
Woonruimte
Oppervlakte:
89.00 m²
Aantal kamers:
4
Energielabel:
B
Vertrekken
Slaapkamer
5.00 m²
Slaapkamer
11.00 m²
Slaapkamer
14.00 m²
Woonkamer
21.00 m²
Vergelijkbare woningen
Woning aan de Hooikade te Den Haag
Den Haag
ā¬3.590
3 kamers
Woning aan de Amsterdamsestraat te Muiden
Muiden
ā¬1.750
2 kamers
Woning aan de Pannesheiderstraat te Kerkrade
Kerkrade
ā¬380
1 kamers
Woning aan de Maaskade te Rotterdam
Rotterdam
ā¬2.350
3 kamers
Woning aan de Markt te Roosendaal
Roosendaal
ā¬650
1 kamers
Woning aan de Langswater te Amsterdam
Amsterdam
ā¬2.900
4 kamers
Meer woningen bekijken?
Ontdek ons volledige aanbod van huurwoningen in Nederland. Van studio's tot gezinswoningen.