Hoedenmakersstraat 14 - Kerkdriel
📍 Kerkdriel
🚪 2 kamers
📐 35.00 m²
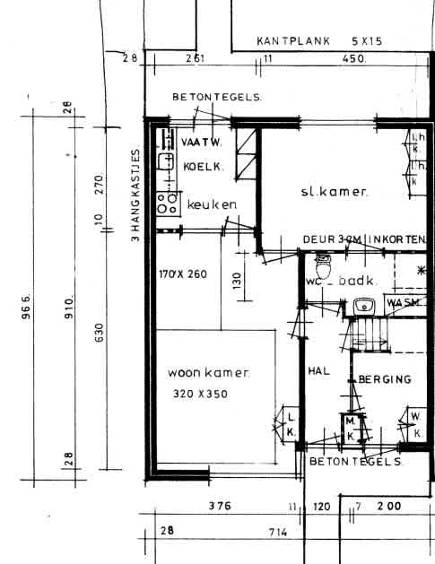
Seniorenwoning met 1 slaapkamer en inpandige berging. Verder is er een vaste trap naar de zolder.Er zitten schuifdeuren in de woning die door ons als woningstichting overgenomen zijn. Het onderhoud is wel voor de bewoner zelf.
Kenmerken
Type:
Woonruimte
Oppervlakte:
35.00 m²
Aantal kamers:
2
Energielabel:
A
Vertrekken
Slaapkamer
12.00 m²
Woonkamer
23.00 m²
Vergelijkbare woningen
Woning aan de Hooikade te Den Haag
Den Haag
€3.590
3 kamers
Woning aan de Amsterdamsestraat te Muiden
Muiden
€1.750
2 kamers
Woning aan de Pannesheiderstraat te Kerkrade
Kerkrade
€380
1 kamers
Woning aan de Maaskade te Rotterdam
Rotterdam
€2.350
3 kamers
Woning aan de Markt te Roosendaal
Roosendaal
€650
1 kamers
Woning aan de Langswater te Amsterdam
Amsterdam
€2.900
4 kamers
Meer woningen bekijken?
Ontdek ons volledige aanbod van huurwoningen in Nederland. Van studio's tot gezinswoningen.