Joost van den Vondelstraat 33 - Sliedrecht
📍 Sliedrecht
🚪 2 kamers
📐 50.15 m²
Het complexDe Vondelflat ligt in het centrum van Sliedrecht. Het winkelcentrum, openbaar vervoer en de watertaxi liggen op loopafstand. Het complex heeft 79 woningen voor 55 plussers. Er is een recreatieruimte en een actieve bewonerscommissie.Altijd iemand bereikbaarDe bewonersconsulent is het aanspreekpunt voor alle bewoners. Hij of zij maakt u graag wegwijs in uw nieuwe woonomgeving en ziet erop toe dat u er prettig en rustig kunt wonen. Daarbij zorgt hij of zij ervoor dat u precies de service krijgt die u wilt. Dus heeft u een wens: vraag het gerust, want uw bewonersconsulent denkt graag met u mee.U kunt van maandag tot en met vrijdag van 08.30 tot 12.00 uur telefonisch terecht bij de bewonersconsulent. En anders krijgt u een collega aan de lijn. Na werktijden wordt er voor spoedgevallen automatisch doorgeschakeld naar de meldkamer. Er is dus altijd iemand bereikbaar.Voor meer informatie kunt u contact opnemen met de bewonersconsulent, bereikbaar op werkdagen van 8.30 - 12.00 uur. Telefoonnummer 088 - 921 01 04 en email vondelflat@woonzorg.nl
Kenmerken
Type:
Woonruimte
Oppervlakte:
50.15 m²
Aantal kamers:
2
Energielabel:
C
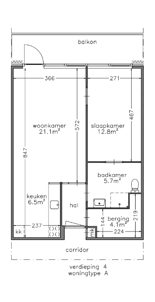
Vertrekken
Berging
4.34 m²
Badkamer
5.51 m²
Keuken
6.51 m²
Slaapkamer
12.90 m²
Woonkamer
20.89 m²
Vergelijkbare woningen
Woning aan de Hooikade te Den Haag
Den Haag
€3.590
3 kamers
Woning aan de Amsterdamsestraat te Muiden
Muiden
€1.750
2 kamers
Woning aan de Pannesheiderstraat te Kerkrade
Kerkrade
€380
1 kamers
Woning aan de Maaskade te Rotterdam
Rotterdam
€2.350
3 kamers
Woning aan de Markt te Roosendaal
Roosendaal
€650
1 kamers
Woning aan de Langswater te Amsterdam
Amsterdam
€2.900
4 kamers
Meer woningen bekijken?
Ontdek ons volledige aanbod van huurwoningen in Nederland. Van studio's tot gezinswoningen.