+1
Karploeg 33 - Zevenhuizen
📍 Zevenhuizen
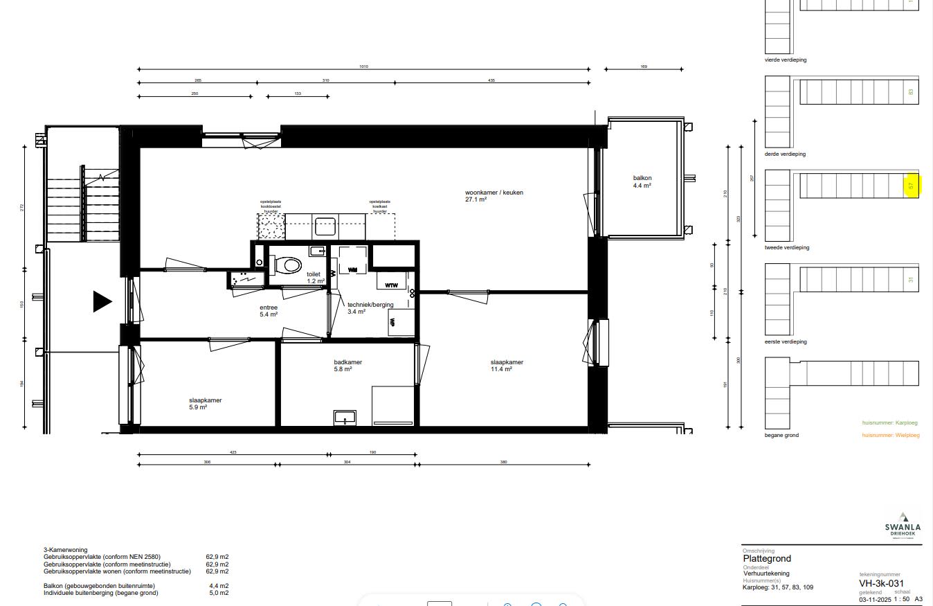
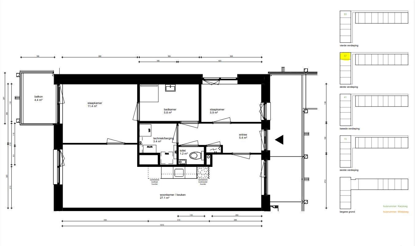
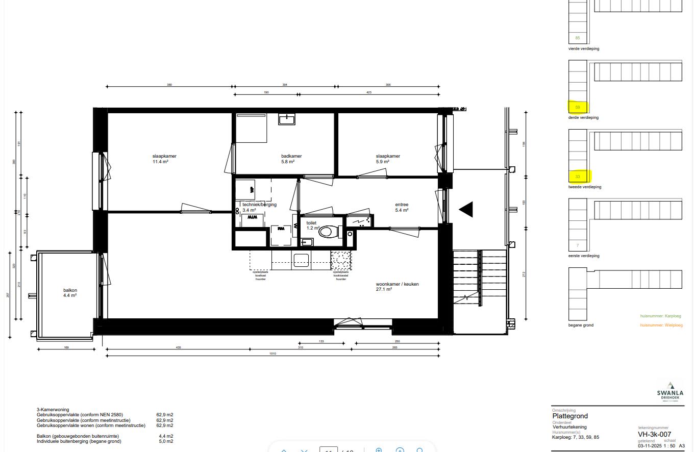
Nieuwbouwwoning te huur in Swanladriehoek – ZevenhuizenBent u op zoek naar een comfortabele en moderne woning in een groene en rustige omgeving? In de nieuwe wijk Swanladriehoek in Zevenhuizen wordt op dit moment het mooie nieuwbouwcomplex De Ploeg gebouwd. Deze 3 kamerwoningen bieden alles voor een fijn en rustig thuis.Zevenhuizen is een vriendelijk dorp in de gemeente Zuidplas, tussen Rotterdam en Gouda. Hier woont u rustig, maar met alle voorzieningen in de buurt.Indeling van de woningEntree / halWoonkamer met open keukenToegang tot het balkon2 slaapkamersBadkamerBinnen berging met aansluiting voor de wasmachineEigen berging op de begane grondBijzonderhedenGelegen op de 2e en 3e verdiepingBalkon Energielabel A+++De woning wordt verwarmd met een warmtepompKosten: vastrecht + huur warmtepomp (ca. € 75 per maand, prijspeil januari 2026)VoorwaardenVerwachte sleuteloverdracht: juni 2026In mei wordt er een open huis georganiseerd voor kandidaten die een woning toegewezen krijgen.De toewijzing gebeurt digitaal.Alle gevraagde documenten kunnen vooraf worden geüpload. Overige informatieServicekosten zijn onder voorbehoud van kleine wijzigingen.
Kenmerken
Vergelijkbare woningen
Woning aan de Hooikade te Den Haag
Den Haag
€3.590
3 kamers
Woning aan de Amsterdamsestraat te Muiden
Muiden
€1.750
2 kamers
Woning aan de Pannesheiderstraat te Kerkrade
Kerkrade
€380
1 kamers
Woning aan de Maaskade te Rotterdam
Rotterdam
€2.350
3 kamers
Woning aan de Markt te Roosendaal
Roosendaal
€650
1 kamers
Woning aan de Langswater te Amsterdam
Amsterdam
€2.900
4 kamers
Meer woningen bekijken?
Ontdek ons volledige aanbod van huurwoningen in Nederland. Van studio's tot gezinswoningen.