+9
Karploeg 23 - Zevenhuizen
📍 Zevenhuizen
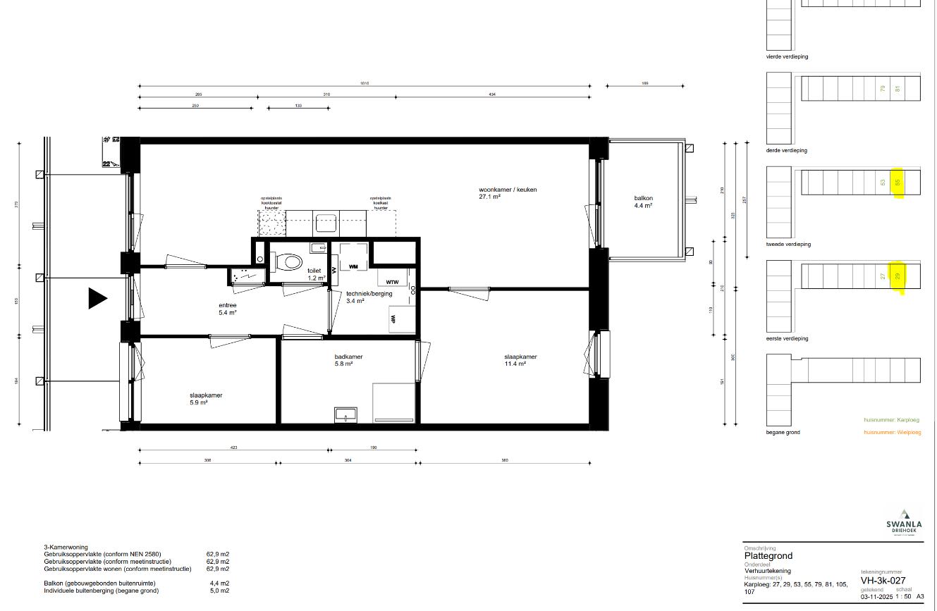
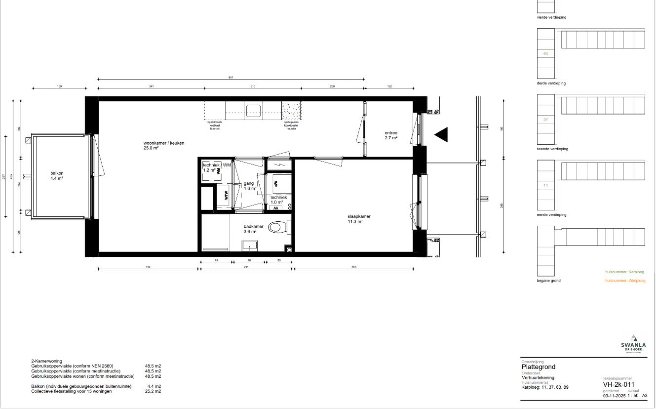
Nieuwbouwwoning te huur in Swanladriehoek – Zevenhuizen Bent u op zoek naar een comfortabele en moderne woning in een groene en rustige omgeving? In de nieuwe wijk Swanladriehoek in Zevenhuizen wordt op dit moment het mooie nieuwbouwcomplex De Ploeg gebouwd. Deze 2 en 3 kamerwoning bieden alles voor een fijn en rustig thuis. Zevenhuizen is een vriendelijk dorp in de gemeente Zuidplas, tussen Rotterdam en Gouda. Hier woont u rustig, maar met alle voorzieningen in de buurt. Indeling van de woning Entree / hal Woonkamer met open keuken Toegang tot het balkon 1 of 2 slaapkamers Badkamer Binnenberging met aansluiting voor de wasmachine Bijzonderheden Balkon Energielabel A+++ De woning wordt verwarmd met een warmtepomp Kosten: vastrecht + huur warmtepomp (ca. € 75 per maand, prijspeil januari 2026) Informatie Verwachte sleuteloverdracht: juni 2026 Digitale bezichtiging Dit appartementen is nog in aanbouw, daarom is er geen fysieke bezichtiging mogelijk. U maakt uw keuze op basis van de plattegronden en de informatie in de advertentie. In mei organiseren we een open huis voor kandidaten die een woning hebben geaccepteerd en toegewezen hebben gekregen. De toewijzing gebeurt digitaal. Alle gevraagde documenten kunnen vooraf worden geüpload in uw dossier of worden gevalideerd via My Qii. Overige informatie Servicekosten zijn onder voorbehoud van kleine wijzigingen. Alle foto’s en plattegronden zijn slechts een impressie. Hieraan kunnen geen rechten worden ontleend. Om in aanmerking te komen voor deze woning gelden de volgende regels:huurprijs € 713,02U mag met maximaal 2 personen reageren.Maximuminkomen voor 1 persoon: uw inkomen mag niet hoger zijn dan € 29.400.Maximuminkomen voor 2 personen: uw gezamenlijk inkomen mag niet hoger zijn dan € 39.925.huurprijs € 932,93U mag met maximaal 2 personen reageren.inkomen voor 1 persoon: uw inkomen moet minimaal € 29.400 en mag niet hoger zijn dan € 51.537.inkomen voor 2 personen: uw gezamenlijk inkomen moet minimaal € 39.925 en mag niet hoger zijn dan € 56.910
Kenmerken
Vergelijkbare woningen
Woning aan de Hooikade te Den Haag
Den Haag
€3.590
3 kamers
Woning aan de Amsterdamsestraat te Muiden
Muiden
€1.750
2 kamers
Woning aan de Pannesheiderstraat te Kerkrade
Kerkrade
€380
1 kamers
Woning aan de Maaskade te Rotterdam
Rotterdam
€2.350
3 kamers
Woning aan de Markt te Roosendaal
Roosendaal
€650
1 kamers
Woning aan de Langswater te Amsterdam
Amsterdam
€2.900
4 kamers
Meer woningen bekijken?
Ontdek ons volledige aanbod van huurwoningen in Nederland. Van studio's tot gezinswoningen.